Хрущевка 1 комнатная планировка. 3 варианта перепланировки однокомнатной квартиры хрущевки
- Хрущевка 1 комнатная планировка. 3 варианта перепланировки однокомнатной квартиры хрущевки
- Планировка хрущевки 2 комнаты. Варианты планировки
- Брежневка планировка 1 комнатная. Серии и планировки
- План квартиры хрущевка 1 комнатная. Виды перепланировок
- Хрущевка 1 комнатная размеры. Хрущевки. Типовые планировки
- Перепланировка однокомнатной хрущевки в двухкомнатную. Что такое перепланировка и как ее оформить
- Идеи для 1 комнатной хрущевки. Зонирование однокомнатной хрущевки
Хрущевка 1 комнатная планировка. 3 варианта перепланировки однокомнатной квартиры хрущевки
Планировка однокомнатной хрущевки в придачу с остальными недостатками (маленькие площади комнат, невысокие потолки) делают неприглядной эту квартиру. Однако владельцами подобных квартир является большое количество людей. Кто-то прожил в этой квартире всю жизнь, кому-то она досталась по наследству и т.д. В настоящее время мир дизайна и пестрящие картинки в интернете побуждают людей делать свое жилье более красивым и комфортным. В связи с этим владельцы однокомнатных квартир все чаще интересуются темой перепланировки собственной квартиры. Мы решили помочь вам в этом вопросе и предлагаем 3 примера перепланировки 1-комнатной хрущевки.
Вариант 1

Для кого: Для семьи или молодой пары
Площади : Кухня – 6.4 кв.м., ванная – 2.7 кв.м., постирочная – 0.6 кв.м., спальня-гостиная – 16.6 кв.м., коридор – 3.3 кв.м.
Особенности: Расстановка мебели в гостиной-спальне достаточно распространенная. Зонирование в этой комнате осуществляется с помощью. Вход на кухню осуществляется через основную комнату, а на месте прежнего прохода появляется маленькая кладовка-постирочная. На кухне за дверью небольшой стеллаж для хранения. Вход в ванну перенесен, в ней вместо привычной ванны установлена душевая кабина. Основные места хранения: шкаф для верхней одежды в коридоре и два вместительных шкафа в гостиной. Дополнительные места могут быть организованы на застекленном балконе.
Примеры дизайна предложенной перепланировки:
Вариант 2

Для кого: Для семьи или молодой пары
Площади : Кухня-гостиная-спальня – 19.9 кв.м., ванная – 2.7 кв.м., гардеробная – 4.3 кв.м., коридор – 1.6 кв.м, постирочная – 1.1 кв.м.
Особенности: Снос части стены между кухней и большой комнатой позволил правильно организовать пространство. В результате мы получили уютную кухню-гостиную и небольшую спальню, отделенную стеллажом перегородкой, на которой установлен телевизор. В глубине спальни вход в. В углу коридора занимает место постирочная с местами для хранения.
Примеры дизайна предложенной перепланировки:
Вариант 3

Для кого: Для семьи с ребенком
Площади : Кухня-гостиная-спальня – 14.9 кв.м., ванная – 2.7 кв.м., детская – 5.1 кв.м., гардеробная – 2.8 кв.м., коридор – 3.1 кв.м, кладовка – 0.8 кв.м.
Особенности: Сделать в однокомнатной хрущевке практически трехкомнатную квартиру достаточно реально. Для этого достаточно грамотно распорядиться каждым квадратным метром. Две зоны хранения в коридоре: гардеробная и кладовка избавят остальные площади от массивной мебели. Перенесенная дверь ванны позволит использовать часть коридора и большой комнаты для гостиной и спальни, которая отделена стеллажом. Широкий проход в кухню необходим не только для, но и для достаточной вентиляции большого помещения. Оставшаяся площадь отдается под детскую, в которой расположены стол, кровать и шкаф. При желании можно застеклить и утеплить балкон, это позволит перенести туда стол или шкаф. Таким образом, увеличится свободное место в комнате.
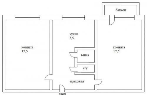
Планировка хрущевки 2 комнаты. Варианты планировки
Существуют варианты планировка хрущевки с размерами 2 комнат . Разновидности плана типовой хрущевки можно расположить следующим образом в порядке убывания удобства.
Для распашонки
Две изолированные комнаты приличной площади (чаще всего — одинаковой). Они расположены по разные стороны квартиры, между ними — прихожая, санузел, ванная и кухня. Этот проект во многом предпочтительнее и удобнее, чем распространенный трехкомнатный вариант с проходной комнатой.
Несмотря на преимущество планировки и выигрышную жилую площадь, площадь кухни типична для домов рассматриваемого типа и составляет 5,5 квадратных метров. При этом планировка практически не оставляет возможностей для ее увеличения. Чаще рассматривается вариант увеличения площади кухни за счет одной из комнат, но в этом случае уменьшаемая комната примет неправильную форму.

Комнаты в мини-улучшенке
Комнаты изолированные, одна — весьма неплохой площади, другая — довольно маленькая, расположены рядом, за маленькой комнатой расположена кухня. Общая площадь квартиры 44,6 квадратных метров. Главный недостаток — небольшая площадь кухни: 5,2 м2. В основном работы по перепланировке касаются увеличения площади кухни (есть возможность увеличить до 8 метров за счет прихожей и кладовки).

Трамвай
Комнаты в квартире такого типа смежные, стыкуются между собой узкими стенами. Общая площадь квартиры — 48 квадратных метров. Разделение комнат весьма удачно. В этом случае прихожая продлевается в глубину прилегающей к ней комнаты настолько, насколько это продиктовано интересами хозяина.

Книжка
Комнаты в таких квартирах также смежные, стыкуются между собой длинными стенами. Чтобы попасть в дальнюю, приходится пересекать проходную по диагонали. Общая площадь квартиры — 41 квадратный метр. Крайне неудачна для перепланировки, поскольку то, что останется от проходной комнаты после продления коридора, будет иметь совсем небольшую площадь.

Брежневка планировка 1 комнатная. Серии и планировки
| площадь кухни : 6,0 кв.м санитарный узел : раздельный (в 1-комнатных - совмещенный) высота потолков : 2,5 м дополнительно : балконы (глубина 0,9 м) - на 1-ых этажах преимущественно отсутствуют, встроенные шкафы, антресоли, кладовые |
Если вы решили сделать ремонт в брежневке, то стоит знать, что по сравнению с хрущёвкой, у нее есть одно преимущество, которое делает возможным несколько решений.
Вариант планировки квартиры в брежневке
Планировка квартиры брежневки предполагает наличие раздельного санузла. Лучше всего поддаются перепланировке трехкомнатные квартиры. Если вы хотите увеличить полезную площадь ванной комнаты и туалета, то лучшим решением будет снести разделяющую стену. Единственным препятствием на пути может быть необходимость именно в раздельном санузле, но если такой необходимости нет, то можно смело сносить стенку. Еще одним способом сделать планировку более удобной является перемещение двери, ведущей в санузел. Если сделать ее со стороны коридора, то она же может стать и зеркалом.

Ещё один вариант перепланировки трёхкомнатной квартиры в брежневке
Планировка квартиры брежневки по сравнению с хрущевками считается более благоустроенной, однако если вы хотите сделать перепланировку, то имеет смысл отделить зону для приготовления пищи от зоны для приема гостей. Для этого можно сделать небольшой подиум. Форму подиума можно повторить при помощи многоуровневого потолка. Так как высота потолка в брежневке примерно 2,7 м, то потолки из нескольких уровней не сильно повлияют на ощущение просторности в помещении. Делая перепланировку на кухне, используйте стеклянные поверхности и светлые тона, это сделает помещение более свободным, а интерьер неповторимым.
Вариант перепланировки двухкомнатной брежневки
Планировки брежневок хоть и более благоустроенные, но все же не дотягивают до современных представлений об удобстве и функциональности. Поэтому при проведении работ необходимо, чтобы они соответствовали строительным нормам и Жилищному законодательству. Если вы уже придумали, какой должна быть перепланировка квартиры, то нужно перед началом любых работ обратиться в специальную организацию, которая разрешити подкрепит это планом перепланировки.

Советы по перепланировки двухкомнатной квартиры в брежневке
Проект планировки брежневок будет изготовлен на основании технического заключения, в котором определяется изношенность, конструкций здания. Если состояние дома аварийное, то перепланировка может быть осложнена. Сроки согласования будут зависеть от сложности работ, от того, будете ли вы затрагивать несущие стены, конструкции и сантехнические зоны. Обычно сроки согласования колеблются от двух месяцев до полугода.
Смотрите также советы архитекторов по выбору планировки:
Каждый из нас стремится к комфорту. Удобное проживание, уют и обустроенность помещения - основные составляющие успешной жизни в мегаполисе. Еще полвека назад особой популярностью пользовались однотипные дома: сталинки, хрущевки, брежневки. Половина жителей страны выросла в них. И пусть сегодняшний рынок недвижимости предлагает большой выбор новостроек на любой вкус и кошелек, квартиры старого фонда все так же продаются и покупаются. До сих популярна брежневка 3-комнатная, планировка которой предполагает отсутствие проходных комнат. Да и стоит она на треть дороже новых, несмотря на отсутствие лифта, мусоропровода и износ коммуникаций.
План квартиры хрущевка 1 комнатная. Виды перепланировок
Общая площадь однокомнатной квартиры в хрущевке – 30 м квадратных, причем жилая только 15-18 м2. Окна обычных квартир выходят на одну сторону. В угловых планировках проемы с остеклением могут располагаться на разных стенах. Небольшая квадратура и удачное расположение перегородок дает отличную возможность для внутренней перепланировки. Создать комфортные условия в 1 комнатной квартире такого типа можно несколькими способами.
Соединение комнаты с балконом
Основная причина, толкающая собственников подобных квартир на перепланировку – недостаток пространства. Критическую ситуацию может спасти даже пара лишних метров. Улучшить геометрию комнаты можно путем объединения ее с балконом. Такое слияние снабдит помещение новыми функциями. У широкого окна можно разместить письменный стол, кресло для отдыха. Если в планах оборудовать детскую зону, то освободившееся место можно использовать для гардероба или стеллажа с книгами.
Увеличение площади за счет присоединения балконного пространства добавит много естественного света, что улучшит микроклимат. Также обильное солнечное освещение будет способствовать значительной экономии электроэнергии. Задействование балкона поможет избавиться от множества ненужных вещей.
Превращение балкона в жилую площадь позволяет применить самые смелые дизайнерские идеи. Но стоит понимать, что реализация такого проекта повлечет большие финансовые траты. Также следует учесть возможные сложности с узакониванием подобной перепланировки.
Решаясь на превращение балкона в жилую площадь, необходимо понимать, что по назначению использовать его больше не получится. Придется искать новое место для сушки белья, хранения габаритных, нечасто используемых вещей.
Квартира студия: объединяем кухню с комнатой
Один из самых популярных вариантов перепланировки предполагает совмещение в одну комнату кухни, спальни и прихожей. Такая модель пространства подойдет как для одиноких людей, так и для семей с детьми. Для комфортного проживания во втором случае необходимо продумать грамотные пути зонирования.
Разграничить пространство в просторном помещении можно за счет декора стен и правильной расстановки мебели. Зону приготовления пищи отделяют с помощью ширмы, барной стойки, небольшого подъема кухни. Скрыть спальное место в квартире студии можно занавесками на балдахине или передвижными перегородками.
Перепланировка санузла
Раздельный санузел в однушке забирает много ценной площади важных комнат. В миниатюрной ванне невозможно развернуться двоим людям, не говоря уже о размещении стиральной машины, корзины для грязного белья. Перечисленные элементы легко станут на свои места, если совместить ванную с туалетом, убрав широкую перегородку.
Сделать санузел еще просторней можно за счет его расширения. Перегородка с коридором сдвигается в центр комнаты, а прихожая перестает существовать как таковая. Убрав узкий ненужный коридор, можно немного увеличить кухню. На такой территории легко вместить большой стол на 4-е человека, гарнитур, полки для хранения, встроенные бытовые приборы.
Увеличение количества комнат
Для семейных людей, проживающих в однокомнатных хрущевках, важным остается изолирование личного пространства. Если отдельная кухня и вторая комната просто необходимы, можно сделать перепланировку с уютной проходной гостиной. Наиболее удачное стандартное расположение для этой цели имеют угловые варианты.
В дальней комнате можно поселить ребенка, расположить шкаф, письменный стол, полки для книг. Детям дошкольного возраста хватит места для оборудования небольшой игровой зоны. Часть стены между комнатой и коридором лучше заменить на раздвижные двери. Кровать взрослых можно расположить в проходном помещении. Также возможен вариант объединения части комнаты с прихожей.
Основное преимущество такой планировки – капитальная изоляция спальни и кухни. Минусы – узкие проходы, недостаток места для создания многих стильных интерьеров, отсутствие возможности обставлять жилое пространство мебелью по запланированной схеме.
Хрущевка 1 комнатная размеры. Хрущевки. Типовые планировки
Массовое строительство хрущевок началось в 1958 году и длилось до 1985. В то время тысячи семей получили собственное жилье в 4-5-ти этажных панельных и кирпичных домах. Комнаты были очень маленькими и в большинстве случаев проходными, коридоры были узкими и темными, а санузлы сразу были совместными. Высота потолков составляла 2.48 м, в редких случаях – 2.7 м. Площадь однокомнатных квартир не превышала 29-33 кв.м. из которых 5.8-6.2 метра отводились под кухню, от 15.9 до 20.7 метров – под гостиную. Остальную площадь занимал коридор и ванная комната. Размеры помещений зависели от года постройки и серии и имели следующие типовые планировки:

Примечательно, что практически все однушки имели балкон и почти одинаковое расположение комнат. Прежде чем приступить к каким-то радикальным мерам , необходимо четко знать:
- Точное количество проживающих. Ведь одно дело проводить работы по организации комфортного проживания для одного человека, и совсем другое – для молодой семьи с ребенком. Требования будут кардинально отличаться, разделение площади будет совсем иным;
- Без каких функциональных зон вы точно не сможете прожить. Речь идет о таких «помещениях», как рабочий кабинет или полноценная изолированная спальня. Ведь некоторые люди запросто используют диван в гостиной для ежедневного сна и чувствуют себя при этом абсолютно нормально, а на других такая открытость действует угнетающе;

От двух вышеперечисленных факторов будет зависеть объем работ, которые нам предстоит распланировать, необходимость сноса межкомнатных перегородок или, наоборот, возведения дополнительных. Не удивляйтесь. Но действительно не все дизайнеры рекомендуют делать из однушки квартиру-студию . Для того, чтобы жилье отвечало всем требованиям хозяев, иногда устанавливаются полноценные глухие перестенки из легких материалов – гипсокартона или газобетона. Поэтому, предварительно рекомендуют составить список из обязательных пунктов, которые вы хотите иметь. Это может быть что угодно – раковина напротив окна в кухне, стеллаж под личную библиотеку, бытовая техника, от которой вы не в силах отказаться и т.д. На основании этого списка нужно планировать дизайн интерьера и перераспределять пространство между зонами.

Перепланировка однокомнатной хрущевки в двухкомнатную. Что такое перепланировка и как ее оформить
Перепланировкой считается любое изменение конфигурации перегородок в квартире. В несущих стенах что-либо менять без предварительной оценки ущерба и определения мер по его устранению запрещено категорически. В случае с ненагруженными стенами или перегородками все не так категорично, хотя предлагается сначала составить проект, потом его согласовать и только после этого приступать к реализации задумок.
Стоит знать, что есть несколько недопустимых переделок, которые вам не согласуют никогда:
- Расширение площади «мокрых помещений» — кухни, ванной и туалета — разрешено только за счет технических помещений. Над жилыми их располагать нельзя. То есть можно забрать часть коридора, встроенного шкафа, прихожей. В связи с этим могут возникнуть спорные моменты насчет некоторых типов перепланировок. В частности на фото ниже указана такая спорная зона.

Спорная зона при расширении площади санузла
Выделенный красным фрагмент фактически находится в коридоре, но по документами БТИ это жилая площадь. И если в таком виде подать перепланировку, ее не примут. Чтобы обойти эту преграду сначаластавят перегородку, отгораживающую коридор, оформляют эту перепланировку, потом подают проект с увеличенной площадью ванной.
- При расширении площади кухни это нельзя делать:
- за счет площади санузла;
- если расширение происходит за счет площади жилой комнаты, нельзя на ней устанавливать сантехническое и кухонное оборудование (мойка и плита);
- если кухня оборудована газовой плитой, объединение ее с жилой комнатой запрещается.
Идеи для 1 комнатной хрущевки. Зонирование однокомнатной хрущевки
Как правило, в хрущевках живут не только люди в возрасте, но и молодые семьи, поэтому лучший вариант для всех – это действовать кардинально и произвести перепланировку, так как несмотря на небольшие габариты, всем молодым хочется жить в красивой квартире.

При этом перегородки будут отсутствовать, что даст возможность увеличить полезную жилплощадь и обустроиться в современной квартире-студии. Зонирование однокомнатной хрущевки позволяет улучшить условия жизни любой семьи.
В такой квартире будет всего две двери — при входе и в санузел. Мебель будет покупаться в соответствии с зонами помещения. Это даст дополнительную возможность получить и кабинет, и гостиную, и спальную зону .
А вы знаете, как правильно расположить зеркало в спальне по фэн-шуй ? Как и на какой стене следует повесить зеркало и чего не следует делать — на все есть ответы в восточной мудрости.
О стандартах высоты установки бра над кроватью читайте в этой статье плюс совет по выбору типа настенного светильника в спальне.
Для разделения пространства квартиры можно применять стенки или всевозможные ширмы-перегородки.
Кроме того, используя дизайнерские секреты, можно зрительно поделить пространство на зоны. Для этого можно положить разные материалы: керамическую плитку, ламинат или же ковровое покрытие на кухне и в комнате.

Потолок также можно оснастить различным освещением. Такая идея для однокомнатной квартиры-хрущевки является самой оптимальной, так как подходит для большинства и решает проблему маленького и слабо освещенного пространства.
Совет! Для разделения пространства на зоны можно использовать различные способы, к примеру, по-разному оформить дизайн кухни и комнаты в однокомнатной хрущевке.
