Перепланировка квартиры 2 комнатной. Перепланировка двухкомнатной квартиры
- Перепланировка квартиры 2 комнатной. Перепланировка двухкомнатной квартиры
- Планировка 2 комнатной квартиры брежневка. Сталинки, хрущевки, брежневки – привет из далекого прошлого
- Перепланировка 2-х комнатной квартиры в панельном доме. Двухкомнатная хрущевка: переделка
- Видео перепланировка квартиры в новостройке. 6 идей перепланировки квартиры. Варианты перепланировки
Перепланировка квартиры 2 комнатной. Перепланировка двухкомнатной квартиры
Время чтения ≈ 3 минут
Любая перепланировка двухкомнатной квартиры является сложнейшим ремонтом, целью которого является не только расширение жилищного пространства, но и разграничение квартиры на отдельные зоны. В конечном итоге все это сводится к одному — создание более комфортных условий для проживания.
Варианты перепланировки

Все двухкомнатные квартиры являются самым востребованным сегментом недвижимости. Это самый удачный вариант городского жилья, так как однокомнатные квартиры являются малогабаритными, а трехкомнатные — слишком дорогостоящими. Если посмотреть фото перепланировки двухкомнатной квартиры, то можно иметь представление о том, какие помещения в этом случае можно создать и каким образом получится изменить все пространство.
Существуют различные варианты перепланировки двухкомнатной квартиры: ее можно расширить, разбить на отдельные зоны или же объединить в одно большое помещение, чтобы потом снова уже разделить на отдельные комнаты, но по другому варианту. Довольно часто делается перепланировка двухкомнатной квартиры в трехкомнатную, чтобы выделить дополнительное помещение при появлении нового члена семьи.


Для многих людей перепланировка двухкомнатной квартиры «хрущевки» является единственным вариантом 43 кв метра превратить в более комфортные условия проживания. Но для этого придется сносить все стены и создавать комнаты по своему усмотрению. Многие двухкомнатные квартиры имеют определенные недостатки, и только при помощи смещения перегородок можно создать более комфортное место жительства. Например, в них существует узкий и слишком длинный коридор, который совершенно не оставляет места, чтобы более удобно расставить.
Примеры перепланировки двушки

Все проекты перепланировки двухкомнатной квартиры должны учитывать все недостатки и достоинства площади, чтобы подобрать самый оптимальный вариант, соответствующий количеству жильцов в данной семье. Большинство таких квартир, которые строились в прошлом столетии, сегодня необходимо полностью изменить, чтобы они могли соответствовать реалиям настоящего времени.
На сегодняшний день существуют различные примеры перепланировки двухкомнатной квартиры; иногда одинокие люди хотят создать больший простор и сносят внутренние перегородки, чтобы получился один большой зал, который может заменить гостиную, спальню и столовую. А в другом случае многодетная семья хочет как можно удобнее разместить своих детей, поэтому из двух комнат стараются сделать три.


Можно использовать разные идеи перепланировки двухкомнатной квартиры: можно убрать перестенок, который стоит между кухней и гостиной комнатой. В этом случае гостиная остается на месте, а кухня немного расширяется. Здесь же может получиться и кабинет; он будет маленький, всего 4 м2, но это будет отдельная комнатка, где можно спокойно работать. А вторая комната — это будет детская.

Сегодня перепланировка типовой двухкомнатной квартиры включает иили лоджии. Конечно, можно убрать стенку между лоджией и сделать комнату побольше, но для этого потребуется побороть множество бюрократических преград. Поэтому намного проще хорошо утеплить лоджию и сделать из нее рабочий кабинет.

Если на кухне стоит газовая плита, то стенку здесь можно убрать, но план перепланировки двухкомнатной квартиры при этом варианте должен включать раздвижную стенку, потому что по техническим требованиям между газифицированной кухней и жилой комнатой должна быть перегородка. Варианты изменения комнат могут быть как для «сталинок» и «хрущевок», также и для «брежневок».







Планировка 2 комнатной квартиры брежневка. Сталинки, хрущевки, брежневки – привет из далекого прошлого
Первые хрущевки появились еще в 50-е годы прошлого столетия. Они отличались дешевизной стройматериалов, возводились достаточно быстро и позволяли переселить миллионы семей, которые после войны проживали в бараках и коммуналках. О комфорте тогда не особенно задумывались. В отличие от квартиры-брежневки, характеризуется и очень маленькой по площади кухней.
В середине 60-х появились так называемые брежневки. В отличие от хрущевок, они строились в основном из железобетонных панелей или силикатного кирпича. Конечно, это существенно снижало их теплоизоляцию по сравнению с хрущевками, зато они выигрывали за счет увеличения жилплощади. Так, брежневка 2-комнатная, планировка которой предполагала отсутствие проходных комнат, по жилплощади приравнивалась к трехкомнатной хрущевке.
Еще один не менее популярный вид недвижимости прошлого столетия – сталинки. Строить их начали еще в 30-е годы ХХ века. Знамениты они высокими потолками, просторными комнатами, их фасады часто украшались лепкой, балюстрадами и колоннами. Планировка таких квартир значительно отличалась от планировки брежневок и хрущевок, а площадь однокомнатной квартиры в таком доме достигала 50 кв. м. А ведь это 2-хкомнатная брежневка или 3-хкомнатная хрущевка!
До сих пор покупать квартиры-сталинки престижно, стоят они на порядок выше и значительно выигрывают своим месторасположением. В основном это центральные районы города, далеко от промышленных зон.
Перепланировка 2-х комнатной квартиры в панельном доме. Двухкомнатная хрущевка: переделка
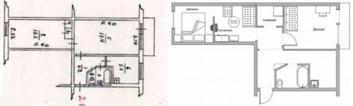
В постройках тех лет двухкомнатных квартир гораздо больше, чем однокомнатных, но проблемы у них одни и те же: малые площади и не продуманное расположение комнат, с наличием проходных помещений. Если заняться перемещением стен, то большинство проблем оказываются решаемыми. Например, имеется возможность разделения смежных комнат, после чего можно из двухкомнатной квартиры сделать и трехкомнатную. Для этого достаточно смонтировать еще одну перегородку, которая отделит комнату от коридора. В результате появляется дополнительная полезная площадь, где можно разместить гардеробную и кладовку. Полученное таким образом второе помещение более длинное и более узкое, разделяется на две части, посредством перегородки из гипсокартона.

На фото ниже представлен второй вариант неудачного планирования жилого пространства тех времен. Здесь, чтобы попасть во вторую комнату, необходимо пройти через первую. Планировка настолько неудачная, что, мало того, что малые площади, еще и появляются и мертвые зоны, что искажает функциональность комнат. Иногда, в торце второй комнаты располагают кладовку, которая не может быть использована в полной мере.

После переделки по этому варианту, ванна приобрела квадратную форму, а прихожая соединилась с первой комнатой. В данном случае, она выполняет роль гостиной, из которой сформирован вход в кухню. Следующее, более дальнее помещение разделено на две спальни. Перегородка между двумя спальнями смонтирована таким образом, чтобы осталось место для небольших гардеробных одной и другой спален.

Обычную двухкомнатную хрущевку в панельном доме, возможно превратить в квартиру студию, объединив гостиную и кухню. Основная задача подобной переделки состоит в том, чтобы сместить входные двери. За счет этого большая прихожая послужит в качестве гардеробной. При этом, объединяются туалет и ванна, а кухня и гостиная объединяются за счет частично разобранной перегородки.
Если имеется желание, то вторая комната может быть разделена на две части, за счет перегородки из гипсокартона, что позволит разделить рабочую и спальную зоны. Чтобы в спальню проникал свет, перегородку достаточно поднять на высоту не больше 1,5 метра.

Достаточно интересный вариант переделки 2-х комнатной квартиры в 3-х комнатную. Здесь прихожая немного скошена, что дало возможность увеличить площадь санузла, а перегородка, которая установлена между кухней и комнатой, частично удаляется. Вторая комната разделяется на 2 части, площадь которой увеличивается за счет кладовки и стенного шкафа. В результате образовались 2 спальни, а так как квартира угловая, то в каждой из спален имеется свое окно.
Коридор принял интересную форму, так как его стены располагаются по диагонали. В результате получается неплохой вариант, хотя функциональность коридора значительно снижена.