Сколько стоит ремонт однокомнатной квартиры.. Можно ли снизить стоимость ремонта однокомнатной квартиры
- Сколько стоит ремонт однокомнатной квартиры.. Можно ли снизить стоимость ремонта однокомнатной квартиры
- Сколько стоит ремонт однокомнатной квартиры в новостройке. Сколько будет стоить ремонт в новостройке с белой отделкой от застройщика
- Сколько стоит ремонт квартиры (вторичка). Ремонт квартир вторичного жилья в СПб
- Сколько стоит ремонт квартиры 60 кв м. Стоимость ремонта для 60м2 трешки в новостройке.
Сколько стоит ремонт однокомнатной квартиры.. Можно ли снизить стоимость ремонта однокомнатной квартиры
Чтобы избежать неприятных сюрпризов и проволочек со своевременным окончанием ремонта, необходимо заранее определить ценовые показатели и бюджет, который можно выделить на проведение ремонтных работ. Ведь стоимость полного ремонта однокомнатной квартиры может оказаться неподъемной для ее хозяев. Поэтому работы придется разделить на несколько этапов или привлечь дополнительное финансирование из кредитных организаций. Но внести ясность в финансовый аспект ремонта необходимо еще перед его началом.

Важно также, чтобы к старту ремонтных работ на руках был подробный дизайн-проект. Лучше всего, конечно, если его выполнит профессиональный дизайнер. Услуги подобных специалистов с разнообразными способами оплаты сейчас представлены в широком ассортименте. Но в целях экономии можно самостоятельно набросать план помещений с расположением мебели, техники и слаботочных сетей (интернет, телефон).
Размещение розеток и выключателей, а также схему разводки электросети лучше пусть сделает мастер, опираясь на план-схему, нарисованную владельцем квартиры.

После этого начинается самый важный этап – выбор ремонтников (частных мастеров, подрядчиков или отдельных бригад). И тут возникает новая трудность – найти добросовестных рабочих.
Самым распространенным каналом для поиска исполнителей в Москве являются доски объявлений и тематические порталы в Интернете. На втором месте находятся печатные издания и наружная реклама. Еще один способ – сарафанное радио.
Стоит отметить, что стоимость бюджетного ремонта однокомнатной квартиры, который будут выполнять частники, обойдется на 20–30 % ниже, чем при заключении договора подряда с организацией. Но в этом случае есть большой риск получить некачественный результат или нарушение сроков, которые по возникшим затратам будут равны сэкономленным в начале деньгам.
Сколько стоит ремонт однокомнатной квартиры в новостройке. Сколько будет стоить ремонт в новостройке с белой отделкой от застройщика
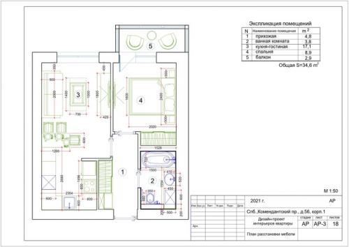
В данной статье посчитаем сколько будет стоить ремонт однокомнатной квартиры в новостройке с предчистовой отделкой от застройщика в 2021 году.
Ремонт будет выполняться по дизайн-проекту, т.к. будущих жильцов этой квартиры не совсем устраивает то, что предложил застройщик.
Что мы имеем:
1 комнатная квартира площадью 34,6 м2 с белой отделкой.

Белая отделка в данном случае это так называемая подготовка квартиры к стадии дизайна.
Что есть в квартире: натяжной потолок во всех помещениях, полностью выполнена электрика, выведены коммуникации на кухне и санузлах, выровнены и зашпатлеваны стены, подготовленные полы для укладки покрытия, установлена входная дверь. Т.е почти все черновые работы сделаны. За исключением санузла.

Здесь уже сбита штукатурка, она была «кривая».
Остается лишь самая приятная часть чистовой отделки – уложить плитку, поклеить обои, уложить напольное покрытие.
НО…. это при условии, что Вас устраивает то, что предложил застройщик, а именно, электрика находится в тех местах, где вам будет удобно, вас устраивает ровность стен, сантехника выведена там, где вам будет удобно и т.п.

Итак, расскажем во сколько обойдется ремонт в квартире с белой отделкой от застройщика семье, которую не совсем устроило то, что предложил застройщик.
1й этап: демонтажные работы – 29931 руб.
Ремонт выполняется по дизайн-проекту.
Часть электрики и сантехники переделывается, соответственно, старое убираем, натяжной потолок также снимаем, т.к. меняется конфигурация помещений. Сбиваем штукатурку, и делаем «ремонт» трещин» по имеющейся шпатлевке.
2й этап – штукатурные работы в ванной комнате – 12775 рублей.
3 этап – подготовка перед электромонтажными и сантехническими работами – 12400 рублей.
Сюда также входит техническая укладка плитки и вынос и вывоз мусора.
4 этап – электромонтажные работы – 39675 рублей
5 этап – Сантехнически работы - 9032 рублей.
Это прокладка руб, разводка труб, установка кранов, счетчиков, установка коллектора, установка обратных клапанов, и т.д.
Более подробно здесь:
Далее идет этап работы с листовыми материалами . В данной квартире собирается короб в ванной комнате. Плюс вынос и вывоз мусора – 9032 руб.
Следующий этап - Малярные работы – 64855 рублей.
Это один из самых дорогих этапов в данном ремонте.
Потом идет настил теплого пола , там совсем небольшая площадь. Сумма за работы: 1721 руб.
Следом идет Ровнитель - 21297 рублей.
Подробнее:
Следующий этап - гидроизоляция и плиточные работы - 69524 рублей.
Перед малярными работами обязательно делаем чистовую уборку во всех помещениях, чтобы ни пыль, ни ворсинки не попали при поклейке и покраске обоев.
Уборка обойдется в 6920 рублей.
А малярные работы во всех помещениях в 72930 рублей.
Это грунтовка, оклейка флизелином, грунтовка, покраска (откосы, стены).
Следующий этап: Электромонтажные работы (2 этап) – 22000 рублей.
Сюда входят такие работы, как установка розеток, выключателей, установка точечных светильников, люстры, установка электрического полотенцесушителя, установка терморегулятора, установка блока управления системой защиты от протечек.
Следующий этап: Сантехнические работы (установка) - 23600 рублей.
Следом идет укладка плитки ПВХ в прихожей, кухне-гостиной и спальне - 9086 рублей.
Далее монтаж плинтусов МДФ во всех помещениях - 13080 рублей.
ИТОГО: 503826, 50 руб.
Все этапы работ указаны в сводной таблице ниже (это не смета).

Сколько стоит ремонт квартиры (вторичка). Ремонт квартир вторичного жилья в СПб
Наши мастера имеют все необходимые знания, а так же большой опыт в отделке и ремонте квартир в домах от 1800 года постройки. Мы знаем обо всех особенностях квартир старого и вторичного фондов и поможем Вам выбрать самый выгодный и удобный вид ремонтных работ.
Бывает, что при покупке вторичной квартиры ремонт не требуется, потому что старые владельцы перед продажей привели помещение в порядок. В таких случаях новые хозяева обращаются к мастерам за косметической отделкой квартиры, что не требует больших затрат времени и денег, но помогает преобразить жильё и подстроит его под себя.
В других случаях старые хозяева сами проводят только внешние косметические работы. В этом случае требуется капитальный ремонт вторичного жилого фонда, с масштабным демонтажём всех старых покрытий и заменой коммуникаций.
Все вопросы и сомнения по поводу предстоящего ремонта вторички нужно обсудить с прорабом во время первого осмотра помещения. Расскажите, что именно вас не устраивает, что хотите изменить, спросите, насколько серьёзны проблемы. Наши мастера обязательно найдут способ устроить всё просто и со вкусом!
Советы наших мастеров:
Б о льшую часть ремонта вторичного жилого фонда доверьте профессионалам. Если в новостройке или при косметической отделке можно где-то справиться самостоятельно, то серьёзные работы вот вторичных зданиях требуют более деликатного подхода на всех этапах ремонта: от демонтажа и штробления стен до финальных чистовых штрихов.
Также приготовьтесь к тому, что ремонт квартиры вторички займёт время, возможно, много времени. Не ведитесь на обещание быстрого ремонта, тем более во вторичном фонде!
Сколько стоит ремонт квартиры 60 кв м. Стоимость ремонта для 60м2 трешки в новостройке.
Девочки, вопрос такой. Что имеем: квартира в новостройке в Химках. 60м2 - 3 комнаты , коридор, 2 санузла (ванна будет в одном). Что уже есть: окна стоят, батареи рабочие отличные стоят, стяжка, все ,больше ничего нет. Есть нная сумма не самая большая, но и не маленькая, я считаю. Прошу мужа хоть примерно просчитать сколько будет стоить ремонт квартиры. Но он не хочет, тк считает, что нам все равно не хватит . Но мне важно знать хоть примерную сумму чтобы понимать к чему стремится. Чтобы знать сколько нужно еще заработать/занять/накопить.
Муж -умница пытается сам делать, но у него сейчас работа с 8 утра до 8 вечера. Когда ж еще ремонт ему делать? Это просто жизнь на износ, да и скорость такого ремонта сами понимаете . Живем со свекровью. Замечательная женщина, и помогает нам очень, но я считаю, что взрослые родители и дети должны жить отдельно (ну есессно пока родители в силе, а не немощные). В общем, кто в теме, тот поймет, да и она от нас устала уже ))))
Что еще. Ремонт планируем не дорогой, материалы будем брать в Леруа или Оби. Потолки- натяжные, пол - ламинат. Стены - обои под покраску. Нужна стоимость без мебели. Нам озвучили 6 тыс за метр только черновые работы. Те для нас выходит 360 000 черновые работы без материалов.
Сколько по-вашему будут стоить для нашей квартиры:
- материалы для черновых работ
- чистовые работы
- материалы для чистовых работ.
Если кто-то сможет озвучить стоимость по своему сделанному ремонту с разбивкой на черновые/чистовые работы/материалы, буду очень благодарна. Только укажите, пожалуйста площадь квартиры и уровень ремонта: минимум, средний, выше среднего, шик :) . Спасибо!