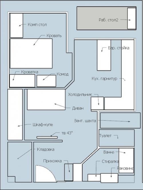
Площадь 42 км м без лоджии. Должна быть спальня, кухня - гостинная, два рабочих места, кладовка (для 2 х великов, хоз вещей, инструментов, снаряжения и тд), шкаф - купе, раздельный су. Около вент. Шахты ещё будет угол для котэ.

Может что лучше можно сделать площадь маленькая, нужно все уместить. На 3 м скрине изначальная планировка.

