Интерьер и Декор
Лучшие идеи дизайна и декора!
Main menu
Главная
Новости
Статьи
Главная
»
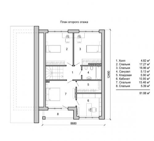
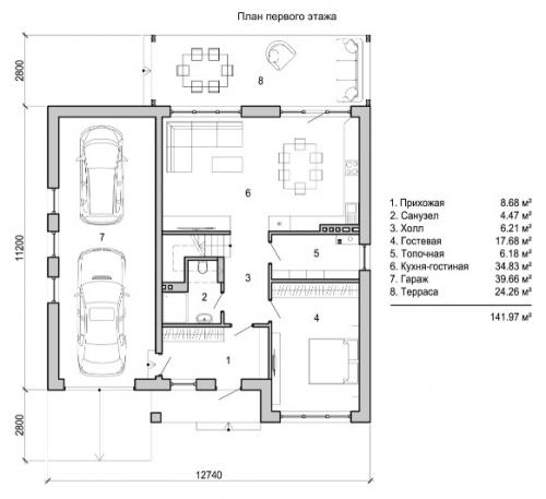
Дом, в котором продумано всё.
Дом, в котором продумано всё.
11.12.2021 в 09:43
Отличный вариант для большой семьи. Строительство обойдётся в 5 млн
.
Понравилось? Поделитесь с друзьями!
⇦
Вентиляционные воздушные клапаны для канализации. Разновидности и установка воздушных клапанов для канализации
⇨
Виды гипса и особенности его применения в лепнине. Декор из гипса: положительные и отрицательные характеристики