Особенности планировки 3 комнатных квартир в брежневке. Особенности брежневок
- Особенности планировки 3 комнатных квартир в брежневке. Особенности брежневок
- Брежневка планировка 3 комнатная. Планировка квартиры «брежневка»
- Брежневка 2 комнатная ремонт. Брежневки описание и типовые планировки
- Брежневка планировка 4-х комнатная. Характеристики и описание квартиры-брежневки
- Ремонт брежневка. Расскажите о ходе ремонта и особенностях планировки
- Брежневка 9 этажей планировка. Особенности планировки
Особенности планировки 3 комнатных квартир в брежневке. Особенности брежневок
Брежневка – это жилой дом, получивший такое название из-за того, что основная застройка пришлась на время правления Л. И. Брежнева. Масштабная стройка началась в связи увеличением населения в городах. Необходимы было быстро и с минимальными усилиями, затратами, расселить много советских семей.
Так на смену хрущевке пришла так называемая улучшенка . Более удобная по планировке и просторнее по площади.
У брежневки года постройки приходятся на советский период. Подобные дома возводились в период с 1960 по 1990 год. Отличительной особенностью является увеличение этажности построек. На лестничной площадке располагалось не более 4 квартир.
Кухни стали просторнее, а совмещенный санузел встречается лишь в однокомнатных вариантах. Видов стандартных планировок достаточно много. Но типовые размеры следующие:
- Однушка – до 34 кв. м;
- Двухкомнатная – до 47 кв. м;
- Трехкомнатная – до 65 кв. м;
- Четырехкомнатная – максимальная площадь около 76 кв. м.
Брежневка и хрущевка отличия
Дом брежневка стал следующим поколением застройки после хрущевок, перепланировка которых стала сейчас очень популярна. Отличий между типовыми постройками есть как во внешнем виде, так и во внутренней планировке. Брежневка имела большую площадь, минимум которой составлял 33 кв. м. Это касается и габаритов лестничных площадок. Они также стали просторнее.
Важно! Именно в домах 60-х годов впервые появились лифты и мусоропроводы.
Высота потолка в брежневке составляла 2,5 – 2,6 м, в отличие от хрущевок. Они также не зря назывались домами улучшенной планировки . Исчезли проходные комнаты. Все помещения были изолированными с отдельными входами. Габариты кухни увеличились до 10 кв. м. в среднем. Раздельный санузел также стал плюсов построек времен Брежнева.
Есть лифты и мусоропроводы
Именно в брежневских домах появились лифты и специальные мусоропроводы. Это необходимая мера, с учетом того, что постройки возводились многоэтажные, от 9 до 16 этажей. Подниматься пешком было бы достаточно сложно. Удобство повышает и мусоропровод, находящийся в отдельном отсеке на лестничной площадке.
Способ постройки
Некоторые задумываются: брежневки – это какие дома, из чего построены?
В их основе железобетонные плиты. Они позволяли ускорить постройку и возводить сооружение быстрее. Квартиры брежневки стали более звукоизолированными, но менее теплыми. Альтернативной стал кирпич. Этот материал более теплый. Поэтому в некоторых случаях возводился кирпичный тип дома брежневки . Чаще всего это 16-ти этажные строения. У них было максимум 2 подъезда.
Отличительной особенностью домов являются плоские крыши. Их поверхность покрыта битумом, есть водостоки.
Этажность
Отмечалось, что отличительной особенностью строений времен Брежнева, была их высота.
В 60-х годах преобладали 9-ти этажные здания. Спустя 10 лет, с наступлением 70-х в брежневках увеличилась высота. Стали распространяться сооружения 16-ти этажные. Это позволяло разместить больше квартир, заняв меньше территории. Ведь 16-ти этажные дома имели не более 2-х подъездов и росли в высоту, а не вширь.
Обзор стоимости 21 год
На стоимость жилья влияют многие факторы. Среди них регион, район расположения, инфраструктура, площадь и прочее. Но можно выделить усредненную стоимость брежневок в 2021 году в крупных городах России.
| Количество комнат | Регион | ||||||
| Москва | МО | Санкт-Петербург | ЛО | Сочи | Екатеринбург | Казань | |
| 1-комнатная | 9,5 млн руб. | 5,7 млн. руб. | 6 млн. руб. | 3,8 млн. руб. | 7,8 млн. руб. | ||
| 2-комнатная | 12 млн. руб. | 7,5 млн. руб. | 9 млн. руб. | 5,2 млн. руб. | |||
| 3-комнатная | 18,5 млн. руб. | 9,5 млн. руб. | 12,8 млн. руб. |
Брежневка планировка 3 комнатная. Планировка квартиры «брежневка»
Планировка брежневка — особенности «брежневской» планировки необходимо учитывать, если вы выбираете квартиру в таком доме.
В газетных объявлениях и на досках рекламных объявлений об аренде и продаже жилья можно встретить такую характеристику, как «брежневка». Так же это определение имеет краткое наименование «бр».
Высказать мнение
Юлия Крушинская
Здравствуйте, живем в 4-х комнатной брежневке(пан.) в Ивановской обл. уже почти как 34 года с самой постройки дома. -квартира очень нравится, уютная, просторная! У каждого своя комната!!! Зал — для общего просмотра тв, игр, общения, принятия гостей и праздников!!! А, если есть ещё и балкон, вообще супер!!! Из одной комнаты по возможности можно сделать столовую, та что ближе к кухне, тоже вариант комфорта и уюта.
Анна Гончарова
С удовольствием читаю про планировки, так как жила и в хрущевке, и в брежневке, на данный момент проживаю в сталинке. Я фанат старых построек, кто бы что про них не говорил))) Сейчас так же существуют новые дома экономкласса (а большинство только их и может себе позволить). Малогабаритные, с неудобной планировкой. Только вот хрущевки и брежневки простоят еще сто лет, а современные постройки — не факт.
Наталья Ковалёва
Такие квартиры самый оптимальный вариант при покупке по принципу-цена-качество…средне-статистический вариант для людей со средним достатком…надёжные квартиры…я б купила такую а ни хрущевку, и не сталинку если б деньги были!
Татьяна
Я живу в кирпичной брежневке улучшенной планировки. На самом деле довольна, особенно по сравнению с родней, у которых квартира в «панельке». Там действительно зимой прохладно, стыки протекали одно время.
Антон Величко
От соседей многое зависит, но как показывает практика даже дороговизна жилья не страхует от соседей, которые будут мусорить и здесь даже планировка дома не придает сил)
Андрей
Знакомые два года назад купили «брежневку», старенькую 12-метровку, но, правда, в хорошем районе Москвы — на ВДНХ. Отдали 6 миллионов рублей!!! Кухня там, кажется, всего 5,5 метров. Правда, стоит отметить хороший ремонт фасада здания и подъезда внутри. И живут в этом доме очень приличные люди. Ни мусора, ни посторонних запахов не замечал, когда бывал там.
Антон Величко
Вы правы, и наличие/отсутствие мусоропровода не решает, когда люди-свиньи. Скоро опубликую статью с описанием одного из домов такого толка.
Ольга Венедиктова
Ольга
Прочитала статью и вспомнила квартиру бывшей свекрови, она в такой жила.Тесно, подъезды грязные мусор нужно выносить на улицу, мусоропровод вообще отсутствует.. Но и там люди были счастливы! Всё зависит только от человека. А нагадить можно в любом доме, с любой планировкой!
Оксана Кузнецова
В нашей новосторойке ещё хлеще: мусоропровода просто нет! Я Тоже поначалу радовалась, что не будет такого: заваленные мусоропроводы, окурки и пожары, плюс этот грохот неприятный, когда мусор спускают, а теперь, когда утром едешь в лифте с соседом и вместе с вами ещё два пакета мусора, то… А ещё пакеты выставляют на площадки, чтобы утром выбросить, Так, что не знаю, что и лучше…
Антон Величко
Спасибо, Александр!
Теперь мы знаем, что поклонников «брежневок» намного больше, чем может показаться на первый взгляд!
Alexandr
Брежневки не совсем ретро. Они в каждом городе и не только в странах бывшего СССР или соцлагеря. Видел фото из Австрии, Сирии, даже Колумбии — там тоже есть дома, внешне очень похожие на брежневки.
Антон Величко
Да, но эконом-класс еще страдает несуразностями в планировке. Один мой знакомый жаловался на типовую планировку в новостроке.. не всем вкусам она подходит)
Irina
Все эти недостатки, и правда, встречаются в домах, где использована планировка»брежневка». И от некоторых порой удаётся избавиться ограничением входа в дом.
Но что я бы хотела отметить: всё же хорошо прослеживается прогресс в улучшении планировки от «хрущовки» к «брежневке» и далее.
Alexandr
Мусоропроводы в брежневках почти везде заварены, потому что в них бросали окурки, спички и случались пожары. Раньше неприятно было ходить по лестницам брежневки, лампочки часто выкручивались, пахнет, иногда на ступеньках в темноте сидели непонятные личности. Сейчас с установкой домофона в подъезд и резкого ограничения входа в дом такого уже почти нет.
Брежневка 2 комнатная ремонт. Брежневки описание и типовые планировки
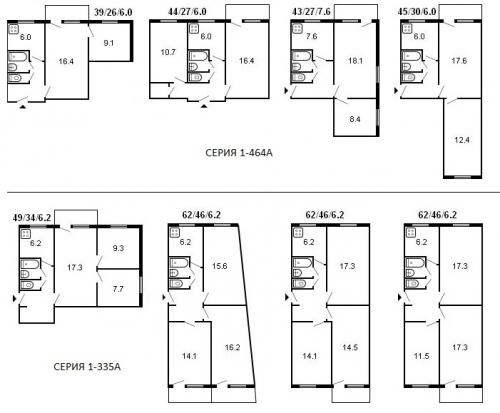
Всего насчитывается около 40 вариантов фото планировок брежневских домов, в зависимости от серии, плана и даты постройки. Однако, существуют и типовые варианты для квартир различной площади.
- Однокомнатная квартира имела площадь до 30 кв. м. На долю жилой комнаты отводилось 16 – 17 кв. м. Зона кухни имела в наличии 6 или 7 метров. Всю оставшуюся территорию занимали санузел, коридор и балкон, если он имелся в наличии.

Варианты планировки 1-комнатной квартиры
- 2 комнатная брежневка планировка, площадью до 48 квадратных метров, имела более удобную планировку. Варианты расположения комнат были представлены двумя способами. Первый способ – вагонная планировка. Две комнаты располагались справа и слева от центрального коридора. Они могли быть как изолированными друг от друга, так и проходными. Второй способ – угловой. Он более известен, как планировка квартиры сорокопятки. Фотографии дизайна 2 комнатной брежневки показывают, что комнаты могли примыкать друг к другу, но иметь отдельный вход из центрального коридора. Или же быть разделенными кухней и санузлом.

Варианты планировок 2-комнатных квартир
- Трехкомнатная планировка квартиры, площадью до 63 квадратов, также предоставляла на выбор несколько способов расположения комнат. Первый вариант предполагал наличие проходной гостиной, которая могла вести к одной из спальных комнат, или к обеим сразу. В некоторых случаях дверь во вторую спальню выходила прямо из коридора. Наиболее востребованным был вариант планировки под названием “Ромашка”. В этом случае все три комнаты были изолированными друг от друга и имели отдельные входы со стороны центрального коридора.

Варианты планировочных решений 3-комнатных квартир
- Планировка четырехкомнатной квартиры, площадью до 76 метров, была схожа с трехкомнатной. В наличии имелись варианты как с изолированными комнатами, так и с проходной гостиной.

Брежневка планировка 4-х комнатная. Характеристики и описание квартиры-брежневки
Имеется несколько разновидностей типовых планировок брежневок, в том числе кирпичные варианты высотой в 9, 14 и 17 этажей.
Особенность панельных пятиэтажек – небольшая кухня площадью 6–7 м2и раздельный санузел. На площадке располагаются по 3 квартиры. Высота потолков в брежневке 5 этажей – 2,5 метра.
Более современными являются 9-этажные строения. Квартиры в них больше по размеру, а высота потолков – 2,64 метра.
В зависимости от числа комнат в квартире их планировка различается. В однокомнатных чаще всего совмещенный санузел. Площадь однушки в среднем 33–34 м2. Она состоит из кухни (6–7 м2), санузла, коридора и гостиной (16–17 м2в панельном доме и 18–19 м2в кирпичном).
Максимальная площадь 2-комнатных квартир – 47 м2. Санузел в них небольшой, но раздельный. Типовая кухня примерно 6–7 м2. В некоторых домах комнаты одинаковые по размеру, в других – одна побольше. Их расположение тоже может быть разным. Например, друг против друга и с отдельными дверями, окна выходят во двор и на улицу – такая планировка называется «распашонка».
В трехкомнатных квартирах (площадью 49–65 м2) каждое помещение имеет отдельную дверь и вход, проходных комнат не предусмотрено. Кухня – типовая, площадь гостиной – 15–17 м2, детской комнаты и спальни – 8–10 м2, имеется один балкон.
Общая площадь 4-комнатной брежневки не превышает 76 м2. Она состоит из изолированных или проходных комнат (как правило, гостиной), кухни, санузла и коридора. При наличии изолированных комнат в двух из них подразумевается балкон.
Ремонт брежневка. Расскажите о ходе ремонта и особенностях планировки
Состояние квартиры до ремонта оставляло желать лучшего. Настолько «лучшего», что пришлось делать полный демонтаж всех старых покрытий.
Этот факт немного пугал предстоящим объемом работ, но в то же время радовал возможностью сделать все максимально под свои привычки и на свой вкус.
Состояние квартиры до ремонта. Фото из личного архива @marievarsovie
Состояние квартиры до ремонта. Фото из личного архива @marievarsovie
На подготовку к ремонту ушло около года. За это время мы с мужем определились со стилевым направлением, в котором хотим двигаться. Набросали первые чертежи, план розеток, выключателей и освещения в любительских планировочных программах, которых достаточно в свободном доступе.
Когда мы думали над планировкой, я поняла, за что еще люблю старый фонд: несмотря на скромную площадь в 58 квадратных метров, в квартире 4 окна, то есть больше возможностей сделать изолированные помещения. Забегая вперед, могу сказать, что окон нам все равно не хватило.
В итоге остановились на следующем варианте: снесли перегородку между гостиной и прихожей, чтобы входить не в узкий темный коридор, а в большое помещение с естественным светом, детскую оставили в прежних границах, а самую большую комнату в квартире поделили на спальню и кабинет. Кабинет получился совсем маленьким — 4 кв. м, и для обеспечения доступа дневного света мы сделали в нем интерьерное окно в спальню.
Брежневка 9 этажей планировка. Особенности планировки
Если хрущёвки в большинстве случаев имели крайне небольшой размер, то планировка брежневки была продумана значительно лучше.
Появились не только 1,2 и 3 – комнатные квартиры, но и 4-х комнатные, предназначенные для больших семей.
пример планировки четырехкомнатной брежневки
Значительно увеличилась площадь жилья. Стандартными стали следующие размеры:
- 1 комнатная квартира – 22-31 кв. м;
- 2 комнатная квартира – 42-45 кв. м;
- 3 комнатная квартира – 48-56 кв. м;
- 4 комнатная квартира – 58-70 кв. м.
Изменился и вид самих зданий. Как уже говорилось выше, они подросли с 5 этажей до 9 и даже до 16 – это позволило с минимальными затратами заселить большое количество людей.
Высокие здания были оборудованы мусоропроводами и лифтами, что сделало жизнь обитателей куда более приятной и удобной.
Совмещенные санузлы частично ушли в прошлое. На лестничных площадках можно было увидеть как четыре, так и три квартиры. В первом случае использовались совмещенные санузлы, а во втором – раздельные, благодаря чему комфортность проживания в квартирах существенно возросла.
Если в хрущёвках высота потолков редко превышала 2,4 метра, то для брежневки стандартом считалась высота от 2.5 до 2.7 метра.
Площадь конкретных помещений также возросла – в одних случаях (кухни и коридоры) несущественно, а вот в других (жилые комнаты) весьма заметно. Например, если кухня имела почти такую же площадь, как в хрущёвках (6-7 метров), то площадь гостиной составляла более 17 метров, а спален и детских – более 8 метров.
Разумеется, такие перемены были с удовольствием встречены новыми владельцами квартир. Например, двухкомнатная брежневка имела примерно такую же площадь, как и.
пример планировки двухкомнатной брежневки
Серьезным плюсом можно назвать и такую особенность планировки, как наличие большого количества изолированных комнат. То есть комнат, не предусматривающих возможность сквозного прохода.Поэтому можно с уверенностью заявить, что брежневки определенно были улучшенным вариантом хрущёвок.



