Дизайн панельной двухкомнатной квартиры. Дизайн двушки в панельном доме
Дизайн панельной двухкомнатной квартиры. Дизайн двушки в панельном доме
В квартире можно применить 1 стилистическое решение. Чаще в квартире все в пастельных тонах. Для удобства можно использовать встроенную мебель.

Площадь должна быть максимально функционально использоваться. Освещение должна способствовать увеличению пространства.

При стандартном планировании площадь нужно разделить на спальную зону и отдыха. Кухню можно объединить с гостиной или оставить изолированной, если семья небольшая. Если есть лоджия, она может стать прекрасным кабинетом, а санузел можно расширить за счет прихожей.

Чтобы расположить мебель наиболее рационально, можно воспользоваться компьютерными программами, которые помогут увидеть выбранный дизайн двухкомнатной квартиры в трехмерном изображении. Можно мебель передвигать для удобства и функциональности.

Если нужна перепланировка, нельзя сносить несущие стены. Для других перегородок при сносе необходимо официальное разрешение. После этих этапов работ можно приступать к дизайн-проекту.

Светлые тона применять на стенах, а на полу можно темные оттенки. Это увеличит пространство квартиры.

Кухня – место сбора всей семьи, лучше выбрать плавные формы без углов. Гостиная может быть контрастной кухне. Идеальны шкафы-купе с раздвижными дверями, что сэкономит место. Двухуровневый потолок поможет лучше осветить помещение.

Стал модным винтажный стиль, где можно сочетать антикварные вещи в дизайне и отделке помещения. Уже в интерьере должна ощущаться богатая история каждого предмета. Специально для этого вещи искусственно «старят».

Материалы для винтажа используют элементы из меди, металлической ковки, дорогой породы дерева, текстиль и пр. Главной изюминкой стиля будет неровность поверхностей, трещины или потертости. Важны мелочи, подчеркивающие старину: старинные часы, черно-белые фото, вазочки, картины и т. д.

Дизайн панельной двухкомнатной квартир. Особенности
Перед планированием ремонта и предварительного консультирования с дизайнером важно обговорить основные моменты и принять решения по ряду вопросов самостоятельно. Хозяева должны знать, какой дизайн они хотят видеть в своей квартире. Возможно, понадобится перепланировка.
На этот фактор влияет несколько особенностей:
- Общая площадь квартиры и месторасположение комнат.
- Количество проживающих и необходимость обустройства личного уголка для каждого.
- Стиль жизни членов семьи.
- Выбранный стиль.
Создавать дизайн двухкомнатной квартиры в «новостройке» гораздо проще, чем во вторичном жилье. Совсем немногие оказываются недовольны планировкой квартир в новых домах, и хотят изменить ее. К сожалению, то же самое об обладателях квартир в старых домах сказать нельзя, ведь квартиры здесь зачастую совсем крошечные. Не радуют и архитектурные особенности: узкий и темный коридор, совмещенные ванная и туалет, маленькая кухня. Одни дизайнеры прибегают к использованию методов зрительного увеличения помещений, другие настаивают на перепланировке.
Имейте в виду, что в некоторых домах получить разрешение на перепланировку кухни невозможно. Это связано, в первую очередь, с расположением коммуникаций, в частности, газопроводов.
После того, как работы по перепланировке завершены, можно начинать планировать непосредственно ремонт. Практически все дизайнеры рекомендуют оформлять пространство в едином стиле, выбранном заранее. При комбинировании в двухкомнатной квартире нескольких стилей потребуется помощь настоящего профессионала своего дела, однако мало кто станет планировать интерьер смешанной стилистики на площади в 40 кв. м. Оформление квартиры в современном стилистическом направлении подразумевает сочетание комфорта и функциональности, присущих стилю минимализм. Удобство, практичность и внешняя привлекательность составляют основу современного дизайна.
Дизайн панельной двухкомнатной квартир. Нестандартный и запоминающийся дизайн двухкомнатной хрущевки 44 кв. м.
Создать нестандартный и запоминающийся дизайн двухкомнатной хрущевки 44 кв. м. - задача очень сложная. Дизайнер получил карт-бланш от хозяев на использование цвета, что помогло полностью изменить облик жилья. Веселое разноцветное пространство смотрится необычно и запоминается.
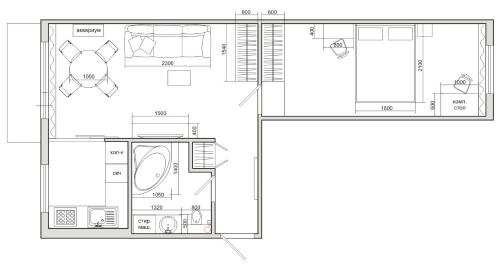
“Слабое место” в проекте двухкомнатной квартиры-хрущевки - планировка.
Стараясь удешевить строительство, архитекторы создали довольно неудобные жилые помещения, которые к тому же с трудом поддаются изменениям: перенести кухню и ванную комнату не только нельзя, но и, по сути дела, некуда. Зато внутренние перегородки, как правило, не являются несущими.
Чтобы интерьер 2-комнатной квартиры-хрущевки соответствовал современным стандартам комфорта, дизайнеры начали с того, что убрали коридор - его все равно невозможно использовать, он слишком маленький и узкий. Это помогло немного увеличить ванную комнату и кухонную зону, а также разместить во входной зоне систему хранения. Получилось свободное пространство, в котором функциональные зоны сменяют одна другую, оставляя в центре “кубик”, в который встроена сантехническая зона.

Цвета
Белый как основа дизайна двухкомнатной хрущевки 44 кв. м. дает возможность применять любые сочетания цветов и заодно зрительно увеличивает небольшие размеры помещения. Цвет натурального дерева, покрывающий пол и одну из стен, добавляет теплоты, уюта и вносит в минимализм квартиры эко- нотку.

Гостиная
Контрастные цвета - фиолетовый и желтый - задают тон в оформлении гостиной. Сюда вынесена столовая группа, поскольку размеры кухни не позволяют разместить в ней обеденную зону. Стол со столешницей из полупрозрачного стекла и изящной формы стулья на тонких металлических ножках выглядят воздушно и не утяжеляют восприятие пространства.
В интерьере 2-комнатной квартиры-хрущевки использованы различные приемы увеличения площади, как реального, так и визуального. Яркие обои с графическим рисунком занимают только одну стену - этот прием зрительно расширяет комнату по краям. Шкаф-купе имеет зеркальные двери, позволяющие углубить перспективу, увеличить освещенность и удвоить ощущение объема.

Кухня
Проект двухкомнатной квартиры-хрущевки не дает возможности перенести кухню, поэтому ее пришлось оставить на прежнем месте. Но вот стену, отгораживающую ее от остальных помещений, удалось убрать, и за счет этой операции площадь кухни немного увеличилась.
Фасады кухонной мебели - деревянные, классической формы, с филенками, и покрашены в очень нежный голубой тон - такое решение делает даже маленькое помещение просторным и уютным. Белая столешница рабочей зоны и бежевый фартук над ней добавляют света и тепла. Особенная “фишка” кухни - узорный “ковер” на полу. Он выглядит как настоящий, хотя собран из плитки.

Спальня
Дизайн двухкомнатной хрущевки 44 кв. м. отличается использованием ярких цветов, и в спальне это лайм. Текстиль интенсивного фиолетового цвета образует сочный контраст и придает нарядность простому по форме помещению.
Выкрашенная в белый цвет мебель визуально кажется менее объемной и тяжелой, чем есть на самом деле. Стена напротив кровати украшена ярким рисунком - круги одного размера покрывают всю поверхность, создавая ритмичный узор, позволяющий убрать центр внимания с дефектов планировки.

Постеры над изголовьем кровати добавляют в обстановку эко-стилистику. В интерьере 2-комнатной квартиры-хрущевки имеется существенный недостаток: спальня слишком узкая и длинная. Чтобы немного исправить ее форму, шкаф для одежды расположили напротив окна, вдоль стены с дверью. Над дверью появилась антресоль. В результате пропорции комнаты улучшились, и нашлось место для всего необходимого, причем оно практически не заметно и не портит интерьера.

Санузел
В изначальном проекте двухкомнатной квартиры-хрущевки санузел был маленьким, и ванная стандартных размеров в нем не помещалась. Поскольку коридор убрали, санузел расширили, и теперь здесь стоит угловая ванна большого размера. Пол под ней выделен плиткой коричневого цвета, контрастирующего со светло-серым оттенком стен.
Три вертикальные коричневые полосы поднимаются от пола по стенам к потолку и подчеркивают объем ванной комнаты. Такой же коричневой плиткой, имитирующей доски, выложена и стена над раковиной. Чтобы не утяжелять восприятие обстановки, дизайнеры постарались избежать лишнего: даже зеркало не стали обрамлять, чтобы не отвлекать внимание.

