Объединить кухню с гостиной. Плюсы и минусы
- Объединить кухню с гостиной. Плюсы и минусы
- Кухня гостиная бти. Основные требования к переустройству, перепланировке
- Перепланировка кухня гостиная. Перепланировка: кухня в коридоре
- Маленькая кухня совмещенная с гостинной. Дизайн кухни-гостиной в маленькой квартире
- Кухня-гостиная планировка. Мебель
- Видео объединение кухни с гостиной или комнатой. Все нюансы.
Объединить кухню с гостиной. Плюсы и минусы
Начнем с приятностей, которые принесет кухня, совмещенная с гостиной, а это:
- удобство передвижения ввиду отсутствия дверей и стены;
- «Все под рукой, и дети на виду» - важный момент для родителей;
- приготовление еды и одновременное общение с семьей или друзьями – теперь вы вряд ли утратите мысль, вернувшись с кухни;
- возможность организации вечеринок или принятия большего количества гостей;
- вдвое больше дневного света;
- появление места для размещения столовой зоны;
- использование одного телевизора или стационарного телефона вместо поисков мест для их расположения в каждой из комнат.
Кстати, хорошие советы озвучивает в своем
Что интересно, объединяют кухню и гостиную не только жители малогабаритных квартир, хотя для них этот вопрос наиболее актуален. Как видно на фото – кухня, совмещенная с гостиной – это не только возможность выиграть место.
Минусы нашей большой комнаты проигрывают плюсам по количеству:
- распространение кухонных запахов и шумов;
- чтобы снести стенку, перенести раковину или внести другие изменения в технический паспорт квартиры, вам потребуется разрешение БТИ;
- использование устойчивых к повышенной влажности материалов, которые способны выдержать многократную уборку;
- поддержание чистоты в обеих зонах – теперь вы не сможете отложить мытье посуды на потом.
А знаете, кто-то даже сочтет последний пункт плюсом и отличной мотивацией для регулярной уборки.
Позже мы расскажем, как преодолеть эти несложные препятствия. А пока – идем дальше.
Кухня гостиная бти. Основные требования к переустройству, перепланировке
Существует определенный список того, что во время перепланировки делать можно и нельзя, в целях безопасности собственной и других жильцов.

Без разрешения на перепланировку вы можете столкнуться с серьезными проблемами в дальнейшем
Чего нельзя делать ни в коем случае:
- полностью удалять несущую стену, если не возведены опоры – грозит обрушением;
- значительно увеличивать допустимые нагрузки на капитальные конструкции;
- переносить любые «водные» элементы в комнату, но допустимо перемещать их в пределах кухонного пространства;
- уменьшать, демонтировать вентиляционные короба;
- при наличии газовой плиты, водонагревателя подобной конструкции, кухня должна иметь площадь не менее пяти квадратных метров, размещаться за перегородкой, иметь двери;
- если дом является «историческим памятником», объектом «культурного наследия» перепланировку сделать не разрешат.

Демонтировать легкую перегородку между кухней и гостиной возможно, а вот перенести её в сторону комнаты уже нельзя – размещение кухни над жилыми помещениями соседей снизу запрещено соответствующими нормативными документами
Что делать разрешено:
- разработать подходящий проект;
- выполнить проем в любом месте капитальной стены;
- организовать слияние кухне-гостиного помещения с балконом;
- перенести кухню в другое место квартиры;
- монтировать отдельную электропроводку от щита в подъезде, если общая мощность электросети дома это позволяет;
- демонтировать подоконники, делая вместо них столешницы.

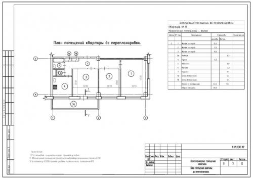
Перепланировка кухни с газовой плитой в кухню-гостиную – план квартиры до переделки

Перепланировка кухни с газовой плитой в кухню-гостиную – план квартиры после переделки
Нелегальная, то есть несогласованная с органами БТИ перепланировка, незаконна, потому уполномоченные органы имеют право обязать привести квартиру в исходное состояние. Также незаконное переоборудование помещения неизбежно вызовет проблемы при попытке продажи жилого помещения.
Перепланировка кухня гостиная. Перепланировка: кухня в коридоре
Перепланировка кухни в кухню-гостиную тоже возможна. При этом стоит помнить о том, что действующее законодательство запрещает оставлять дверные проёмы без дверей в том случае, когда помещение оснащено газовой плитой. Обычно коридор не имеет двери, поэтому перенести в него кухню можно только в том случае, если будет электрическая плита.
В обязательном порядке учитывают и конструктивные особенности здания. Для переноса в коридор приходиться демонтировать стены. Для освещения иногда в стенах требуется сделать проём или окно.

При расположении кухни в коридоре гарнитур расставляют вдоль стен, а столовую зону лучше вынести в другую комнату
Обратите внимание! Запрещается на месте бывшей кухне оборудовать жилую комнату. Вентиляция потребует переноса и усиления всей системы. Запрещён перенос в коридор в зданиях свыше 17 этажей.
Далеко не все квартиры приветствуют объединение, и комнаты, перенесённые в коридор, но если такое решение будет принято, лучше всего пойти по пути улучшения функционала помещения: в большинстве случаев устанавливают встроенное кухонное оборудование, так как это позволяет экономить полезную площадь, которая в коридоре и так небольшая. В этом помещении можно устроить небольшую кладовую комнату, куда можно складывать различные кухонные принадлежности.
Зона приёма пищи может быть размещена в конце коридора-кухни, так как если её разместить в другом месте, может быть затруднён свободный проход к двери, а это уже представляет опасность в случае чрезвычайной ситуации.
Оформить кухню можно в светлых тонах. Здесь будет уместен белый диван, имеющий подушки в золотых и голубоватых оттенках.
Этот вариант перепланировки зависит от типа здания. Стандартные панельные дома имеют относительно узкий коридор, и что-то туда перенести практически невозможно. А хрущёвка вполне подойдёт для этого, особенно если в ней коридор тупиковый.
Маленькая кухня совмещенная с гостинной. Дизайн кухни-гостиной в маленькой квартире
Перепланировка малогабаритной квартиры с последующим объединением кухни и гостиной может совершенно преобразить жилье, сделать его более комфортным и стильным. Но, поскольку общая площадь все равно ограничена, в обстановке необходимо руководствоваться чувством меры и по возможности максимально «облегчать» дизайн.
Цвета
Как известно, неброские светлые тона визуально расширяют пространство, а темные и насыщенные — уменьшают. Это значит, что оптимальным решением для маленькой кухни-гостиной станут молочно-белые, серые, бежевые, нежные пастельные краски. А вот резких цветовых контрастов, пестроты и чрезмерной яркости в деталях желательно избегать.


Текстуры
Углубить перспективу в небольшой комнате помогут гладкие светоотражающие поверхности. Это может быть отполированный до блеска камень светлых оттенков (либо искусственный аналог), глянцевая плитка, лакированные или ламинированные пвх-пленкой фасады кухонного гарнитура, хромированная техника и аксессуары.
Но и здесь важно не перестараться, чтобы оформленная таким образом кухня-гостиная не превратилась в зеркальный лабиринт.


Пропорции
Объем и очертания каждого предмета, особенно крупногабаритной мебели, значительно влияют на интерьер компактной студии. Так, если нужно зрительно поднять выше потолок, стоит акцентировать внимание на вертикальных элементах: высоких узких шкафах, узорных бордюрах и рисунках, декоративных колоннах, металлических трубах, шторах во всю длину. Горизонтального объема помещению придадут фотообои с реалистичной перспективой, удлиненные диваны, столы, широкие открытые полки.

Кухня-гостиная планировка. Мебель
Какой бы просторной ни была совмещенная с гостиной кухня, мебель, в частности - стулья не должны препятствовать свободному передвижению.
Барная стойка, характерная для кухонь в современном стиле, требует соответствующих стульев на высоких ножках.
А если места не так много или необходимость в сиденьях возникает периодически, задумайтесь о раскладных или выдвижных моделях.
Размещение кухонных модулей зависит от подведенных коммуникаций и масштабов готовки. Выбирая гарнитур, отдавайте предпочтение стандартным моделям – в них поместится встроенная техника, да и стоят они дешевле. Компромиссом при линейной планировке совмещенной с гостиной кухни будет ряд стандартных модулей, заканчивающийся одним нестандартным.
Если при всем желании нужная утварь в ящиках не помещается, используйте рейлинги, магниты на кухонном фартуке, под верхним гарнитуром или на консоли барной стойки.

Как и другие кухонные поверхности, фасады мебели должны выдержать натиск влаги, жиров и поддаваться влажной уборке. Особое внимание стоит уделить рабочей поверхности, полу и кухонному фартуку.
Идея : подвесные рейлинги для смартфонов и планшетов помогут вам не отвлекаться от разговора или просмотра
Так вы будете наблюдать за всем происходящим в гостиной. Конечно, возможно оформление всего фартука глянцевым или зеркальным материалом, но они могут неприятно отражать свет.