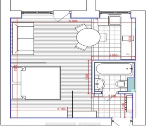
План 1 комнатной квартиры хрущевки. Планировки серий домов раннего строительства
- План 1 комнатной квартиры хрущевки. Планировки серий домов раннего строительства
- Планировка 1 комнатной квартиры. Планировка малогабаритной однокомнатной квартиры
- Дизайн однокомнатной хрущевки без перепланировки. Примеры удачных перепланировок хрущевок
- Хрущевка планировка 2-х комнатная. Преимущества и недостатки перепланировки
- Дизайн интерьера 1 комнатной квартиры хрущевки. Особенности интерьера
- Лучшая планировка 1 комнатной квартиры. Как зонировать пространство совмещенной с гостиной кухни?
- Перепланировка однокомнатной хрущевки в двухкомнатную. Что такое перепланировка и как ее оформить
- Видео дизайн 1 комнатной квартиры хрущевки
План 1 комнатной квартиры хрущевки. Планировки серий домов раннего строительства
Итак, какие же разновидности малометражек существовали в Советском Союзе и существуют по сей день? Первая, и самая популярная серия жилья возводилась под номером 1-464. Все квартиры этой серии оборудованы балконами и небольшими кладовыми, но в подъездах отсутствует лифт и мусоропровод. В таких домах были двухкомнатные, трехкомнатные и однокомнатные квартиры. На площадке четыре двери. Начиная с 1963 года на протяжении четырех лет активно строились малометражки серии 1-335. Здесьуже больше на 4 см, а размер столовой зоны достигает 6,2 квадрата. Даже планировка 1-комнатной хрущевки этой серии предполагает наличие. На площадку выходят четыре двери, максимальный размер — трешки. Четырехкомнатных квартир в типовых домах не было.
Планировка 1 комнатной квартиры. Планировка малогабаритной однокомнатной квартиры
Планировка малогабаритной однокомнатной квартиры и ее обустройство – задача не из легких. Небольшая квартирка должна вместить в себя элементарную мебель, какие-то вещи и многое другое. Бывает необходимо на мизерной площади, в рамках одной комнаты, организовать различные зоны: для ребенка, для отдыха, для работы, для гардероба. Тут важен грамотный подход, который в таких условиях сродни искусству. В обустройстве такого жилья основной тон задает идея объединения, ведь все зоны связаны между собой, обеспечивая визуальный, объем помещения. Вообще, планировка маленькой однокомнатной квартиры, может иметь много возможных вариантов, рассмотрим некоторые из них:
Вариант №1

К примеру, если планировка 1 комнатной квартиры позволяет, то кухню можно объединить с гостиной, а спальную зону отделить декоративной перегородкой или ширмой и создать иллюзию двухкомнатного помещения. В образовавшемся пространстве, так называемой, спальни можно поместить полноценную двуспальную кровать и платяной шкаф. В гостиной хорошо бы поставить диван, который может вполне выполнять функцию просторного ложа, если его разложить. Прихожую неплохо бы оборудовать вместительным шкафом-купе, в который можно убрать всю верхнюю одежду, зонты, головные уборы, обувь. Гостиная и кухня объединяются в столовую группу. Если это планировка 1 комнатной хрущевки или квартиры, где туалет, да ванная комната – это одно помещение, то тут свои плюсы. Совмещенный санузел позволяет установить вместительный шкаф для банных принадлежностей.
Вариант №2

Если есть маленький ребенок, а может и не один, то любую планировку, даже самой маленькой 1 комнатной квартиры можно усовершенствовать, разделив на две основные зоны: взрослую и детскую. К примеру, при наличии лоджии можно обустроить балкон под зону творчества. А там, где в первом варианте была спальная зона, можно оборудовать под детскую, взрослая зона может быть там, где в первом варианте была гостиная. Достаточно к раскладному дивану добавить зону ТВ, письменный стол, а еще платяной шкаф. Кухня в этом варианте представлена отдельной самодостаточной зоной, чтобы кулинарные запахи поменьше мешали другим делам. Взрослую зону от детской неплохо было бы отделить установкой двухстороннего стеллажа, где можно хранить книги, письменные или канцелярские принадлежности и какие-нибудь важные мелочи. Любая планировка малогабаритной однокомнатной квартиры может стать площадкой для развития ваших дизайнерских способностей.
Вариант №3

Для живущих в гордом одиночестве интеллигентов, всякая планировка малогабаритной однокомнатной квартиры придется по вкусу, если ее правильно зонировать. Неплохим решением будет разделение помещения на рабочую зону – кабинет и зону отдыха или гостиную, совмещенную с кухней. Двухсторонние стеллажи помогут в зонировании помещения.
Дизайн однокомнатной хрущевки без перепланировки. Примеры удачных перепланировок хрущевок
В этом разделе мы приведем несколько примеров потрясающих и функциональных планировок однокомнатных хрущевок, площадью 30 кв.м., которые были реализованы в действительности. При планировании были учтены все требования и пожелания хозяев, а габариты предметов мебели, толщина перестенков и проходов, рассчитывалась вплоть до сантиметра. В противном случае просто не удалось бы занести мебель в комнату.
- Пример №1. При перепланировке этого жилища сначала были снесены все перестенки, а затем возведены новые. Нужной толщины и в нужных местах. Кухню все же объединили с гостиной, на границе установили барную стойку и стулья , так как столом пришлось пожертвовать. Это дало возможность уместить диван и маленькие тумбочки по бокам. Стоит заметить, что площадь кухни составляет всего 5 кв.метров. Спальня получилась довольно просторной и смогла уместить кровать и шкаф. Удалось сохранить и просторный коридор, где была организована ниша под шкаф-купе . Таким образом, мест хранения в квартире более чем достаточно. Площадь санузла составляет всего 3 кв.м. Поэтому стандартной ванне предпочли душевую кабину , а раковину установили над стиральной машинкой. Ну и чем вам не полноценная двушка?

- Пример №2. Эта планировка реализована на площади в 31 кв.метр в угловой квартире. В этом варианте кухня осталась изолированной от остальных помещений. Помимо этого была добавлена перегородка в гостиной, что позволило отделить спальную зону и расширен проем между коридором и гостиной. Дверная коробка была демонтирована, что позволило визуально расширить комнату. Благодаря тому, что квартира является угловой, и в гостиной и в спальне есть оконный проем, что делает их полноценными, отдельными помещениями. Площадь спальни – 7 кв.м., гостиной – 9 кв.м. При этом оба помещения включают по одному небольшому рабочему месту. Обратите внимание, что вся мебель мобильна и функциональна.
Рабочий стол оборудован колесиками, что позволяет перемещать его на центр гостиной, когда приходят гости. Вместительный шкаф представлен угловой моделью. А самым приятным является то, что в санузле удалось уместить полноценную прямоугольную ванну за счет того, что использовалась узкая сантехника и подвесной унитаз самого маленького размера, а стиральная машина была подвешена над унитазом;
- Пример №3. Площадь этой квартиры составляет 29 кв.метров. В данном случае каждый сантиметр пространства использовался по максимуму. Была демонтирована часть перегородок, оборудована ниша для размещения кровати и перенесен вход на кухню. Там, где раньше была дверь в кухню, теперь небольшое рабочее место. На кухне в 5 кв.м. присутствует большое количество встроенной техники. Уместить ее удалось благодаря тому, что были выбраны самые узкие встраиваемые модели, а газовая плита заменена двухкомфорочной варочной поверхностью . Чтобы была полноценная рабочая зона, столешницу продлили и напротив окна. Спальня и гостиная, по сути, составляют одно помещение. Но изоляция спального места происходит за счет выдвижной ширмы. На схеме видно, что в прихожей уместился большой угловой шкаф-купе. Дополнительные места хранения обеспечивает ниша в диване и большой короб под матрасом кровати с подъемным механизмом, а так же настенные полки ;

- Пример №4. Этот пример перепланировки квартиры площадью в 30 кв.м. интересен тем, что для изоляции спального места использовалась стеклянная перегородка.
Дополнительно она оснащена блэкаут-шторами, которые даже при дневном свете обеспечивают полное затемнение. В спальне под стеной размещен большой шкаф-купе со стеклянными фасадами. Этот прием дает возможность создать перспективу, что зрительно увеличивает пространство. Еще один шкаф поменьше расположен в прихожей. Гостиная совмещена с кухней, а на границе расположена обеденная группа. Подоконник в кухне был поднят на уровень со столешницей и является ее продолжением. Вход в санузел был перемещен, благодаря чему удалось компактно разместить все необходимое, и даже полноценную ванну. Стиральная машина в данном случае также подвешена с помощью специальных креплений над унитазом. Согласитесь, после таких действий уже трудно назвать квартиру хрущевкой. Такое жилье максимально адаптировано под потребности хозяев, функционально и уютно.
Хрущевка планировка 2-х комнатная. Преимущества и недостатки перепланировки
Особенности планировки мало комфортабельной двух комнатной квартиры в хрущевке довольно ощутимы, а их примеры собраны в небольшой подборке фото. Зачастую это такие негативные моменты, как дискомфорт от неудобного расположения комнат, ограниченность пространства ввиду малой площади комнат. Вот почему владельцы таких квартир стремятся выполнить перепланировку с помощью привлечения наемной бригады строителей. Чтобы сэкономить денежные средства, можно выполнить ремонт своими руками.
Ремонт хрущевки с перепланировкой имеет как преимущества, так и недостатки. Плюсами такого решения являются следующие моменты:
- комнаты становятся более просторными и уютными, а их интерьер — более жилым;
- многие стены в таких домах не являются несущими, поэтому при некотором усердии справиться с их демонтажем можно довольно быстро. Несущие стены не задействуют, а новый дизайн порадует вас сполна;
- новая планировка открывает для владельцев квартир неограниченные возможности. Дизайн помещений может быть разным, что позволяет проявить фантазию, сделать уникальную отделку поверхностей, украсив тем самым интерьер.
Процесс перепланировки имеет такие недостатки:
- сложность ремонта и оформления дизайна, ведь он подразумевает демонтаж и возведение стен и простенков в квартире;
- забирает пространство одной из смежных комнат за счет разделения;
- требует дополнительных капиталовложений на демонтаж стены и дизайн комнат. Однако при выполнении работы своими руками, значение этого недостатка можно несколько приуменьшить;
- более длительный ремонт, повышенная степень загрязнения строительным мусором и пылью после проведения работ.




Дизайн интерьера 1 комнатной квартиры хрущевки. Особенности интерьера
Чтобы интерьер однокомнатной хрущевки был уютным, стоит обратить внимание на визуальное увеличение и использование любого пространства в помещении с помощью цвета. Для этого обычно оформляют интерьер в светлых оттенках.

Стены должны быть на несколько оттенков темнее, чем потолок. Идеальным будет потолок из глянца и вообще использование глянцевых поверхностей. Отражения помогают визуально избавить человека от границ каждой вещи, создав единую цельную картинку в голове.
Подвесные потолки лучше не использовать, так как они будут визуально делать комнату меньше.
Совет! На стены лучше клеить обои с мелким рисунком, также отлично будут смотреться однотонные светлые обои.

В интерьер идеально впишется мебель, состоящая из модулей . Модульные мебельные системы имеют особое преимущество: в одном стиле можно подобрать все элементы, необходимые именно вам и отвечающие основным потребностям домочадцев.
Если же у вас есть возможности, можно заказать шкафы-купе. Они размещаются по всей длине и высоте стен, причем в них можно предусмотреть открытые полки и антресоли. Комплектация будет полностью зависеть от ваших пожеланий.
При планировке шкафа-купе предварительно лучше определиться, куда и какую вещь планируется положить, чтобы все разместить в ваших нишах и полках. При выборе цветовой гаммы лучше отдать предпочтение светлым оттенкам .

Светлые оттенки визуально дают возможность осветлить комнату, наполнить ее светом и сделать ее более просторной.
Безусловно, желание получить из маленькой забитой мебелью площади как можно больше простора для жилого пространства с минимальным количеством предметов, необходимых для жизни, привело к созданию мебели, совмещающей в себе сразу несколько функций. Это мебель может складываться и раскладываться, и называется она трансформируемой .

К такой мебели относят: диван, трансформирующийся в кровать для сна; кресла, в которых есть место для хранения вещей; кровать, прячущаяся от глаз в дневное время, ну и получившие широкое распространение шкафы-купе, имеющие множество приспособлений и полочек, на которых может поместиться просто невероятное количество нужных вещей и мелочей.
Совет! Чтобы в маленькой комнате разместилось много мебели, используйте многофункциональные предметы.
Лучшая планировка 1 комнатной квартиры. Как зонировать пространство совмещенной с гостиной кухни?
В лучшей планировке однокомнатной квартиры объединить кухню с гостиной не так сложно. Самое главное, чтобы они гармонично дополняли другу друга, а стиль оформления был одинаковым.
- Барная стойка
- Разные уровни пола
- Подвесные потолки
- Комбинированный пол
- Мебель
- Ниши, арки, колонны
- Перегородки
В некоторых случаях с общим жилым пространством объединяют даже коридор , при этом входная зона выделяется колонной, стеллажом или стойкой с комнатными растениями .

Также можно объединить между собой смежные помещения раздельного санузла, а именно, туалет и ванную комнату . Результатом такого объединения в планировке однокомнатной квартиры является просторный совмещенный санузел . Правда, он не слишком удобен для использования в семье, состоящей из более чем двух человек.

Еще один вариант увеличения жилплощади – расширение помещения комнаты путем присоединения к нему пространства балкона . Правда, перепланировка такого рода разрешается далеко не всегда. Да и вообще, к любой перепланировке, связанной со сносом стен, необходимо подходить с максимальной осторожностью, консультируясь с квалифицированными специалистами, не забывая получать письменные разрешения от соответствующих органов.

Впрочем, балкон можно использовать как отдельную жилую площадь, например, устроив в нем рабочий кабинет – для этого достаточно лишь провести его тщательное утепление. Бывает, что любая перепланировка помещений в однокомнатной квартире невозможна, например, когда все стены в жилище являются несущими. В таком случае придется, как следует подумать об оптимизации функциональности помещения. В просторной гостиной можно разместить мини-кухню с электрической плитой, превратив бывшую кухню в полноценную спальню. Правда, такой вариант подходит для бездетной пары, потому что для семьи с детьми он будет создавать определенные неудобства. Также можно рассматривать возможность разделения одной большой комнаты на маленькие, для чего используется легкая перегородка.

Перепланировка однокомнатной хрущевки в двухкомнатную. Что такое перепланировка и как ее оформить
Перепланировкой считается любое изменение конфигурации перегородок в квартире. В несущих стенах что-либо менять без предварительной оценки ущерба и определения мер по его устранению запрещено категорически. В случае с ненагруженными стенами или перегородками все не так категорично, хотя предлагается сначала составить проект, потом его согласовать и только после этого приступать к реализации задумок.
Стоит знать, что есть несколько недопустимых переделок, которые вам не согласуют никогда:
- Расширение площади «мокрых помещений» — кухни, ванной и туалета — разрешено только за счет технических помещений. Над жилыми их располагать нельзя. То есть можно забрать часть коридора, встроенного шкафа, прихожей. В связи с этим могут возникнуть спорные моменты насчет некоторых типов перепланировок. В частности на фото ниже указана такая спорная зона.

Спорная зона при расширении площади санузла
Выделенный красным фрагмент фактически находится в коридоре, но по документами БТИ это жилая площадь. И если в таком виде подать перепланировку, ее не примут. Чтобы обойти эту преграду сначаластавят перегородку, отгораживающую коридор, оформляют эту перепланировку, потом подают проект с увеличенной площадью ванной.
- При расширении площади кухни это нельзя делать:
- за счет площади санузла;
- если расширение происходит за счет площади жилой комнаты, нельзя на ней устанавливать сантехническое и кухонное оборудование (мойка и плита);
- если кухня оборудована газовой плитой, объединение ее с жилой комнатой запрещается.

Рабочий стол оборудован колесиками, что позволяет перемещать его на центр гостиной, когда приходят гости. Вместительный шкаф представлен угловой моделью. А самым приятным является то, что в санузле удалось уместить полноценную прямоугольную ванну за счет того, что использовалась узкая сантехника и подвесной унитаз самого маленького размера, а стиральная машина была подвешена над унитазом;

Дополнительно она оснащена блэкаут-шторами, которые даже при дневном свете обеспечивают полное затемнение. В спальне под стеной размещен большой шкаф-купе со стеклянными фасадами. Этот прием дает возможность создать перспективу, что зрительно увеличивает пространство. Еще один шкаф поменьше расположен в прихожей. Гостиная совмещена с кухней, а на границе расположена обеденная группа. Подоконник в кухне был поднят на уровень со столешницей и является ее продолжением. Вход в санузел был перемещен, благодаря чему удалось компактно разместить все необходимое, и даже полноценную ванну. Стиральная машина в данном случае также подвешена с помощью специальных креплений над унитазом. Согласитесь, после таких действий уже трудно назвать квартиру хрущевкой. Такое жилье максимально адаптировано под потребности хозяев, функционально и уютно.
