Варианты дизайна трехкомнатной квартиры. Особенности разработки дизайн-проекта трехкомнатной квартиры в студии Village design
- Варианты дизайна трехкомнатной квартиры. Особенности разработки дизайн-проекта трехкомнатной квартиры в студии Village design
- Дизайн трехкомнатной квартиры в современном стиле. Особенности создания дизайн-проекта
- Дизайн 3-комнатной квартиры в панельном доме. Что входит в дизайн-проект интерьера 3-комнатной квартиры?
- Дизайн 3-комнатной квартиры 2020. Современный дизайн квартир 2020 года
- Дизайн трехкомнатной квартиры 65 кв м. Дизайн трехкомнатной квартиры — 100 фото идей стильного интерьера
Варианты дизайна трехкомнатной квартиры. Особенности разработки дизайн-проекта трехкомнатной квартиры в студии Village design
Чем больше комнат в квартире, тем проще выделить место для всего необходимого, не сдерживая фантазию в процессе оформления. Однако эта же особенность способна стать причиной серьезных ошибок:
- неудобной планировки. Создавая дизайн-проект трехкомнатной квартиры, необходимо помнить, что в эту категорию входят как компактные варианты от 45 до 70 кв. м, так и апартаменты площадью от 150 кв. м. Безусловно, поиск удачного планировочного решения в каждом случае должен быть индивидуальным, что обязательно учитывают наши специалисты. Независимо от исходных данных, они создадут дизайн интерьера квартиры, где на 50, 70 или 100 кв. м каждый найдет комфортный уголок для работы, отдыха, встреч с друзьями и других приятных моментов;
- негармоничного оформления. Когда помещений много, а у каждого члена семьи свои эстетические предпочтения, дизайн-проект 3-комнатной квартиры может легко превратиться в нагромождение несвязанных друг с другом идей. Тонкий вкус и чувство стиля помогают нашим специалистам создавать единый образ интерьера, выдержанный в любом из современных и классических направлений или их ярком смешении, где все детали складываются в безупречно красивую картину.
| Площадь | Проект «Эконом» | Проект «Стандарт» | Проект «Бизнес» |
| до 100 квадратных метров | 900 руб. | 1500 руб. | 2100 руб. |
| свыше 100 квадратных метров | 800 руб. | 1350 руб. | 1900 руб. |
| свыше 200 квадратных метров | 650 руб. | 1150 руб. | 1750 руб. |
| свыше 400 квадратных метров | 500 руб. | 1000 руб. | 1500 руб. |
Дизайн трехкомнатной квартиры в современном стиле. Особенности создания дизайн-проекта
Сначала сделаем зонирование жилой площади. Для этого нужно определить назначения каждой комнаты. В зависимости от планируемой функциональности можно выделить кабинет, комнату сна – спальню, гостиную, кухню, прихожую, и ванную комнату. В том случае, если в доме проживает семья с детьми, для них необходимо создать игровую зону. Гостиную можно наделить несколькими функциональными назначениями, например, кабинет и комната отдыха для всей семьи. Используя приемы оформления для каждой комнаты можно создать наиболее удачную обстановку для конкретной деятельности. Самый распространенный вариант – это зонирование при помощи мебели.
Отделка помещения должна выполняться с применением всего 3-х главных цветов, немного отличающихся друг от друга. Все 3 цвета должны быть либо только холодной гаммы, либо теплой. Оптимальный подбор цвета означает создание уместных акцентов, с уменьшением излишней контрастности.
Правильным решением будет поставить модульный зеркальный шкаф в прихожей
Маленькие светильники украсят декор коридора
Дизайн прихожей должен создавать ощущения приветливости, и соответствовать стилю остальных комнат. Для визуального увеличения пространства прихожей, стоит выбрать обои светлых оттенков. Обязательные элементы любой прихожей это – полка для обуви, вешалка для одежды, и, конечно же, большое зеркало. Если размеры прихожей позволяют, то можно расположить еще и вместительный шкаф, и тумбу для полезных мелочей. А на стенах стоит разместить небольшие картины.
Кухня должна делиться на 3 участка: место для продуктов, рабочая поверхность и обеденную область. Дизайнеры интерьеров рекомендуют использовать для стен кухни основной цвет, а дополнительные оттенки, сочетающиеся между собой или создающие контраст добавить в качестве предметов декора.
Дизайн 3-комнатной квартиры в панельном доме. Что входит в дизайн-проект интерьера 3-комнатной квартиры?
Дизайн-проект 3-комнатной квартиры имеет следующий состав.
1. Пакет технической документации

На чертеже: Обмерный план трехкомнатной квартиры в Береговом проезде

На чертеже: Экспликация помещений трехкомнатной квартиры в Береговом проезде

На чертеже: План демонтажных работ в трехкомнатной квартире в Береговом проезде

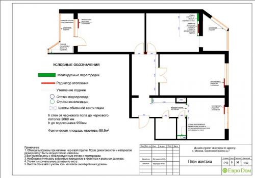
На чертеже: План монтажных работ в трехкомнатной квартире в Береговом проезде

На чертеже: План расстановки мебели в трехкомнатной квартире в Береговом проезде

На чертеже: План потолка в трехкомнатной квартире в Береговом проезде

На чертеже: План пола в трехкомнатной квартире в Береговом проезде

На чертеже: План размещения осветительных приборов в трехкомнатной квартире в Береговом проезде

На чертеже: План розеток в трехкомнатной квартире в Береговом проезде

На чертеже: Схема сантехники и отопления в трехкомнатной квартире в Береговом проезде

На чертеже: Спецификация дверных и оконных проемов в трехкомнатной квартире в Береговом проезде

На чертеже: Разверстка стен в спальне трехкомнатной квартиры в Береговом проезде
В пакет технической документации входят чертежи, планы и схемы, которые потребуются для проведения ремонта. Они помогут строителям сформировать функциональное жилое пространство и правильно выполнить отделку. В списке обязательных технических документов:
- обмерный план и экспликация помещением с выделением функциональных зон;
- план расстановки мебели;
- планы монтажа и демонтажа (они необходимы при проведении перепланировки, сносе или возведении дополнительных перегородок или декоративных конструкций);
- план потолков:
- план раскладки напольных покрытий;
- план размещения светильников и привязки розеток и выключателей;
- спецификация дверных и оконных проемов;
- план размещения сантехнического оборудования;
- план системы отопления, вентиляции и кондиционирования;
- разверстка стен.
Кроме того, в проект могут быть включены чертежи сложных конструктивных элементов и дополнительные инженерные схемы.
2. Компьютерную 3D-визуализацию будущего интерьера в выбранном заказчиком стиле

На фото: 3D-визуализация кухни в классическом стиле в трехкомнатной квартире в Береговом проезде
Выполненная с использованием специальной компьютерной программы 3D-визуализация – это демонстрация обновленного интерьера в различных ракурсах. Как правило, дизайнеры делают несколько картинок каждого помещения в выбранном заказчиком стиле, что позволяет оценить и планировку, и общий вид каждой комнаты, и отделку.


Дизайн 3-комнатной квартиры 2020. Современный дизайн квартир 2020 года
Когда думаете о современном интерьере, то часто напрашивается решение о дизайнерской мебели, предметах быта, которые предлагают магазины. Однако модные интерьеры, в которых современность принимает разную форму может ломать стереотипы или частично опираться на них, отклоняясь от принятых правил, удивляя простыми решениями или вполне абстрактным видением восприятия. Дизайн квартир 2020 года предназначен для того, чтобы пробудить воображение человека, вызвать эмоции, сломать границы или изменить восприятие на важные и менее значимые вещи. 
При оформлении интерьеров квартир 2020 года не забывайте делать это в первую очередь в соответствии с тем, что лично нравится. Если организуете интерьер в современном стиле с яркими цветами и узорами, а на самом деле вам нравится классика, то не будете чувствовать себя хорошо в таком окружении. И это то, что вы должны иметь в виду при проектировании интерьеров квартир.
Вы должны решить, в каком направлении идти – либо выбрать свой собственный дизайн, либо интерьер, согласно диктованной моде. Не стоит теряться в окружающем вас мире и брать горстями то, что он предлагает. Иногда лучше использовать свои собственные идеи в дизайне интерьера и реализовать их – самостоятельно или с помощью архитекторов и декораторов, которые либо утвердят вас в своих видениях, или помогут придать им лучшую форму, учитывая все требования.
Помните, что интерьер должен быть для нас, а не мы — для интерьера.


Дизайн трехкомнатной квартиры 65 кв м. Дизайн трехкомнатной квартиры — 100 фото идей стильного интерьера
Для трехкомнатной квартиры огромный выбор дизайнов. Малогабаритные помещения не имеют возможности.

Большая площадь позволяет применить любую смелую идею. Современный дизайн трехкомнатной квартиры лучше доверить профессиональным дизайнерам.
Учитывая состав семьи, рассматривается дизайн-проект, зонирование комнат. Уделяется внимание не только стилистическому решению, но и практичности.

Нужно в самом начале обратить внимание на двери, чтобы удобно открывались и не были препятствием для домочадцев. Можно выбрать раздвижные двери. Количество и удобное расположение розеток и выключателей – еще одна важная деталь, о которой забывают.

Чаще начинается дизайн с увеличения площади – перепланировки, но иногда достаточно перегородки. С Запада пришла мода на открытое пространство, это применяется в разных проектах. Не объединяют лишь спальни и, конечно, ванные.

Правила перепланировки и демонтажа
Можно расширить площадь за счет лоджий, но придется хорошо ее утеплить. Отличной идеей будет теплый пол, можно вынести обогреватель на лоджию.

Недопустимо за счет кухни или смежных комнат увеличивать площадь санузлов. Надо учесть, что в несущих конструкциях категорически запрещается устанавливать проемы больше 1,2 м и не ближе 1,5 м к внешним краям стен. Один проем на 1 несущей стене.

На балконах части под окнами и оконный стеклопакет тоже нельзя демонтировать. Запрещено делать дверь в санузел из кухни.
