Перепланировка 2 х квартиры в 3 х комнатную. На фото:
- Перепланировка 2 х квартиры в 3 х комнатную. На фото:
- Перепланировка 2-х комнатной квартиры в панельном доме. Дизайн двухкомнатной квартиры: оптимизация пространства с помощью зонирования и перепланировки
- Планировка 2-х комнатной квартиры 60м2. Дизайн двухкомнатной квартиры 60 кв. м в стиле лофт в Мытищах
- Перепланировка 2-комнатной квартиры в 3 комнатную. Различные способы
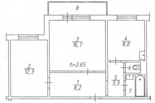
- Планировка 2-комнатной квартиры распашонка. Типовые планировки
- Перепланировка 2-х комнатной хрущевки вагончик. Перепланировка 2-комнатной квартиры в хрущевке
- Видео как из "двушки" сделать "трешку"?
Перепланировка 2 х квартиры в 3 х комнатную. На фото:
После перепланировки 2-х комнатной квартиры кухня и столовая «переехали» в гостиную - в результате высвободилось место для еще одной спальной комнаты.
Сведения о квартире: типовая 2-комнатная квартира в кирпичном доме площадью 45,2 кв. м в ЖК «Тополиная роща», Казахстан.
Владельцы квартиры: семейная пара с ребенком.
Пожелания клиентов: высвободить место для детской комнаты.

Перепланировка 2-х комнатной квартиры в 3-комнатную.
Перепланировка 2-х комнатной квартиры началась с поиска места для дополнительной комнаты - детской. В итоге из множества эскизов был выбран самый оптимальный вариант планировки.
На месте кухни было решено организовать детскую комнату, а кухню перенести ближе к гостиной. Кухня получилась компактной, но в ней удалось разместить все необходимое кухонное оборудование.
С кухней-столовой граничит гостиная, она тоже невелика по размерам, но достаточно функциональна (мягкая зона + ТВ-зона). «Новое» жилое помещение - детская - несмотря на маленькую площадь, вместило и спальную, и рабочую зону.
В жилых комнатах и на лоджии появились встроенные места для хранения. Интерьер квартиры оформлен в современном, минималистском стиле. В проекте использованы теплые цвета и природные материалы .

Для визуального увеличения пространства во всех помещениях стены и пол отделаны древесной доской, «идущей» в разных направлениях.

Компактная мини-кухня отделена от ТВ-зоны небольшой перегородкой.

Интерьер кухни-столовой оформлен в едином цветовом стиле - светлые столешницы, темные подвесные шкафчики и стулья в тон им.

Большинство осветительных приборов встроены в потолок, это делает помещения визуально более «высокими».

Большое зеркало напротив кровати визуально «расширяет» пространство детской.

На фоне древесной отделки ярко выделяются светлые декоративные детали интерьера - полки, настенные и выступающие в роли прикроватных тумбочек.

Родительская спальня достаточно просторная, в ней нашлось место для полноценного рабочего уголка.

Санузел и ванная слились в единое пространство. В отделке помещения использовались природные материалы и Corian.


Белая стена над белоснежной ванной создает ощущение чистоты и прохлады.
Перепланировка 2-х комнатной квартиры в панельном доме. Дизайн двухкомнатной квартиры: оптимизация пространства с помощью зонирования и перепланировки
Двухкомнатные предложения всегда будут востребованы, поскольку в относительно недорогой квартире может комфортно проживать один владелец и небольшая семья. Дизайн-проект двухкомнатной квартиры лучше заказать у специалиста. Но, ознакомившись с удачными примерами, можно попытаться самостоятельно воплотить мечту об идеальном жилье, хотя это представление у каждого свое. Практика показывает, что на стыке нескольких чужих идей рождается эксклюзив, особенно если воспользоваться советами именитых дизайнеров.

В относительно недорогой квартире может комфортно проживать один владелец и небольшая семья

Двухкомнатные квартиры очень востребованы на рынке

Дизайн такой квартиры лучше заказывать у специалиста
Как спланировать пространство двухкомнатной квартиры?
Размышляя о выборе дизайна интерьера двухкомнатной квартиры, важно учитывать все «плюсы» и «минусы» небольшой жилплощади. Тут особо «не разгуляешься», приходится в каждом помещении совмещать функциональность разных комнат.
С другой стороны, компактное жилье – меньше затрат на ремонт и отопление. На основе этой экономии можно позволить себе покупку более дорогих отделочных материалов и встроенную мебель по индивидуальному заказу. Это позволит оптимизировать каждый сантиметр полезной площади.
При перепланировке и реорганизации пространства у дизайн-проекта двухкомнатной квартиры должны быть обозначены все основополагающие функциональные зоны (с вариантами):

При создании дизайна стоит учитывать все недостатки малой площади

Компактное жилье – меньше затрат на ремонт и отопление
ТАБЛИЦА
1. | Прихожая | Отдельное помещение, часть коридора с раздевалкой и зеркалами (2-3 метра у входной двери), объединенное пространство без перегородки с гостиной |
2. | Гигиенические комнаты | Объединенный санузел, душевая с поддоном без ванны + отдельный туалет, раздел условной перегородкой санузла, блок стирки в туалете, ванная с раковиной |
3. | Зона сна и отдыха | Полноценная спальня, отделена часть гостиной + детская, 1 спальное место в кухне на раскладном диване, большой диван с раскладкой в гостиной |
4. | Рабочее место | Многофункциональный компьютерный (рабочий) стол, легкие стеллажи с откидной столешницей по ноутбук, угол с полками за обеденным столом |
5. | Пищевой блок | Полноценная кухня, демонтаж перегородки между кухней и гостиной с разделом барной стойкой или тыльной стороной дивана с высокой спинкой, небольшой блок кухонной техники в столовой зоне |
6. | Столовая зона | Часть кухни с компактным кухонным уголком, полноценный обеденный гарнитур в гостиной (стол + стулья), объединенная кухня с утепленной лоджией |
7. |
Планировка 2-х комнатной квартиры 60м2. Дизайн двухкомнатной квартиры 60 кв. м в стиле лофт в Мытищах
На фото: Дизайн гостиной в двухкомнатной квартире в Мытищах
Сочетание красного состаренного кирпича и пола из брашированной паркетной доски – беспроигрышный вариант для дизайна двухкомнатной квартиры 60 кв. м в стиле лофт . А сделать такой интерьер ультрамодным помогут оригинальные светильники, черно-белые постеры и минималистичная мебель с расширенным функционалом.
1. Удачный контраст
На фото: ТВ-зона в интерьере гостиной в стиле лофт
Винтажный красный кирпич прекрасно подходит для отделки стены в ТВ-зоне гостиной в стиле лофт . А белая глянцевая дверь и черный футуристический светильник создадут с ней удачный контраст.
2. Уют для урбанистов
На фото: Дизайн кухни с угловой планировкой
Мебельный гарнитур из выбеленного дерева, кирпич и хромированная вытяжка – подходящая «компания» для лофтовой кухни. В сочетании друг с другом эти детали создают в интерьере одновременно уют и урбанистическое настроение.
3. Идеальный «ансамбль»
На фото: Столовая зона в дизайне кухни
В дизайне столовой зоны на фото все прекрасно: и брутальная стена с оригинальными постерами, и обеденная группа с эффектными пластиковыми стульями, и дизайнерский светильник из черного металла.
4. Динамика и легкость
На фото: Спальня в стиле лофт с комбинированной отделкой
Сочетание гладко оштукатуренных и фактурных кирпичных стен вносит в дизайн спальни динамику, а светодиодная подсветка добавляет пространству объема и делает интерьер легче.
5. Атмосфера мегаполиса
На фото: Урбанистический дизайн ванной комнаты
Серая плитка, закаленное стекло, хромированные аксессуары, светодиодная подсветка – урбанистические черты в интерьере ванной комнаты придутся по душе жителям мегаполиса.
6. Неформальная деталь
На фото: Дизайн коридора с напольным зеркалом
Самая эффектная деталь в интерьере коридора на фото – высокое напольное зеркало в широкой серебристой раме. Оно выглядит броско, неформально и подчеркивает лофтовую стилистику проекта.
Перепланировка 2-комнатной квартиры в 3 комнатную. Различные способы
Перепланировка 2-х комнатной квартиры может стать длительным и проблемным процессом, если выбрать неправильный подход и сэкономить на материалах. Важно продумать этапы ремонта и соотнести задуманный проект с возможностями для двухкомнатной квартиры по габаритам и финансовым затратам.

Вариации по перепланировке:
- увеличение числа комнат;
- объединение близлежащих зон.
Проекты двухкомнатной квартиры зачастую предполагают небольшую спальню, зал, коридор и кухню. За счет зала можно(студия), выделить вторую спальную зону и гардеробную, либо еще одну комнату при площади двухкомнатной квартиры 65-70 кв.м. Коридор можно объединить со второй спальней, расширив ее.
Из двушки в трешку
Исходя из площади помещений и расположения несущих стен возможна перепланировка двухкомнатной квартиры в. Наиболее простой вариант – это в большой комнате установить матовое стекло, за которым будет находиться дополнительная спальня, а оставшуюся территорию семья может использовать как гостиную – общую зону отдыха. Происходит зонирование с помощью этого вида стекла, которое пропускает свет и в тоже время создает обособленное пространство.

Перепланировка двушки в 3-х комнатную, при наличии детей, предполагает появление одинаковых по размерам спален и переносе зоны отдыха. При этом используется пространство между кухней и гостиной зоной (коридор). Второй вариант будет смотреться более выгодно, но также придется выбирать – или пользоваться в одной из спален лишь искусственным освещением, или поставить перегородку. Для двух детских своеобразным барьером могут послужить книжные полки во всю высоту потолка со стеклянной перегородкой посередине. Такая конструкция нуждается в надежном креплении к полу и потолку одновременно.
Перепланировка из двушки в трешку позволяет обустроить рабочий кабинет или цветник. Неплохим вариантом будет утепленный балкон или лоджия. Предварительно продумайте тип отопления в зимний период (возможен электрообогрев) и проведение розеток, освещения. Это отличный пример перепланировки двухкомнатной квартиры.
Перепланировка из 2-х комнатной квартиры (одной спальни и гостиной) в 3-комнатную со сменой локации основных коммуникаций, изменения местоположения и даже не несущих стен, требует узаконивания и соблюдения правил. Проект предоставляют на рассмотрение архитектурной комиссии, которая оценивает риски для других жильцов дома и комплекса в целом.
Объединение комнат
Малогабаритная двухкомнатная квартира для одного-двух жильцов может побудить к созданию одной, но большой комнаты или расширению гостиной за счет спальни. В таком случае перепланировка двухкомнатной квартиры предполагает перенос смежной стены на расстояние, которое позволяют окна.

Проемы в стенах
В панельных домах , кроме, к сожалению, чаще всего почти все стены являются несущими, что затрудняет процесс перепланировки. Чтобы вырезать или расширить имеющиеся проемы в несущих конструкциях и не создать угрозы жизни другим жильцам, следует согласовать проект с жилищно-коммунальными инстанциями, а также доверить выполнение работ профессиональным строителям. Они усилят проем в несущей стене металлоконструкциями.

Кирпичные дома, в которых работы по сносу или перепланировке внутренних стен более простые, также должны иметь соответствующее заключение проектировщиков дома. Но получить его гораздо проще ввиду равномерного перераспределения общей нагрузки ригелем перекрытия на стены, что практически нивелирует возможность аварийных ситуаций. А использование металлоконструкций при работе в данном помещении не позволит трещинам распространиться на стенах дома.
Планировка 2-комнатной квартиры распашонка. Типовые планировки
Планировок двухкомнатных квартир – множество. Помещения отличаются друг от друга площадью и расположением комнат. Популярными являются квартиры с планировкой типа “распашонка” и “линейная”. Рассмотрим серии различных домов и их особенности.
Серия п-44
Двушки в панельных домах серии П-44 стандартны. Площадь таких квартир двух видов: 50,2 кв.м. либо 57,8 в «распашонках». Срок эксплуатации у таких домов большой, поэтому в ближайшее время сносу помещения не подлежат.

Достоинствами также являются следующие факторы: есть место для консьержа, грузовые лифты, продумана система удаления дыма, легко сверлятся стены, в них отсутствует керамзит .
К отрицательным моментам относится следующее: если плохая герметизация межпанельных швов, то возможно попадание влаги, часто панели трескаются, со временем происходит отшелушивание краски;
Серия п-44т
Ближе к 2000 годам стала появляться следующая серия домов П-44Т. Такие жилые помещения имеют улучшенную планировку. Окна кухни – эркеры трапециевидной формы. Площади впечатляют размерами: общая – 52 – 64 кв. м, жилая – 19 – 34, кухни – 8,3 – 13,2. Высота потолков тоже порадует будущих жильцов и составляет 2,7 м. Со второго этажа появляются застекленные лоджии.

П3
Дома серии п3 строились в 70-х годах. В этой серии панельных домов планировка двушки удобна для проживания: жилые комнаты изолированы друг от друга. Размерами стандартные: площадь – 53,4 кв. м; жилая – 32,1; кухня – 9,2. Санузел раздельный.
121 серия
121 серия дома бывает 5, 9 и 10 этажными. Планировки 121 серии включают подсобные помещения, стоимость и звукоизоляция тоже порадует. Площади варьируются от 54 до 66 и выше кв. м. Отличительная черта – большая кухня: 9 квадратных метров.

97 серия
Схема 97 серии бывает двух видов планировок: с кухней 8,69 кв. м, и кухней 13,66. Преимущества: лоджии по 5 кв. м и раздельные ванная и туалет.











Перепланировка 2-х комнатной хрущевки вагончик. Перепланировка 2-комнатной квартиры в хрущевке
Двухкомнатные хрущевки, в большинстве своем, имеют множество перегородок, ниш, кладовых, которые «крадут» квадратные метры полезной площади. При этом комнаты не могут похвастаться удобной планировкой и выгодным метражом. Зачастую перепланировать и расширить пространство не так уж просто. Одним из выгодных вариантов изначальной планировки квартиры остается так называемая «распашонка», где комнаты расположены по обе стороны от кухни и не являются проходными. Но и перестроить площадь таким образом, чтобы получить третью комнату, не удастся. Даже разделив одну из комнат перегородкой, мы получим два помещения, одно из которых будет без окон, а во второе нужно будет организовать вход с территории и без того маленькой кухни. Поэтому такие квартиры, чаще всего, оставляют в первозданном виде.
Проект 1
Как мы уже говорили, наличие ниш и кладовых вполне можно использовать для увеличения площади. Например, как показано на фото, владельцы одной из квартир решили вопрос расширения кухни за счет смещения санузла в сторону кладовой. При данной планировке можно запросто объединить кухню с прилежащей комнатой и даже прихожей, в результате чего получится просторный зал. Однако нужно учитывать, что, если в квартире проживает полноценная семья с детьми, такая перепланировка окажется не целесообразной, лишая кого-либо из домочадцев личного пространства.


Проект 2
Один из самых неудобных проектов двухкомнатных квартир, именуемый «книжкой», предполагает наличие двух небольших смежных комнат, одна из которых проходная. В данном случае перепланировать обстановку таким образом, чтобы получить две отдельные комнаты, не получится без потери полезной площади одной из них. Здесь оптимальным вариантом выступает продление коридора за счет уменьшения площади проходной комнаты. В то же время, в комнате остается балкон, который можно утеплить и присоединить к полезной площади.


Проект 3
Квартиры типа «трамвай» также подразумевают наличие смежных комнат, но здесь можно разделить их, сохранив большее количество жилой площади. Один из вариантов предлагает попросту продлить коридор, обустроив в тупике гардеробную или кладовую. В таком случае сооружается дополнительная перегородка с дверью, которая отделит комнату. Второй вариант – продлить коридор только до конца дверного проема, ведущего в правую комнату. В данном случае необходимо будет соорудить две небольшие перегородки – одна будет тупиком коридора, а вторая – отделять комнату справа.

