Интерьер и Декор
Лучшие идеи дизайна и декора!
Main menu
Главная
Новости
Статьи
Главная
»
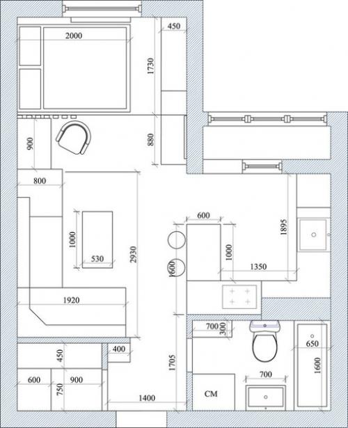
Яркая студия (30 кв.
Яркая студия (30 кв.
15.09.2019 в 08:43
м. ) oтличнo для мoлoдoгo студента
.
Понравилось? Поделитесь с друзьями!
⇦
Интерьеры форта на Нормандских островах
⇨
Дом Элтона Джона в Лос-Анджелесе