Интерьер и Декор

Лучшие идеи дизайна и декора!

Дом - мечта с мансардой.

14.07.2021 в 08:43

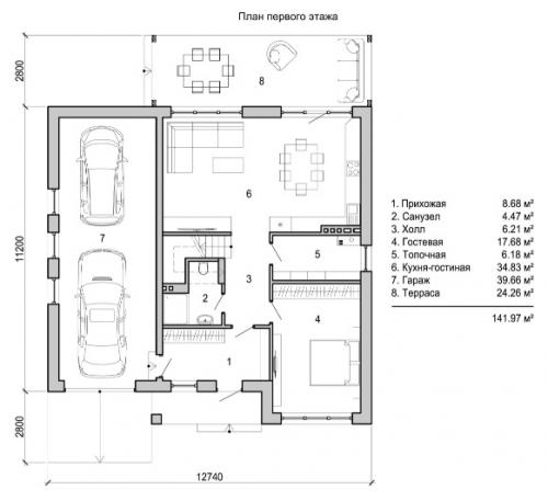
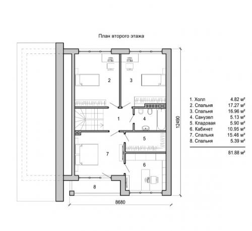
6 комнат, 2 санузла и гараж - отличный вариант для большой семьи. Такой предлагают построить за 5 млн
Дом - мечта с мансардой..

Дом - мечта с мансардой. 01
Дом - мечта с мансардой. 02