Дом 4 н. Дома из бруса 4х6, строительство под ключ в Санкт-Петербурге и Москве
Дом 4 н. Дома из бруса 4х6, строительство под ключ в Санкт-Петербурге и Москве
Дом из бруса 4х6-доступное жилье по умеренной цене
Планируете построить новый дом? Не представляете даже с чего начать? Мы поможем найти ответ на любой строительный вопрос.
Выгодные стороны приобретения брусового дома:
- Срок службы максимален.
 - Не требует ремонта, доработок, отделки.
 - Возможность оптимизации планировки по желанию клиента, индивидуальные планировки под каждого клиента.
 
Лучшие цены на строительство брусовых домов
Выгодное предложение для наших клиентов: скидки на дом из бруса 6х4 метров. Такое строение можно использовать как дачное жилище, загородный домик или место обитания маленькой семьи; в приоритете - комфорт, уют, близость к природе. 
Преимущества такой постройки: экологичность - что очень актуально для жителей бетонных многоэтажек. Брусовой дом станет Вашей находкой, в которой можно будет отдохнуть, расслабится, набраться сил и энергии. В деревянном доме естественно поддерживается нужная температура; в жару он не нагревается, сохраняя прохладу, что очень удобно; в холодное время года, наоборот, сохраняет тепло.
Особенности возведения домов из бруса 6х4
При строительстве дома из бруса мы использует только прочную, долговечную древесину; точнейшая обработка бруса делает его очень красивым внешне. Используются новейшие технологии, в сочетании с проверенными временем методиками дающие отличный результат. Остальные дополнительные материалы также подбираются максимально внимательно; работаем только с проверенными производителями.
Почему стоит выбрать дом из профилированного бруса 4х6?
Выбирая нас, Вы получаете прочное надежное жилище по оптимальной цене. Мы учитываем все коррективы, пожелания клиента, идем на встречу любым задумкам: со своей стороны предлагаем различные варианты, отобранные из тысячи лучших проектов. Варианты многих реализованных проектов легко найти на нашем сайте в фотогалерее , оставить отзывы и комментарии; также на сайте Вы можете оставить заявку на сотрудничество.
Дом из бруса 4х6 - наше специальное предложения в разгар дачного и загородного сезона, когда хочется проводить время на свежем воздухе, в экологическом доме. Готовый дом за небольшие деньги. Сделайте заказ прямо сейчас - и Вы не пожалеете ни на секунду!
Планировка двухэтажного дома 6 н. Проектирование и специфика технологий
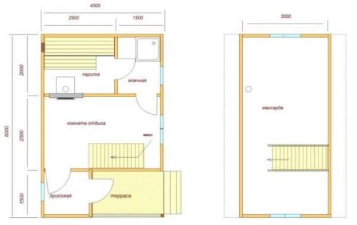
Дом 6х4 стал неизменным атрибутом дач советского периода. В то время многие дачники, получив вожделенные 6 соток, строили такие небольшие строения. Одни предпочитали проект одноэтажного здания с незатейливой планировкой: комната отдыха, небольшая кухня и санузел. Другие, чтобы увеличить полезную площадь, добавляли к небольшому домику мансардный этаж. Планировка дома 4х6 позволяла на первом этаже оборудовать просторную гостиную-кухню, тамбур-коридор, террасу, ограничившись четырьмя квадратами.

Второй мансардный этаж состоял из большой спальни почти в 15 квадратных метров, которую при необходимости еще разделяли перегородкой на две комнаты.
Но большинство хозяев мечталив стиле шале с лаконичной планировкой. Такое здание отличает двухскатная крыша с минимальным уклоном, широкими выступами, которые защищают коттедж от погодных передряг, служат навесом для просторных балконов и террас. В качестве основных стройматериалов выбирается натуральный камень или дерево.
Чертеж планировки пастушьего домика (так переводится шале) обычный. Второй этаж отдавали под личные апартаменты, первый включал в себя гостиную, кухню и туалет. Иногда планом предусматривалась пристройка гаража. Перед коттеджем всегда организовывали зону отдыха: закладывали детскую площадку с песочницей, качелями, устанавливали мангал, прокладывали каменные тропинки.
С тех пор прошло много времени, но привычка строить компактные дачные дома с простой планировкой осталась. Проектирование домов 4х6 предназначено для строительства дачных коттеджей сезонного проживания, гостевых домиков или туристических приютов. Кроме того, планировка 4х6 может быть переоборудована в баню.
Дачный домик 4 на 5 по проекту позволяет получить не только дачное жилье, но и разбить овощные грядки, установить небольшой парник или теплицу, построить баню.
Специфика технологии строительства домов 4х6 заключается в планировке:
- Все комнаты дневной зоны должны быть объединены в одно помещение;
 - Ребенка желательно обеспечить личной спальней;
 - Для подсобного помещения стоит выделить несколько квадратных метров на первом этаже;
 - Санузлы необходимо организовать на каждом уровне.
 

Планировка одноэтажного фахверка
Строительство компактного домика 4х6 в стиле фахверк подойдет для небольшого участка. Это строение напоминает немецкий одноэтажный опрятный коттедж. Строится дом из бруса 4 на 6.
Планировка содержит:
- Небольшую прихожую;
 - Санузел;
 - Кухню;
 - Комнату отдыха.
 
Дом 4х6 рассчитывается на проживание семьи из 2-3 человек. На первом этаже можно пристроить просторное крыльцо или открытую террасу. Проект позволяет расширить зону для летнего отдыха, установив шезлонги.
Проект двухэтажного домика шале
Компактный двухэтажный домик 4 на 6 занимает всего 24 кв. метра. Проект обеспечивает возможность разбить клумбы, огородные грядки, поместить на участке гараж, посадить небольшой сад. Площадь дома 6 на 4 в два этажа по сравнению с одноэтажным строением аналогичных размеров увеличивается вдвое. Планировка вполне подходит для жизни среднестатистической семьи. Ее можно использовать в гостевом доме загородной усадьбы.
Планировка 6х4, проект которой предусматривает расположение общих комнат на первом уровне, а использование помещений второго этажа в качестве личных спален, весьма удачна. Дневная часть с ночной зоной не пересекается. Спустившись утром к завтраку, подниматься на второй этаж можно уже после ужина.
Еще одно решение увеличения пространства дома при сохранении планировки участка без изменений – дом из бруса 4х6 с мансардой. Древесина – наиболее доступный материал для большинства регионов России, поэтому ее применение обосновано. Общая площадь дома расширяется за счет чердачного пространства.
Такой архитектурный прием изменения планировки в 17 веке предложил французский инженер Франсуа Монсар. В те времена современных материалов для утепления крыши не было, поэтому мансарды применяли для хранения ненужных вещей или проживания слуг. Теперь кровельный пирог можно утеплять минеральной или базальтовой ватой, пенопластом или пенополистиролом.
Отдельно стоит остановиться на конструкции кровли. По проекту это может быть вальмовая, щипцовая или ломаная крыша 4х6 с мансардой. Однако в этом вопросе тип кровли особой роли не играет. Главное, высота конька должна обеспечивать помещение с потолком в 2,5-2,8 метра.

Каркасный дом 4 на 6 своими руками. Шаг №2: Фундамент для каркасного дома своими руками
Огромное достоинство каркасного дома в том, что для его строительства подойдет практически любой тип фундамента. Единственным ограничением является тип грунта на участке и Ваши возможности.
Стоит сказать, что заложение фундамента для каркасного дома своими руками заслуживает отдельных тем обсуждения и вынесено в отдельные статьи. Тем более что типов подходящих фундаментов несколько, а какой выбрать – решать только Вам.
Здесь же я расскажу в двух словах о подходящих фундаментах для каркасного дома, и о том, в каких случаях применяется каждый из них, а также дам ссылки на подробное их описание.
Свайно-винтовой фундамент для каркасного дома
 Самым распространенным типом фундамента для каркасного дома является свайно-винтовой. Это практически самый простой и дешевый вариант для такого дома, тем более, что произвести монтаж свайно-винтового фундамента не сложно и своими руками.
Такой фундамент подходит практически для любых грунтов, кроме скалистых. Особенно хорошо подходит для болотистых грунтов, где плотные породы грунта располагаются глубоко и другие типы требуют огромных затрат.
Вообще, все плюсы и минусы свайно-винтовых фундаментов , рассмотрены в другой теме, которая поможет Вам определиться с выбором опоры для Вашего дома.
Мелкозаглубленный ленточный фундамент
Мелкозаглубленный ленточный фундамент , так же используется для строительства каркасного дома своими руками довольно часто. Это обусловлено относительно небольшими затратами на его заложения, а также возможностью использования бетонных полов в доме.
Такой фундамент, в связи с его относительной хрупкостью, требует точного соблюдения технологии заложения.
Как правило, мелкозаглубленный ленточный фундамент используется в хороших грунтах, и категорически противопоказан на почве с очень высоким уровнем грунтовых вод и болотистых грунтах.
Плитный фундамент для каркасного дома
 В последнее время, все большую популярность для строительства каркасного дома своими руками набирает плитный фундамент. Не смотря на его не малую стоимость, у него присутствуют очевидные плюсы, такие как универсальность, надежность, долговечность, а также его можно использовать как черновой пол в доме и не тратиться на него отдельно.
Частенько, вместо классической монолитной плиты используют плитный фундамент с ребрами жесткости. Это позволяет немного сэкономить на заложении, а также усиливает всю конструкцию в целом.