Перепланировка с устройством гардеробной комнаты. Варианты схем устройства гардеробных комнат
- Перепланировка с устройством гардеробной комнаты. Варианты схем устройства гардеробных комнат
- Гардеробная вход. Дизайн гардеробной 2022: ТОП-200 лучших идей планировки
- Перепланировка квартиры: что можно без согласования. Правила перепланировка квартиры 2020
- Гардеробная без перепланировки. Как сделать гардеробную: 6 вариантов размещения
- Устройство гардеробной. Как сделать гардеробную своими руками: хитрости планировки и удачные варианты проектов
- Какие перегородки не считаются перепланировкой. Работы, которые можно делать без разрешения
- Перепланировка квартиры правила. Что такое перепланировка и переустройство
- Вход в спальню через гардеробную. Стили
- Как узаконить гардеробную. Варианты устройства гардеробной
Перепланировка с устройством гардеробной комнаты. Варианты схем устройства гардеробных комнат
Внутреннее устройство гардеробной комнаты, как уже говорилось выше, зависит от того, сколько имеется места для расположения полок и вешалок, от того, какая форма помещения и от того, что и в каких количествах вы собираетесь хранить. Рассмотрим несколько распространённых вариантов планировочных решений.
- расположение полок и вешалок по одной длинной стене. С точки зрения пользования, это оптимальный вариант: при открывании раздвижных дверей всё внутреннее пространство гардеробной перед вами и до всех полок и вешалок имеется удобный доступ. Если вещей много, то можно использовать хранение в два ряда: на стене монтируются полки, а перед ними устанавливается штанга для плечиков с одеждой и небольшие выдвижные стеллажи.
Схема: расположение полок в гардеробной вдоль одной стены
- полки по двум длинным сторонам. Этот вариант используется для проходных гардеробных комнат, где можно войти с одной стороны, а выйти с противоположной. Он тоже удобен, но только в случае, если есть достаточно места для прохода – иначе вы можете почувствовать себя молью, залетевшей в платяной шкаф.
- расположение полок «покоем». «Покоем», значит, в форме буквы «П». Эта схема расположения используется для достаточно просторных помещений под гардеробную, но не имеющих сквозного прохода. Наиболее вместительный и комфортный вариант, правда, далеко не всегда реализуемый.
- расположение буквой «Г». Если помещение недостаточно широкое для размещения полок по двум длинным сторонам и прохода между ними, можно разместить полки и вешалки по короткой и длинной стороне, сделав вход с торцевой стены. Минимальная ширина помещения – 1200 мм: 600 мм на проход, 600 мм на полки.
Расположение полок буквой Г
- гардеробная с выдвижными конструкциями . Если вы имеете кладовку – узкую и длинную, шириной менее 1200 мм, то единственный способ устройства места для хранения – использование выдвижных вешал или стеллажей. По сути, это не полноценная гардеробная комната – в неё нельзя войти. Это шкаф по форме напоминающий пенал или тубус. Для того чтобы разместить ёмкости для хранения и удобно ими пользоваться, стоит обратить внимание на мобильные системы хранения. При устройстве такого типа кладовки необходимо предусмотреть место для выдвигания стеллажа.
Совет. Выбирая системы хранения, обратите внимание на современные конструкции: пантографы, сетчатые выдвижные корзины, навесные ёмкости, крючки, специальные многослойные плечики, брючницы и прочие приспособления. Они в значительной мере увеличивают возможность хранения на ограниченной площади и структурируют хранилище.
Гардеробная вход. Дизайн гардеробной 2022: ТОП-200 лучших идей планировки
Лучшие гардеробные системы (от маркетплейсов):
Гардеробная комната — делаем проект
Как видите, идей по складскому оборудованию и системам очень много. Но чтобы не оказалось, что купленная отличная вещь попросту не стала в вашем гардеробе, нужно начертить плоскость, на которой вы укажете все размеры и габариты. Он нарисован в масштабе, поэтому отметьте на нем те детали, которые необходимо запросить. Они нарисованы в одном масштабе.
Если все «идет хорошо», вооружившись габаритами (они у вас есть, или вы можете измерить по фигуре и по шкале посчитать реальные значения), вы можете пойти в магазин, чтобы выбрать системы.

Есть другой подход. Узнайте габариты понравившихся вам приспособлений и систем (установочные размеры), вырежьте их в масштабе из картона или плотной бумаги и попробуйте все совместить. Если можешь, то можешь покупать. Нет, ищите другие варианты. В результате ваших усилий у вас должен получиться примерно такой же макет, как на фото.
Пример организации пространства в гардеробной (с указанием минимальных размеров для разных видов одежды)
Чтобы было удобно пользоваться техникой и доставать вещи, нужно соблюдать следующие расстояния:
- минимальное расстояние от полки до полки: при хранении вещей — 30 см; при хранении обуви (без шпилек) — 20 см;
- рубашки, куртки, куртки — 120 см;
- брюки: сложенные пополам — 100 см; в длину — 140 см;
- отделение для верхней одежды — 120 см; пальто — 160-180 см;
- для платьев — 150-180 см.
Сверху отводим место для одежды другого сезона или редко используемых вещей. Часто внизу есть место для пылесоса, а в одном из шкафов делается встроенная гладильная доска.
Как сделать гардеробную: варианты размещения
В доме кладовая также назначается на этапе проектирования или позже при распределении помещений. Они редко бывают в типовых квартирах. Поэтому нужно найти подходящее решение. Разберем несколько возможных вариантов, из чего и где можно сделать гардеробную своими руками.
В прихожей
Хорошо, если в распоряжении хозяина будет большой зал, часть которого можно будет вынести для организации системы хранения вещей. В этом случае ставится перегородка, разделяющая коридор на две комнаты. Размер и форма шкафа-купе выбирают по своим предпочтениям.
В малогабаритных квартирах есть два решения, как сделать гардеробную в коридоре. Первый предназначен для длинных, но довольно широких помещений. На одной из стен размещена картотека. Оптимально выбирать шкаф-купе закрытого типа, возможно, с зеркальными дверцами. Это позволит зрительно расширить небольшое пространство. Второй вариант — для квадратных или тесных планировок. В этом случае угол ограждают перегородкой, а внутри него устраивают систему хранения.
В спальне
В спальне принято хранить одежду, поэтому такое решение считается очень уместным. Место для системы хранения определяется исходя из формы спальни. Если он слишком растянут, лучше всего отгородить участок через всю комнату. Спальня приобретет правильные пропорции, станет более уютной и привлекательной. В достаточно просторных, квадратных и соседних помещениях предпочтительнее угловое размещение гардеробной. Его отделяет несъемная перегородка с дверцами или плотная штора.
Под лестницей
Свободное пространство под лестничным маршем достаточно глубокое, чтобы вместить кладовку. Вариантов обустройства много. Можно сделать шкаф открытого типа или с дверцами: раздвижными или распашными. Подходит и модульная конструкция, которая собирается из выдвижных или выдвижных элементов. Внутри таких блоков размещаются крючки, перекладины, полочки, ящики.
Из шкафа
Скучный гардероб при желании легко переделать в гардероб. Планировка зависит от доступного пространства. Из старого шкафа вытаскивается начинка, остается только каркас, который станет основой нового дизайна. Устанавливается на место, монтируется заливка. Вы можете поступить иначе. Используйте старую мебель в качестве системы хранения в шкафу. Возьмите какие-то элементы без изменений, поменяйте и что-то повторите.
Перепланировка квартиры: что можно без согласования. Правила перепланировка квартиры 2020
Если концентрироваться именно на новых требованиях этого года, то их два. Причем оба облегчают жизнь граждан, планирующих «переформатировать» свою квартиру.
- Для согласования больше не нужна справка о принадлежности/непринадлежности дома к числу архитектурных памятников
- Выписка из ЕГРН также не нужна, если собственность на квартиру уже зарегистрирована. Сопутствует этому правилу запрет на проведение перепланировки в новостройках до того момента, пока собственность на новое жилье не будет зарегистрирована в Росрестре
К запрещенным видам переустройства жилого пространства отнесены:
- Разрушение общедомовых коммуникаций и несущих конструкций (стен)
- Объединение балкона и/или кухни, где установлена газовая плита, с жилым помещением
- Перенос санузла в зоны, под которыми находятся жилые комнаты нижних этажей
- Вынос элементов центрального отопления на балкон
- Работы, результат которых делает невозможным нормальное пользование квартирой
Не нужны согласования для косметического ремонта, смены отделки (например, с обоев на кафель, с линолеума на паркет и т.д.), обновления встроенной мебели.
Не нужно подавать предварительную заявку в БТИ, чтобы произвести:
- Обустройство проемов в межкомнатных перегородках
- Замену кухонной плиты
- Перемещение сантехники в пределах санузла
- Установки или разборки гипсокартонных перегородок
- Застекления балкона
- Монтажа кондиционеров, сплит-систем, спутниковых антенн
- Переустройства/ликвидации тамбурной зоны
Все перечисленные изменения достаточно зарегистрировать в БТИ уже после того, как они произведены.
Источник: https://jk-na-krasnyh-partizan-2.ru/novosti/pereplanirovka-kvartiry-na-pervom-etazhe
Гардеробная без перепланировки. Как сделать гардеробную: 6 вариантов размещения
В доме комнату под хранение выделяют еще на этапе планировки или позже при распределении помещений. В типовых квартирах они редко предусмотрены. Поэтому приходится находить подходящее решение. Разберем несколько возможных вариантов, из чего и где можно своими руками сделать гардеробную.
Хорошо, если в распоряжении владельца просторный холл, часть которого можно забрать под обустройство системы хранения. В этом случае ставится перегородка, разделяющая коридор на две комнаты. Размеры и форму гардероба выбирают, руководствуясь своими предпочтениями.
В небольших квартирах есть два решения, как сделать гардеробную в коридоре. Первое — для длинных, но достаточно широких холлов. На одну из стен помещают систему хранения. Оптимально выбирать закрытую корпусную мебель, возможно, с зеркальными дверцами. Так удастся визуально расширить небольшое пространство. Второй вариант — для квадратных или приближенных к ним планировок. В этом случае один угол отгораживается перегородкой, внутри него обустраивается система хранения.
Одежду принято хранить в спальне, поэтому такое решение считается очень уместным. Место под систему хранения определяется исходя из формы спальни. Если она слишком вытянутая, лучше всего отгородить участок поперек помещения. Спальня получит правильные пропорции, станет уютнее и привлекательнее. В достаточно просторных комнатах квадратной и близкой к ней формы предпочтительнее угловое размещение гардеробной. Ее отделяют стационарной перегородкой с дверями или плотной шторой.
Свободное достаточно глубокое для расположения зоны хранения. Вариантов обустройства много. Можно сделать гардероб открытого типа или с дверками: раздвижными либо распашными. Подойдет и модульная конструкция, которая собирается из выдвижных или выкатных элементов. Внутри таких блоков размещают вешалки-перекладины, полки, коробки.
Надоевший шкаф-купе при желании легко переоборудуется в гардероб. Планировка зависит от свободного пространства. Из старого шкафа вынимают наполнение, оставляют только каркас, который станет основой новой конструкции. Ее устанавливают на место, монтируют наполнение. Можно поступить иначе. Использовать старую мебель как корпусную систему хранения. Что-то из элементов взять в неизменном виде, что-то изменить и переделать.
Устройство гардеробной. Как сделать гардеробную своими руками: хитрости планировки и удачные варианты проектов
Всему своё место, а одежде особенно. Даже когда не хватает площади и финансов, гардеробная своими руками – реальность, которая вам под силу. Далее расскажем, как создать вместительный и красивый вариант под себя. Пошаговая инструкция прилагается. Любой чертеж отталкивается от реальности. Ваша реальность – свободное место. Для самойпотребуется хотя бы 1,5 кв. м. Найдите эту площадь, а мы расскажем, как ее лучше использовать. Известно 4 вида устройства гардеробной комнаты: Таблица 1. Разновидности устройства гардеробных комнат. Варианты реализации

№ Название Расположение полок Плюсы 1 Линейное/одностороннее Вдоль одной стены Экономия места 2 Угловое Вдоль угла Увеличенная вместимость при небольшой занимаемой площади 3 Параллельное/двустороннее Вдоль двух параллельных стен Увеличенная вместимость 4 П-образное Вдоль трех стен ниши или помещения Увеличенная вместимость, примерочная внутри
Каждую разновидность лучше делать из определенной комнаты.
Из кладовки
Преимуществасущественны:
- она не отбирает жилое пространство;
- не нужны материалы на стены;
- дает возможность расположиться П-образно;
- дверь, розетки и вентиляция уже установлены.
Если вы проживаете в хрущевке с небольшой кладовой, встройте в неё линейный шкаф – и уютное место для хранения готово (фотография 1). Подберите раздвижные двери, чтобы они не мешали.
Отличная идея – сделать шкаф из чулана под лестницей в частном доме или на балконе в квартире.

Система хранения вещей
В спальне
Идея гардеробной в спальне покажется особенно привлекательной женщинам.
Преимущества:
- переодеваетесь там, где храните одежду (а иногда и внутри);
- храните постельное белье рядом с постелью;
- не тратите деньги на другие комоды в комнате;
- перемещаете беспорядок своими руками в шкаф за минуту.
- Если ужаться, хватит 3–5 кв. м. Лучше выделить 6–8 кв. м.
Удачно смотрятся в спальнев форме полукруга, трапеции или треугольника. Они выжимают максимум места из пустых углов, как на фотографии 2.
Круглая угловая гардеробная
Хранить вещи можно и в других условиях – когда они открыты. Но придется всегда соблюдать порядок и быть готовым к наличию пыли. Вместо двери в гардеробную также подойдет занавес.
Занавес отделяет жилую зону
В коридоре
Коридоры и прихожие чаще имеют вытянутую форму, и профессионалы предлагают оборудовать гардеробную систему вдоль узкой стены. В гардеробной в коридоре свои плюсы:
- вы экономите полезное место;
- храните верхнюю одежду и головные уборы у выхода;
- храните обувь там, где переобуваетесь.
Встраиваемая мебель
Специалисты предлагают совмещать варианты. Например, расположите шкаф для верхней одежды в прихожей, а основное место хранения сделайте своими руками в спальне. Экспериментируйте!
Пошаговая инструкция. Делаем своими руками
Все проекты проходят стандартный путь – идея, бумага, результат. Допустим, вы решили, где и как будете делать гардеробную. Переходите к расчетам:
- Измерьте все вещи, которые планируете там хранить – отдельно женские, мужские и детские. Если храните футболки в сложенном виде, то и мерьте в сложенном. Если храните на вешалках, нужны размеры плечиков и длина вещи.
- Определите точную площадь и высоту, которую вы выделяете под конструкцию.
- Переходите к чертежам и схемам.
Важно знать! Если у гардеробной есть крышка, она должна быть на расстоянии 7–10 см от потолка.
Создание чертежа
Проектируйте на бумаге или в специальных программах. Благодаря последним вы можете:
- поиграть с расположением, не перерисовывая всё целиком;
- создать полноценную 3D-модель, а не отдельные 2D-эскизы;
- «примерить» одежду, цвета и интерьер.
Существуют онлайн-варианты ПО, которые не требуют установки и открываются из браузера. Но неважно, какой инструмент выбран. Важно, чтобы зарисовки включали вспомогательные элементы:
1. Обозначьте освещение и зеркала, чтобы всё разглядеть.
Важно знать! Шкаф – многоярусный объект, и светло должно быть на каждом ярусе. По потолку расположите верхние точечные лампы. Выборочно поставьте приборы на полки и ящики. Используйте окна. Продумайте креативные варианты, например, встройте освещение в штангу, как на рисунке 1.
Освещение встроено в штангу
2. Предусмотрите пуфики, табуретки, подставки.
3. Обустройте систему вентиляции. Она важна для вещей не меньше, чем для людей.
Проблемы вентиляции и освещения актуальнее в комнате без окна, ведь когда оно есть, то берет на себя часть функций по проветриванию и освещению.
Планировка полок
Подбирая размеры и расположение полок, опирайтесь исключительно на сделанные расчеты.
Какие перегородки не считаются перепланировкой. Работы, которые можно делать без разрешения
Перепланировка или переустройство — это работы, которые отражаются на плане квартиры БТИ. Например, когда появляются дополнительные помещения, а также меняется их функциональное назначение:
- когда в квартире появляются гардеробные или одна комната делится на две и более;
- когда кухня переносится из своего прежнего места в коридор либо кладовку;
- когда сносится подоконный блок между лоджией и комнатой и устанавливаются французские двери;
- когда площадь санузла расширяется за счет переноса дверей или делается новый проем в перегородке или несущей стене;
- когда объединяются помещения – ванная и туалет, кухня и гостиная.
Это лишь малая часть тех работ, которые нужно согласовывать, а все изменения фиксировать в БТИ на плане квартире.
Есть такой ремонт, который оставляет план квартиры неизменным, и это не будет являться перепланировкой. Может показаться, что вы делаете серьезный, капитальный ремонт, но в реальности получать разрешение на него не нужно, как и готовить проектную документацию, менять план БТИ, платить госпошлины и ждать разрешение. Можно просто сделать ремонт, не обращаясь ни в какие инстанции.
Критерии, по которым можно понять, что согласование с Мосжилинспекцией не требуется:
- дверные и оконные проемы не переносятся;
- сами двери остаются там, где предусмотрены на плане БТИ;
- конструкция пола не меняется;
- сантехника, трубы, газопровод — все остается на своих местах.
перегородки внутри квартиры остаются на месте;
На плане квартиры отображается, где расположены дверные проемы, какие двери установлены — распашные или раздвижные. Если распашную дверь демонтируют и оформляют раздвижную, это перепланировка. Если заменить дверь на другую аналогичную, даже если она будет открываться в другую сторону, перепланировкой это не будет, так как на плане ничего не изменится.
Примеры работ, которые не нужно согласовывать:
- замена электропроводки, когда нужно штробить стены;
- прокладка новых труб для санузла;
- выравнивание стен под покраску или под обои;
- установка новых дверей;
- замена окон;
- замена ванны, унитаза, раковины, мойки;
- отделка помещения — покраска стен, замена обоев и потолочного покрытия.
Все это не считается перепланировкой и не требует согласования даже при желании собственника квартиры. Если подать документы в Мосжилинспекцию с просьбой выдать разрешение на такие работы, она откажет.на работы, которые не предполагают внесение изменений в план БТИ, разрешение в принципе не выдается.
Если вы сомневаетесь, нужно ли узаконивать ваш ремонт, напишите нам список предполагаемых работ. Наша консультация бесплатна. Мы точно скажем, что можно делать без разрешений, а на что его необходимо получать:
Какую перепланировку можно делать без разрешения Как оформить перепланировку квартиры без проекта Какой штраф за перепланировку квартиры без разрешения 2021 Сколько стоит узаконить перепланировку в квартире
Здравствуйте! Вы можете задать мне любой интересующий вопрос в WhatsApp.
Получите консультацию специалиста или отправьте нам на предварительную оценку необходимые документы.
Частые вопросы нашим экспертам
Какую перепланировку можно делать без разрешения Как оформить перепланировку квартиры без проекта Какой штраф за перепланировку квартиры без разрешения 2021 Сколько стоит узаконить перепланировку в квартире
Чтобы задать вопрос в WhatsApp отсканируйте QR-код с телефона. Диалог с экспертом откроется в приложении.
Перепланировка квартиры правила. Что такое перепланировка и переустройство
Простой ремонт в квартире не нужно ни с кем согласовывать. Переклеить обои или уложить плитку на стенах владелец имеет право в любое время и любым способом. Такие перемены никак не обозначаются в техническом паспорте помещения.
Серьезные изменения — неважно, перепланировка это или переустройство — требуют проекта и согласования, а главное — они отражаются в техническом паспорте помещения. То есть придется заказать проект перепланировки в проектном бюро и согласовать его в органах местного самоуправления, а также переделать технический паспорт. И только потом можно приступить к ремонту.
Перепланировка — это изменение конфигурации помещения, например когда планируется передвинуть стену или прорубить новый дверной проем.
Переустройство — это манипуляции с инженерными сетями, санитарно-техническим, электрическим или другим оборудованием. Например, если нужно перенести в другое место унитаз и раковину или газовую трубу — это будет переустройство. И без проекта это делать тоже нельзя.
Такая бюрократия связана в первую очередь с безопасностью. Например, стены — это каркас здания. Если снести одну, все здание может сложиться, как карточный домик. Поэтому далеко не каждую стену можно демонтировать, передвигать и даже прорубать в ней дверной проем. С коммуникациями история аналогичная. Можно что-то повредить в одной квартире, а отразится это на всем доме. Поэтому разработку проекта, который будет соответствовать всем требованиям пожарной безопасности, санитарно-гигиеническим, экологическим и другим нормам законодательства, и поручают специалистам-проектировщикам.
Проектировщики учитывают существующие нормы и правила и разрабатывают проект перепланировки. Например, если собственник хочет объединить кухню с комнатой, проектировщик уточнит, какая между помещениями стена и есть ли на кухне газ. Если стена не несущая, а варочная панель не газовая, объединять можно. Если нет — нельзя.
Вход в спальню через гардеробную. Стили
Стилистическое оформление спальни с гардеробной может существенно отличаться. Каждое направление имеет свои особенности, которые надо обязательно учитывать при выборе отделочных материалов и мебели. Это позволяет получить действительной функциональную и уютную комнату. В некоторых случаях совмещаются элементы из нескольких направлений. Однако в этом случае надо знать меру, так как вместо оригинального интерьера можно получить безвкусное помещение. Отметим особенности самых популярных и востребованных стилистических направлений, используемых при разработке проектов спален.

Лофт
Для урбанистического направления лофт характерен минимальный декор и достаточно лаконичное оформление внутреннего пространства. Гардеробная оформляется с использованием хромированных металлических стоек, деревянных полок. Последние могут крепиться непосредственно к стене.

Для организации освещения активно используются подвесные лампы без абажуров и трековые светильники. Их располагают таким образом, чтобы обеспечить достаточный уровень светового потока в нужных местах.

Некоторые отказывают от стиля лофт, так как гардеробная кажется неуютной. Однако, если при оформлении всего помещения придерживаться одного направления, такая гардеробная гармонично впишется в интерьер, а спальня получится уютной и функциональной.

Хай-тек
Такое стилистическое направление предлагает выделить максимум пространства для жизни. Активно используются нестандартные решения, позволяющие сделать ряд предметов интерьера незаметными, но при этом помогающие им справиться с поставленной задачей.
При расстановке акцентов дизайнеры советуют выбирать светильники подвесного типа с оригинальным дизайном или отдавать предпочтение настенным бра, украшенным яркими плафонами. Также привлечь внимание поможет яркий коврик.
Активно используются:
- хромированные распорки;
- тонированные стекла;
- скрытые кронштейны.
Гардеробную, как правило, делают закрытой. Стараются, чтобы ее фасад не привлекал к себе излишнего внимания. Подсветка чаще всего диодная. Располагается по всему периметру помещения.
Классика
Такой вариант можно назвать универсальным. Спальня с гардеробной в классическом стиля длительное время остается вне моды. При разработке проекта отдается предпочтение нейтральным оттенкам. Для оформления спальни используются качественные дорогостоящие материалы.
Особое внимание уделяется функциональности выбираемых предметов мебели. Нередко в гардеробной размещают пуф или даже кресло.
Кантри
При оформлении такой спальни с гардеробной активно используются натуральные материалы. Это позволяет продемонстрировать свою близость к природе и при этом помогает создать удобный и комфортный в пользовании интерьер. Чаще всего в качестве отделочных материалов используются:
- бумажные обои;
- дерево;
- камень;
- лен.
За счет этого комната выглядит легкой, естественной комфортной. Отдается предпочтение спальным гарнитурам, изготовленным из благородной древесины. Они должны иметь правильную форму. От использования излишнего декора отказываются. Цветовое оформление самое разнообразное. Актуальны зеленые, синие, бежевые цвета и другие естественные оттенки, встречающиеся в природе.
Внимание! Яркие цвета в спальне с гардеробной в стиле кантри неуместны.

Поп-арт
Идеальное решение для тех, кто любит яркие краски. Данное стилистическое направление допускает самые смелые сочетания. Можно решаться на самые смелые эксперименты. Учитывая, что речь идет о спальне, в которой надо отдыхать, главное не переусердствовать. Интерьер не должен надоедать и «резать глаза».
Как узаконить гардеробную. Варианты устройства гардеробной
Устройство гардеробной в коридоре. Такой способ практикуется в широких прихожиях, коридорах или холлах, в которых можно выделить достаточно места для организации помещения, где будет храниться одежда. Подобное размещение удобно не только в повседневной жизни, но и при приеме гостей, для которых она будет служить раздевалкой.
Устройство гардеробной в спальне. Если гардеробная рассматривается не как хранилище повседневной одежды для всех членов семьи, а предусматривает размещение определенных вещей (например, только для мужчины или только для женщины, для взрослых или детей и т.д.), то ее будет уместно устроить в спальной комнате.
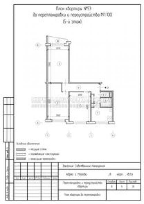
Устройство гардеробной (2а) в жилой комнате (2) трекомнатной квартиры в доме серии II-57 :



Устройство гардеробной вместо санузла. Если в квартире имеется два санузла, а большой необходимости члены семьи в них не испытывают, то один из них расширяют за счет площади коридора, а вместо другого устраивают просторную гардеробную комнату.
Устройство гардеробной на месте кладовки. Частый случай, когда при перепланировке гардеробной квартира лишается кладовки или подсобки, а на этой площади устраивают маленькую гардеробную.
Также на практике в типовых квартирах гардеробные комнаты формируют в пространстве, ранее занимаемого смежными встроенными шкафчиками.
Такие варианты переоборудования уже имеющихся помещений под склад одежды можно назвать оптимальными для тех, кто не хочет уменьшать жилую площадь квартиры, что придется делать при устройстве гардеробной в спальне.