Встроенная кухня своими руками. Проектирование кухни своими руками
- Встроенная кухня своими руками. Проектирование кухни своими руками
- Кухня своими руками из дсп чертежи. Дизайн-проект, подготовка чертежей и схем
- Кухня своими руками в стиле лофт. 7 нюансов дизайна кухни в стиле лофт
- Современная кухня своими руками с минимальным бюджетом. Что значит бюджетная кухня
- Кухня своими руками из дерева. Стол и табуретки
- Кухонный гарнитур своими руками чертежи. Материалы
- Каркас кухни своими руками. Строим каркасный гарнитур своими руками
- Кухня своими руками из кирпича. Оригинальная кухня из кирпича
Встроенная кухня своими руками. Проектирование кухни своими руками
Изготовление кухонного гарнитура начинают с проекта. Для проекта требуются габаритные размеры места, где она будет установлена. После чего можно начать подбирать составные элементы.
Рис.1. Чертеж кухонного гарнитура с размерами.
Кухонный гарнитур состоит из ящиков, в которых может быть различное наполнение, начиная с полок и заканчивая выдвижными корзинами. Для отделений как верхнего, так и нижнего рядов установлены стандартные размеры по ширине начиная с 15 см до 100 см, с шагом 5 см, т.е. 15, 20, 25, 30, 35 см и т.д. Знать их нужно для проектирования.
При подготовке проекта следует руководствоваться стандартными размерами, т.к. вся фурнитура изготавливается с их учетом.
Определяя компоновку следует принимать во внимание, что стандартная высота ящиков нижнего ряда составляет 72 см, верхних может быть 60, 72 или 90 см. Глубина нижнего ряда 55 см, верхнего 30 см.
Конечно изготавливая кухонной гарнитур своими руками можно устанавливать произвольные размеры, но тогда придется отказаться от готовых компонентов кухни (например, фасад), и все элементы изготавливать по индивидуально.
В том случае если стандартными ящичками не заполняется все пространство, отведенное под кухню, то в оставшимся месте делают либо полки по индивидуальным размерам.
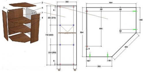
Отличительной особенностью обладает угловой кухонный гарнитур. Угловой кухонный шкаф может быть нескольких вариантов: прямой (рис. 2) и с углом 135 градусов (рис. 3). Та же особенность относится и к верхнему ряду (рис. 4).
Рис.2. Прямой угловой кухонный шкаф чертеж. Нижний ряд.
Рис.3. Угловой шкаф кухни чертеж. С углом 135 градусов.
Рис.4. Угловой навесной кухонный шкаф чертеж.
Угловая тумба под мойку (чертеж см. выше) часто используется если площадь помещения позволяет, для маленьких кухонь прямой шкаф. Таким образом, в прямой устанавливается прямоугольная или круглая мойка, в угловой – угловая или круглая.
Подготавливая проект мебели на кухню следует соблюдать следующие рекомендации:
- Место под установку плиты должно быть равно ширине ее самой, обычно это 50, 60 см.
- Для встроенной плиты шкаф должен быть шириной 60 см и глубиной не менее 55 см. Тоже относится и для духовки.
- Пространство под вытяжку должно быть 60 см для встроенной и 90 для остальных типов.
- Расстояние между вытяжкой и плитой должно быть не менее 70 см. Шкаф для встроенной вытяжки по высоте должен быть на 30 см меньше остальных.
- Пространство под холодильник должно быть не менее 60 см.
- Выкатные корзины устанавливаются в кухонные шкафчики только стандартного размера.
Кухня своими руками из дсп чертежи. Дизайн-проект, подготовка чертежей и схем
Конечно, для начинающих мастеров изготовление домашнего кухонного гарнитура – очень серьезная, но вполне решаемая задача. Однако для этого необходимо иметь минимальные столярные навыки и иметь действительно большое желание.
Чтобы сделать эту мебель, не затрачивая много сил и нервов, а главное денег, вам для начала потребуется создать дизайн-проект и подробные чертежи кухонного гарнитура. Дизайн кухонного шкафа должен учитывать абсолютно все размеры и учитывать буквально каждую деталь.
Обязательно укажите, где будет располагаться плита или плита, холодильник, раковина, посудомоечная машина и прочая кухонная электроника. Во-первых, расположение этих элементов зависит от коммуникаций, во-вторых, при размещении этих элементов необходимо учитывать некоторые правила. Итак, холодильник не может стоять рядом с плитой, между ними должен быть шкаф, для электроплиты, как правило, уже есть розетка, а раковина не может примыкать ни к плите, ни к холодильнику.
также необходимо учитывать габариты элементов фасада гарнитура. Как бы вы ни были настроены делать все своими руками, кухонный фасад все же предпочтительнее заказывать. Только настоящий мастер может создать красивый фасад из самодельной мебели, и это уже отдельная история. Мы хотим рассказать вам об устройстве каркаса кухонного гарнитура своими руками, а это, надо отметить, пожалуй, самое главное в создании многофункциональной кухонной мебели своими руками.
Разделение зон в кухонном гарнитуре
Вопрос, как самому сделать чертежи и схемы, помогут решить современные программы, проектирующие мебель для мебели, например, PRO100.
Итак, дизайн гарнитура проработан, фасады подобраны и рассортированы, приступаем к изготовлению кухонной мебели.
Кухня своими руками в стиле лофт. 7 нюансов дизайна кухни в стиле лофт
По факту есть 2 вида лофта для кухни.
- Брутальный индустриальный. Тёмные цвета, грубые фактуры, кирпичная кладка, аксессуары в старом стиле вроде восстановленных фабричных светильников, медные и бронзовые цвета, открытая проводка и вентиляция.
- Современный. Вариация минимализма, но более индивидуальная. С доминированием светлого серого бетона и имитацией отдельных элементов лофта.
Угадайте, какой проще в реализации и намного практичнее, если мы стартуем имея кухню в квартире, а не заброшенную фабрику.



Я тоже приверженец именно современного дизайна кухни в стиле лофт, поэтому основные тезисы:
- Забейте на аутентичность. Берите те элементы стиля, которые подойдут именно в вашей ситуации.
- Идея лофта — контраст грубой простой отделки, которая выступает фоном, и интересных предметов и мебели.
- Искусственное освещение критично важно. Много тёмных цветов — солнце не вывезет. Нужен разнообразный и разноуровневый свет. Слишком мало декоративного неосновного освещения — самая частая причина, почему вместо «круто» кухня в стиле лофт выглядит «недоделано».
- Стены с грубой отделкой (декоративная штукатурка, кирпич, камень, бетон, рейки, краска по неподготовленной стене) нужно подсвечивать. Неоднородная поверхность раскрывается игрой света и тени.
- Лучше акцентные цвета — жёлтый и синий. Маленькими порциями можно красный. Почему я подробно расписал в статье про сочетание цветов .
- Крафтовые вещи кроме самого гарнитура (про это отдельный параграф дальше). Остальные предметы: светильники и выключатели, стулья, радиаторы отопления, подоконники, видимые системы хранения — не должны выглядеть как-будто их купили в ближайшем универмаге (даже если это на самом деле так). Сейчас хватает недорогих интересных предметов, но придётся поискать. Лофт не про быстро и недорого.
- Натуральность и реалистичность. Стиль лофт в интерьере кухни должен производить впечатление «настоящести». Даже если это имитация дерева, камня, предмета из прошлого — не должно быть ощущения, что это бутафория. Антипримеры: обои имитирующие кирпич или бетон, при этом плоские; столешница из ДСП имитирующая камень, при этом на ощупь тёплая и звучит как дерево.












Современная кухня своими руками с минимальным бюджетом. Что значит бюджетная кухня
Многие ошибочно полагают, что бюджетные кухни – это низкокачественная мебель, которая выглядит несовременно и подходит для дачных домиков или съемных квартир. На самом деле, по внешнему виду изделия рассматриваемого типа почти не уступают более дорогим. Но за счет некоторых решений производители снижают производственные издержки, что и позволяет предложить привлекательную стоимость.
Основные особенности бюджетных кухонь:
- В качестве материала изготовления чаще всего используется ДСП. По прочности и долговечности это решение соответствует установленным стандартам, чаще всего проблемы возникают с наружным покрытием, имитирующим структуру разных материалов. Нередко оно начинает истираться через несколько лет, что сильно ухудшает внешний вид кухни. Реже встречается МДФ, так как его цена выше.
- Размеры комплектов мебели небольшие, а функционал ограничен. В них вы не встретите современные системы карго, петли с доводчиком и другие удобные дополнения, так как они стоят очень дорого. Но вы можете установить их и самостоятельно, если есть желание.
- Чаще всего дизайн изделий стандартный, это не индивидуально разработанная под конкретное помещение мебель. Массовое производство позволяет существенно снизить цену, но могут возникнуть проблемы с подгонкой под кухню, придется продумывать, как лучше расположить мебель, чтобы она смотрелась хорошо.
Кстати!
Значение имеет и производитель – чем он известнее, тем выше цена. А вот изделия небольших компаний будут заметно дешевле при сопоставимом качестве.
Кухня своими руками из дерева. Стол и табуретки

Кухонные принадлежности из дерева
Простая кухня — своими руками из дерева собираемая, обязательно предполагает стол и табуретки. Эти предметы собираются практически однотипно, табуреты, конечно можно заменить, лавками, и технология их сборки будет другой, но пока разберемся со столом и табуретом.
Собираем стол:
- вначале готовится прямоугольный каркас. В его основу ляжет доска не более 20 мм толщиной и 10 см шириной. Можно использовать и другие размеры, но более широкая и толстая доска будет смотреться топорно. Доски скрепляются между собой зубчатым соединением;
Совет! Можно сделать еще более простое соединение — к ножкам, которыми будут служить 4 одинаковых отрезка бруса сечением 50х50 мм. Таким образом, вы собираете и каркас, к которым будут крепиться доски и сами ножки.

Принцип сборки каркаса.
- затем к каркасу во внутренние углы устанавливаются ножки, сделанные из бруса . Существует огромное количество креплений, но если вы выберете для крепления ножек саморезы, то не ошибетесь;
- далее набирается крышка . Можно использовать обрезки половой доски, так как гребни и пазы, имеющиеся на доске, позволят набрать крышку без проблем. Крепление происходит саморезами в деревянный остов каркаса;

Процесс конструирования стола – завершающий этап.
- стол готов, при желании можно шпаклевкой пройти по оставшимся щелям, а затем после высыхания провести ошкуривание поверхности наждачной бумагой с последующим покрытием лаком.
К сведению! Если у вас есть токарный станок, то деревянным ножкам можно придать округлые формы, внешний вид таких изделий будет симпатичнее.

Простой табурет для кухни.
По такому же принципу собираются табуретки:
- для усиления конструкции ножки табурета соединяются между собой поперечными рейками;
- при желании вместо наборного покрытия можно столешницу сделать из ламинированной ДСП или МДФ, но аккуратно подогнанные доски будут смотреться не хуже.
Кухонный гарнитур своими руками чертежи. Материалы
Чтобы сделать кухонный гарнитур своими руками, необходимо правильно подобрать материал. Выбор зависит не только от стиля интерьера, стоит учитывать специфику самой кухни — в этом помещении более влажный воздух, перепады температур, а также есть риск возникновения пятен от жира, гари или копоти. На подборке фото ниже можно посмотреть варианты кухонных гарнитуров, сделанных своими руками, с учётом разных материалов.
МДФ
Недорогой и практичный вариант для кухонного гарнитура. МДФ прост в обработке, так что собрать гарнитур своими руками не составит труда. За счёт разнообразия расцветок МДФ впишется в практически любой стиль интерьера. Однако, если вы отдали предпочтение классике или кантри, лучше использовать натуральное дерево вместо него более дешёвых аналогов.

Дерево
Натуральный деревянный массив отличная находка для мебели. Дерево надёжный материал, способный служить десятилетиями при должной обработке и уходе. Учитывая, что деревянные поверхности будут постоянно подвергаться воздействию влаги и жара, стоит позаботиться об их обработке специальными средствами. Не лишней будет пропитка, защищающая от вредителей, к которым натуральное дерево очень уязвимо.

Деревянный гарнитур смотрится основательно и роскошно, а древесная фактура создаёт тёплый и уютный интерьер. Лучше всего дерево подходит для классических интерьеров, кантри, прованса, шебби шик, средиземноморского стиля или арт деко.

Каркас кухни своими руками. Строим каркасный гарнитур своими руками
Традиционно встраиваемые модели кухонных гарнитуров изготавливали в угловом исполнении. Это позволяло усилить конструкцию и одновременно увеличить опорную площадь кухонного фасада.
Гарнитур для кухни собирают в следующем порядке:
- Сборка каркаса;
- Установка столешницы;
- Изготовление ящиков и навешивание дверей на тумбочки и шкафы;
- Тонирование древесины, выполнение отделочных операций.
При размерах 200х250 см средняя стоимость изготовления составляет около 50 тыс. рублей. Скептики могут заявить, что за эту сумму можно купить что-то похожее в любой из фирм, изготавливающих мебель из ДСП. Но на практике самостоятельно изготовить кухонный гарнитур своими руками, фото, означает гарантию качества и минимальный риск переделок.
Для каркаса используем сосновый брус, тщательно высушенный и обработанный лаковой пропиткой. В первую очередь потребуется собрать верхний ярус, отрезаем от бруса 50х50 мм кусок размером 90 см и пришиваем его дюбелями вертикально, по угловой линии стены.
Вторым заходом нашиваем левую и правую горизонтальные планки каркаса. Для того чтобы удержать столешницу гарнитура, необходимо использовать стартовую планку, толщиной не менее 20 мм и 10 см шириной. Далее из доски 20х100 мм собирается нижний короб, его можно уложить непосредственно на пол, при условии, конечно, что плитка или любое другое напольное покрытие, на которое и будет опираться кухонный гарнитур, имеют гидроизоляционный подслой.
Следующим действием на собранный Г-образный короб вертикально устанавливаются перегородки из еловых панелей, которые в дальнейшем составят силовой каркас нижнего яруса кухонного гарнитура. Чтобы пришить перегородки к ранее установленным стартовым планкам, по углам панелей выполняют угловой вырез или выпил в виде прямоугольника 60х20 мм.
После выравнивания панелей набивают вторую пару горизонтальных планок. Каркас кухонного гарнитура готов, можно переходить к укладке столешницы.
Кухня своими руками из кирпича. Оригинальная кухня из кирпича
Кухня из кирпича является одним из наиболее выгодных вариантов оформления, позволяющих существенно разнообразить существующий интерьер и придать ему индивидуальность. Обустройство кухни играет огромную роль в формировании дизайна всего дома. Как показывает практика, именно в ней мы проводим наибольшее количество времени, занимаясь готовкой, уборкой или приемом пищи. При этом она должна не только привлекательно смотреться, но и быть максимально функциональной.
Кирпичная кухня: возможность установки и преимущества
Кирпичные постройки являются своеобразным эталоном для обустройства кухни. Ярким примером подобных конструкций служит летняя кухня из кирпича, которая создается отдельно от жилых помещений и представляет собой образец функциональности. Однако сооружение таких объектов требует больших затрат как финансового, так и материального характера, поэтому сейчас большинство владельцев частных домов старается обустроить кухню непосредственно в доме. Подобное решение является гораздо более экономичным, хотя и имеет определенные нюансы, заключающиеся в организации вентиляции и предотвращении распространения посторонних запахов по всему дому. При этом использование кирпичных объектов дает возможность сделать ее оформление поистине уникальным и характеризуется следующими преимуществами:
- эстетичность;
- практичность;
- долговечность;
- универсальность;
- красочность.
Все эти качества лишний раз подчеркивают тот факт, что оформление кухни при помощи кирпича служит одним из наилучших решений. Конечно, непосредственно в доме незачем возводить дополнительные стены лишь для того, чтобы предать помещению более красочный внешний вид. А вот сделать кухонный гарнитур из кирпича вполне возможно.
Кухонный гарнитур своими руками
Отказаться от традиционной расстановки мебели и вместо этого выстроить полноценный гарнитур из кирпича является великолепным решением. Подобное строительство требует ответственного подхода, поскольку передвинуть такие элементы или переставить их в другое место не является возможным. Исходя из этого можно заключить, что прежде чем возводить подобные постройки, нужно сперва определиться с их назначением и окончательным местом расположения. Лишь после этого можно начинать делать гарнитур из кирпича своими руками. Лучше всего составить план или схему, на которой обозначить все места установки тех либо иных деталей интерьера.
Следует также отметить, что кирпичные постройки имеют достаточно большой вес, что может потребовать увеличения несущей способности пола.
В свою очередь, их строительство на втором этаже и выше вообще запрещено.
Какую же кухонную мебель можно заменить кирпичными постройками? Да практически все напольные конструкции наподобие тумбочек, столов или кухонных уголков. А вот с навесными системами дела обстоят немного сложнее, поскольку поместить на стене кирпичный шкаф довольно сложно и даже нецелесообразно, поскольку он не только создаст повышенную нагрузку на перегородку, но и сделает внешний вид всей кухни угловатым.
Для того чтобы сделать кухонный гарнитур в собственном доме, понадобится следующий набор инструментов:
- мастерок;
- лопата;
- рулетка;
- уровень;
- отвес;
- карандаш или мел;
- веревка.
Имея под рукой план будущего объекта и все необходимые инструменты, возвести кухонный стол или тумбочку для хранения утвари не составит большого труда. В свою очередь, результаты работ способны превзойти все ожидания и представить вашему вниманию великолепный и практичный объект.
Последовательность работ и завершающие штрихи
Кладка кирпича осуществляется при помощи цементного раствора , связывающего элементы между собой и предающего постройке монолитность. Сперва необходимо соорудить своеобразный помост, который будет выполнять сразу несколько функций — послужит нижней полкой и основой для дальнейшей укладки материала.
Следует также отметить, что комбинирование разнообразных по своей фактуре и цвету кирпичей придаст готовому объекту красочность и лаконичность. Теперь можно начинать выстраивать стены объекта: для этого по периметру укладываем первый слой кирпича, который тщательно сверяем по уровню и отвесу. Таким образом строительство продолжается до тех пор, пока гарнитур не будет полностью закончен. При завершении работ излишки раствора удаляются при помощи мастерка, а швы дополнительно обрабатываются. Полки, дверцы или другие подвижные элементы монтируются отдельно поверх кирпичного основания.
В целом при помощи кирпича можно выстроить и заменить абсолютно любой элемент кухонной мебели. Исключением служит лишь техника, без которой обойтись не удастся, а заменить ее на самодельные приборы, к сожалению, невозможно. Однако столы, тумбочки, подставки и даже стулья вполне можно возвести своими руками при помощи кирпича. При этом интерьер дома не только не пострадает, но и станет более выраженным и приобретет непревзойденный внешний вид.