Что значит санузел раздельный. Душевая кабина
Что значит санузел раздельный. Душевая кабина
Как правило, в малогабаритных квартирах площадь ванны с туалетом составляет от 3 до 4 м2. Соответственно, отыскать лишнее место для стиральной машинки, тумбочки для умывальника, бельевой корзины очень непросто, т. к. основную площадь занимает большая ванна. В таком случае экономить пространство поможет кабинка для душа, благодаря которой можно почти вполовину увеличить количество ценных метров. В действительности массивная ванна предназначена для водных профилактических лечебных мероприятий, но с гигиенической точки зрения душ намного практичнее.

Совмещенный санузел — вариант оформления
Так что лучше: совмещенный или раздельный санузел? Соединенная ванная с туалетом обоснована в случае, если помещение не единственный санузел в жилище и когда комнату использует не более трех человек. Следовательно, невзирая на распространенное стремление к увеличению площади путем разрушения ненужных стенных перегородок, прежде следует подумать о возможных последствиях этого действия.
Достоинства
В большой комнате (от 8 м2), наполненной воздухом и светом, имеются все нужные сантехнические элементы и специальная мебель. А если в жилище есть дополнительный санузел, тогда в совместной комнате сложно отыскать минусы.
Функциональная ванная предоставляет своим пользователям:
- ванну;
- большой умывальник;
- места для расположения и установки машинки для стирки, биде, унитаза или джакузи.
При правильном зонировании можно функционально поделить площадь. А также сделать оригинальный интерьер, пол с подогревом и расставить массу интересных аксессуаров. Тогда в таком помещении захочется делать не только косметические процедуры, но даже разводить комнатные растения, которые разнообразят дизайн растительными мотивами.

Совмещенный санузел
Естественно, не все могут позволить себе сделать объединенные комнаты уютным и просторным помещением. Однако при желании увеличить площадь все же возможно, добавив к комнате несколько метров, где раньше была кладовка либо чулан.
Смежный или раздельный санузел. Разделённый или совмещённый санузел: что выбрать
Во время ремонта многие владельцы квартир задаются вопросом: сделать разделённый санузел или совмещённый? Какие плюсы и минусы есть у каждого варианта и что выбрать?

В этой статье я разберу самые частые ситуации и помогу определиться с правильным решением.
Совмещённый санузел
Совмещённый санузел можно часто встретить в первых сериях типовых домов.
Совмещённые санузлы делали в целях экономии при строительстве, но в 80-х приняли новые правила по которым если в квартире больше одной комнаты, то санузел должен быть разделён (на ванную и уборную).

Сегодня это правило не актуально и владельцы квартир вправе сами решать какой санузел устраивать.
Проблемы выбора
Объединённый санузел удобен тем, что все сантехничнское оборудование находится вместе, но в ряде случаев это порождает недостатки:
- Тесно. В первых типовых домах площадь объединённого санузла составляет скромные 3,4 - 4,2 кв.м.
- Нет места для стиральной машины. Найти в объединённом санузле место для стиральной машины задача очень сложная. Именно поэтому часто владельцы таких квартир устанавливают стиральную машину в кухне.
- Неудобно если в квартире проживает семья. Если в квартире проживает семья, то объединённый санузел создаёт очередь на умывание вечером, что провоцирует конфликты.

Разделенный санузел в типовом доме после перепланировки
Недостатки разделённого санузла
Но и разделённый санузел тоже обладает недостатками, например в типовых многоквартирных домах в уборной комнате не предусмотрены рукомойники, что нарушает гигиену.
Также в разделанном санузле часто неудобно расположены двери, которые блокируют проход в коридоре.
Что выбрать?
- Типовой дом (двухкомнатная квартира)
За свою практику я выработал ряд решений для санузлов в типовых домах.

Разделенный санузел в типовом доме
Если в квартире проживает семья (более двух человек), то я предусмотрю разделённый санузел и обязательно в уборной комнате найду место для размещения рукомойника.

Уборная после перепланировки
На фото выше один из моих реалити-проектов Ремонт за миллион , где при помощи грамотной перепланировки я устроил нишу для раковины в уборной.

Ванная после перепланировки
Эта квартира находится в доме серии П - 3М и решение вы можете повторить.
- Однокомнатная квартира
Если квартира состоит из одной комнаты и в ней будет проживать один человек или пара без детей, то лучше обустроить объединённый санузел.

Это помогает разместить все необходимое оборудование и создать полноценный санузел.
- Три комнаты и более
Когда в квартире более трёх комнат, то лучше устроить два санузла: один совмещённый, а второй гостевой.
Это удобно тем, что в квартире два сантехнических узла и совмещённая ванная комната становится приватной.

Пример гостевого санузла
Когда вы планируете ремонт и перепланировку, то всегда исходите из своих требований и инженерных возможностей квартиры.
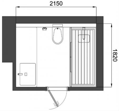
Раздельный санузел планировка. Планировка санузла 4 кв. м и более
В домах новой серии, например, в И-155 санузлы вытянутые, имеют площадь 3,9-4 м.кв. В таком помещении вариантов перепланировки может быть множество. Один из самых распространенных на схеме ниже: вся сантехника располагается на одной линии по длинной стене.

Здесь вместо ванны можно поставить душевую кабину, тогда высвободится место под стиральную машину
В этой же серии домов в двухкомнатных квартирах санузел чуть большего размера и нет громоздкого вентиляционного короба. Здесь вмещается полноценная ванна, а противоположной стене можно расположить большую тумбу с раковиной, под столешницей хватит места под стиральную машину.

Радиальное расположение сантехники в помещении 4 кв. м
В почти квадратных санузлах ванну можно разместить вдоль стены напротив двери (план ниже) либо по смежной стороне (на схеме стена справа). В таком случае унитаз и раковина переносятся на дальнюю стену, а слева останется место для машинки и шкафа.

Схема планировки санузлов с размерами 2*2 м
Важно: Перепланировка ванной комнаты и санузла – мероприятие затратное, так как перенос сантехники влечет за собой переделку узлов коммуникаций. Существуют определенные нормы к сгибу труб, их наклону и поперечному сечению, а также правила, на установку счетчиков и отсекающих кранов, прежде чем приступить к переделке необходимо выполнить проектную документацию с указанием всех изменений.
Типовая схема расположения сантехники в серии домов П-11 М
Квартиры в серии домов П-111 М имеют санузел площадью чуть более 5 м. кв., здесь перепланировка может включать в себя и двойные раковины с удобным столиком, ванную, отдельно душ, шкафы и полочки, унитаз и биде. И вопреки сложившейся тенденции, если у вас многочисленная семья, то такой санузел лучше сделать раздельным, чтобы был отдельный доступ к унитазу и ванной комнате, в которой все равно останется достаточно места, чтобы установить все необходимое.

Совмещенный санузел с перегородкой для туалета
Две раковины будут полезны тем, кто встает на работу в одно время, если такой необходимости нет, то полезную площадь можно использовать для установки душевой кабины с разными СПА функциями или под шкаф.
Раздельный санузел размеры. Выбор оптимального размера для санузла согласно снип
О том, какими должны быть минимальные размеры санузла, и какая площадь считается для этого помещения оптимальной, наверняка хотели бы знать многие владельцы квартир. Нужно ли делать перепланировку, совмещая уборную с ванной, или эта операция необязательна? А может, стоит присоединить к туалету еще и часть прилегающей территории: коридорчик или кладовку?
Полезно узнать о том, какие размеры должно иметь это помещение будет и владельцам загородных участков, решившим возвести дом.
Выбираем размер санузла
Удобный санузел должен не просто вмещать в себя всю нужную сантехнику, но и быть достаточно просторным для комфортного посещения.
По нормативам СНиП:
- Перед ванной свободного пространства должно быть 70-110см.
- По обеим сторонам от унитаза — по 25см площади, а перед ним – 60см.
- Перед раковиной – 70см.

Перед ванной должно быть 70-75 см функционального пространства
Исходя из этого, можно подсчитать оптимальные размеры санузла для городской квартиры. Обычно раковина с унитазом в таком помещении располагаются вдоль одной стены, а ванна или душевая кабинка устанавливаются у смежной. Оптимальная функциональная зона рядом со стиральной машиной – 90 см.

В уборной следует предусмотреть место и для стиральной машинки
Следовательно, 2х2-2,5х2.5м – примерные оптимальные размеры санузла в частном доме небольшой площади (совмещенного) и в городской квартире. Удобной площадью разделенной уборной будет:
- ванной – 1.5х2 метров,
- туалета – 0.9х1.5метров.
Цифры это приблизительные. На самом деле все зависит от того, какие габариты имеет квартира.

Оптимальные размеры санузлов в жилых домах и квартирах. Фото удобного помещения 6м2
Важно: Составляя проект дома или перепланировки квартиры, имейте в виду то, что на жилые помещения по нормативам должно приходиться не менее 80% площади. На санузел, кухню, прихожую и кладовку, соответственно, остается 20%.В большинстве коттеджей обычно устраиваются только совмещенные туалеты, площадь которых составляет около 5-9 кв м.

Большой санузел загородного коттеджа
Типовые размеры уборных
Итак, примерная оптимальная площадь совмещенной уборной в типовой квартире – 4-6 кв м, разделенной – 3 м2 для ванной и 1.4м2 – для санузла. Каково же положение дел на самом деле? Стандартные размеры санузла, если он разделенный, в малогабаритной квартире составляют:
- 0.88, 1.2, 1.5, 1.7, 1.8м2 – туалет,
- 2 кв метра и 2.5 кв м – ванная.

Длина и ширина санузла в типовых малогабаритных квартирах от оптимальных обычно далеки
То есть ванна в хрущевках до оптимальных размеров явно не дотягивает. Пространство в туалете же распределено не слишком рационально. Следовательно, совмещение этих помещений в малогабаритной квартире – дело целесообразное. Выполнив эту процедуру, можно увеличить полезную площадь уборной за счет толщины перегородки и удобнее расставить сантехнику.

Расставить сантехнику после совмещения в уборной можно рациональнее
В типовой квартире советской постройки стандартные размеры санузла, совмещенного с ванной, обычно составляют 3-4 кв м. Площади, конечно, также недостаточно, но что-то изменить в этом случае получится вряд ли.
Идея: Если к совмещенному санузлу в хрущевке прилегает кладовка, можно попробовать присоединить и ее. Иногда владельцы таких уборных также совмещают их с прилегающим коридорчиком, устраивая вход на кухню из гостиной.
Увеличить площадь типовой уборной можно, совместив ее с кладовкой
Минимальные габариты санузла
В советские времена минимально допустимые размеры санузлов соблюдались редко. Поэтому многим владельцам квартир маленькой площади с совсем уже крохотными туалетами, наверняка будет интересно узнать какими они должны быть в действительности. Итак,
Размеры санузла СНиП (в метрах) определяет такие:
- высота потолков – 2.5 (на мансарде – 1.05);
- минимальная ширина отдельного туалета – 0.8;
- длина -1.2;
- высота коридорчика перед уборной – 1.1.

Типовой туалет в хрущевке размером 1.2х0.8м2
Двери (ширина которых по стандартам – 55-60см без косяков) должны открываться наружу. Минимальные размеры санузла совместного, а также отдельной ванной, СНиП, к сожалению, до сих пор не регулируются.
Вывод из всего сказанного можно сделать следующий. Выбирать размер уборной при составлении проекта дома и при перепланировке квартиры следует, руководствуясь имеющимися нормативами, а также здравым смыслом и собственными представлениями об удобстве.