Проект 45 кв м квартиры. Двухкомнатная квартира для одного человека или для семьи
- Проект 45 кв м квартиры. Двухкомнатная квартира для одного человека или для семьи
- Дизайн студии 45 кв м. Грамотные варианты планировки однокомнатной квартиры и студии 45 кв м
- Перепланировка однокомнатной квартиры 45 кв м. Готовые схемы проектов переделки однокомнатной квартиры в двухкомнатную разной площади
- Видео 45 за 19: ремонт квартиры 45 кв.м. за 19 дней!
Проект 45 кв м квартиры. Двухкомнатная квартира для одного человека или для семьи
45 кв. м — достаточно небольшое пространство для двухкомнатной квартиры. Чтобы сделать такую квартиру современной и многофункциональной, необходимо тщательно продумать все детали и направление стиля. В данном случае был разработан дизайн проект для молодой семейной пары без детей.
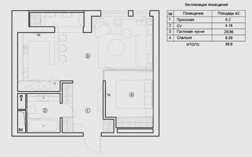
Проект сверху
Было важно сделать жилье максимально просторным, а также стильным, отвечающим всем запросам современной семьи.

Для того, чтобы освободить как можно больше пространства, мы постарались максимально избавиться от грузных стен и заменить их легкими раздвижными перегородками.

Гостиная и кухня отделяются друг от друга небольшой барной стойкой, что позволяет выиграть больше места для гостевой комнаты: здесь и огромный шикарный диван, и плазменная панель, встроенная в стену и рабочее место с компьютером.

Кухня небольшая, но многофункциональная со всей необходимой техникой. К кухне также примыкает балкон-лоджия. Утепленная лоджия позволила создать дополнительное рабочее место, а также чилаут-зону.

Самое необычное расположение оказалось у спальни. Спальная комната как бы растворяется в общем интерьере квартиры. Вход в нее- большой и свободный, но при желании можно скрыть за раздвижными дверями. Сама кровать размещается на подиуме, пристроенному к стене, что также освобождает дополнительное пространство. В подиуме расположены дополнительные ниши для хранения вещей.

Ванна здесь совмещена с туалетом, но также выполнена в общей цветовой гамме с комфортным расположением всех деталей интерьера и сантехники. Таким образом, даже небольшое пространство удалось обставить со вкусом и комфортом.
В каком стиле выполнен проект дизайна
Дизайн-проект двухкомнатной квартиры в 45 кв.м. был разработан в стиле «минимализм» в черно-белой гамме. Минимальное количество деталей, прямые формы интерьера и лаконичная цветовая гамма позволили визуально расширить пространство комнат.
Примерная стоимость обустройства
Стоимость конкретного дизайн-проекта всегда будет зависеть от пожеланий хозяев. Средняя стоимость рассчитывается из услуг ремонтной бригады: примерно 6000 рублей за кв.м, это около 270 000 рублей. Стоимость черновых материалов будет равняться примерно 200 000 рублей и еще около 300 000-500 000 уйдет на отделку квартиры и ее обустройство сантехникой и предметами интерьера. Таким образом, общая стоимость будет от 600 000 до 1 000 000 рублей.
Дизайн студии 45 кв м. Грамотные варианты планировки однокомнатной квартиры и студии 45 кв м

Грамотное зонирование пространства позволит создать дизайн, подходящий для всех членов семьи
Грамотное разделение квартиры на зоны
Независимо от типа жилища: будь то маленькая хрущевка, квартира-студия или большой частный дом, важную роль в ремонте, обустройстве дизайна будет играть зонирование. Этот прием позволяет значительно упростить все ремонтные работы, упорядочить пространство, использовать каждый квадрат квартиры максимально эффективно. Чтобы грамотно разделить жилище на зоны, следуйте таким советам:
- при проектировании пространства учитывайте количество людей, проживающих в квартире;
- для молодой семьи есть смысл превратить однушку сорока пяти квадратных метров в студию;
- планировать разделение на зоны необходимо до начала ремонта, отделочных работ;
- чтобы разделить несколько зон, не стоит возводить стены – лучше использовать мебель, перегородки или разные отделочные материалы.

Отделение спальной зоны от гостиной с помощью японских штор, подвешенных на потолочном карнизе
Планировка однокомнатных квартир для семей с ребенком
В разработке дизайна однокомнатной квартиры 45 кв м огромную роль играет количество людей, которые будут там проживать. Сложнее всего обустроить маленькое пространство для семьи с ребенком. В этом случае нужно будет выкроить хотя-бы несколько квадратных метров для малыша.

Присоединение к комнате балкона или лоджии добавит несколько квадратных метров площади, которой так не хватает в однокомнатной квартире
Если в квартире есть балкон, нужно начать с его утепления. Установив окна, обшив стену утеплителем, можно смело объединять балконное пространство с жилой комнатой. Так получится освободить пространство для обустройства небольшой детской комнаты.

Плотные шторы разделят комнату на две части, не заняв при этом много места
Если балкона нет, в комнате можно установить перегородку в виде огромного узкого шкафа. Семья с маленьким ребенком первое время может обойтись декоративной переносной перегородкой. Если же планировка комнаты позволяет, можно возвести тонкую гипсокартонную стену.
Перепланировка однокомнатной квартиры 45 кв м. Готовые схемы проектов переделки однокомнатной квартиры в двухкомнатную разной площади
При перепланировке в 38 кв м учитывается все до мелочей. Для такой квартиры лучше всего подойдут такие стили, как хай-тек, скандинавский или кантри. При использовании одного из стилей в квартире будет уютно и просторно. Важно заранее все распланировать, как из однушки сделать двушку и постепенно начать перестройку. Главное, выбрать подходящий вариант и тем самым можно преобразить свою жилплощадь.

Спальная зона выделена в небольшую, но отдельную комнату. Большая часть пространства досталась кухне-гостиной, в которой раскладной диван служит дополнительным местом для сна
При 40 кв м комнаты могут быть открытыми, что придаст квартире неповторимый вид. При перепланировке в любой интерьер можно внести “изюминку” и тогда все будет смотреться изящно и красиво. Каждому хозяину квартиры можно создать индивидуальный проект и решить как из однушки сделать двушку 40 кв. Разграничивая помещения в квартире нужно сделать так, что все было компактно расставлено.

Приватное место для ночного отдыха размещено за стеклянной перегородкой, что позволило сохранить в спальне естественное освещение
При 43 кв м будет уютно, если разграничить основную комнату перегородкой. У тех, у кого есть дети сделать для них игровую комнату. Если владелец проживает один, то ему можно создать уютное офисное помещение. Все гармонично сочетаться в соответствие с установленными правилами.

Комната с двумя окнами разделена на спальную и гостиную зоны, последняя отделена от кухни барной стойкой
При 45 кв м в одной комнате можно установить кровать и диван без потери основного стиля. Вторая половина может быть занята кухней в американском стиле. Здесь можно все разграничить так, чтобы уместились:
- напольные вешалки;
- небольшие шкафчики;
- напольный торшер;
- столик;
- диван и т.д.

Благодаря перепланировки удалось организовать просторную кухню-гостиную и уютную спальную зону с небольшим гардеробом
При 50 кв м может получиться в одной половине уютная спальня, а в другой отдельный уголок отдыха. В качестве перегородки можно поставить прозрачные. Это придаст помещению современный, презентабельный вид. В квартире может быть объединена кухня с гостиной и отдельная спальня. Все это может быть удобным вариантом для семейной пары.

Функциональный интерьер с достаточно большой спальной комнатой, кухне-гостиной и рабочим кабинетом на утепленной лоджии
При перепланировке 55 кв м можно сделать интерьер в швейцарском стиле, использовав светлые оттенки. Интерьер лучше не перегружать лишними деталями, а повесить украшения на стены и потолок. Если даже дизайн простой, то интерьер может получиться стильный и современный.
