Расположение розеток в детской комнате. Детская комната: советы по размещению розеток в закладки 12
- Расположение розеток в детской комнате. Детская комната: советы по размещению розеток в закладки 12
- Как расположить двойную розетку. Особенности монтажа и эксплуатации
- План размещения розеток. Размещение розеток в жилой квартире
- Проводка в детской комнате. Особенности электропроводки в комнате ребенка
- Как спроектировать розетки в квартире. Кухня
- Высота розеток над письменным столом. «евростандарт» высоты установки розеток и выключателей
- Розетки в спальне. Расположение розеток в спальне
Расположение розеток в детской комнате. Детская комната: советы по размещению розеток в закладки 12
Расположение и количество розеток и выключателей в детской волнует многих родителей – ведь именно в этой комнате, как нигде, нужно совместить функциональность с безопасностью. Хотите сохранить в комнате атмосферу отдыха и не путаться в километрах проводов и удлинителей? Рассказываем и показываем, где и как разместить розетки и выключатели, чтобы больше про них не вспоминать.
1. У дверного проема
Главное, что должно быть при входе в комнату, выключатель общего освещения. Обычно его устанавливают на высоте от 75 до 90 см от пола. Однако учитывайте средний рост всех членов семьи: каждому должно быть удобно нажать на клавишу, отведя опущенную руку в сторону. Проследите, чтобы шкаф или открытая дверь не закрывали выключатель: разместите его с той стороны, где располагается ручка закрытой двери.
Во входной зоне также нужно расположить дополнительную розетку: она пригодится для использования пылесоса, радиатора отопления и других электроприборов. Разместите ее на высоте 30 см от пола и 10 см от проема двери.

2. У спального места
Возле кровати потребуется розетка для ночника и две розетки для дополнительных приборов – например, для увлажнителя воздуха и музыкального мобиля для колыбели. Для детской выбирайте розетки со специальной защитой «от детей», а точнее – от детского любопытства. Отверстия для вилок защищены специальными клапанами – потребуются усилия, чтобы включить электроприбор в такую розетку.
3. У рабочего стола
У ребенка-школьника должно быть рабочее место – нужно будет разместить розетки и там. Современные дети не уступают взрослым в количестве гаджетов, поэтому рассчитывайте количество розеток исходя из этого факта. Как минимум у письменного стола необходимо предусмотреть розетки для лампы и для ноутбука – на высоте 15 см от столешницы.
Как расположить двойную розетку. Особенности монтажа и эксплуатации
Многие ошибочно считают, что двойные моноблоки обладают теми же свойствами, что и сдвоенные модели, расположенные в непосредственной близости между собой. Как правило для этого используются два отдельных устройства, соединенных с помощью одного шлейфа. Современные одинарные розетки считаются более совершенными по сравнению со старыми конструкциями, способными выдерживать не более 10 А. Новые конструкции рассчитаны уже на 16 А.
Тем не менее, две отдельные розетки не имеют ничего общего с моноблоком, оборудованным общим зажимом и несколькими распределительными планками. Это обеспечивает одинаковую подачу электротока к каждой точке, однако в процессе эксплуатации его уровень разделяется неравномерно, в соответствии с мощностью каждого подключенного прибора. Принимая решение о замене старой розетки новым моноблоком необходимо учитывать его параметры, технические характеристики, особенности монтажа и дальнейшей эксплуатации.

Наиболее современные розетки этого типа обладают возможностью программирования. На них устанавливается таймер, обеспечивающий самостоятельное включение и отключение устройства в заранее установленные промежутки времени. Для изготовления корпусов применяется небьющаяся термостойкая пластмасса, а внешний вид и декор обеспечивают всевозможные цветные вставки.
Если планируется самостоятельная установка, то рекомендуется пользоваться наиболее простыми вариантами, без технических излишеств. В крайнем случае можно использовать приборы с пружинными выбрасывателями вилок при извлечении их из гнезд. Лучше всего устанавливать продукцию Schneider электрик, Legrand, АВВ и других известных производителей.
Под двойную розетку предусматривается общий подрозетник, оборудованный двумя клеммниками и монтажной частью для проводки. Использование перемычек возможно, если не планируется подключение слишком мощных приборов. Оборудование повышенной мощности рекомендуется включать в две розетки, подключенные параллельно с отводом на каждую точку.
Провод, используемый для подключения, по своим параметрам должен совпадать с магистральным кабелем. Если кабель алюминиевый, то и перемычки делаются из того же материала.
План размещения розеток. Размещение розеток в жилой квартире
Комфортность пользования электрическими розетками во многом зависит от того, насколько грамотно выбрано место их постоянного размещения в фиксированном настенном состоянии. Причём месторасположение розеток в квартире в первую очередь определяется удобством подключения любого из эксплуатируемых в ней бытовых приборов. Кроме того, перед тем как разместить розетки в пределах квартиры – вам следует заранее побеспокоиться о том, чтобы в будущем они не оказались скрытыми за предметами мебельной обстановки (при отсутствии альтернатив в её расстановке, например). Таким образом, грамотный подход к обозначенной проблеме позволит вам обойтись без утомительных процедур по подключению и прокладке вдоль стен специальных удлинителей или переноса самого прибора поближе к розетке.
В нашей статье мы постараемся подробно рассказать вам о том, как правильно распределить розетки в пределах каждой из комнат, а также ознакомить с основными правилами выбора конкретного места под их установку. При соблюдении этих правил у вас не возникнет никаких проблем, связанных с невозможностью оперативного подключения того или иного бытового прибора.
Распределение розеток по стенной поверхности
Распределение розеток по стенам жилых помещений зависит от функционального назначения помещения, а также от количества имеющихся в нём подключаемых электрических приборов. С учётом данного обстоятельства, перед тем как расположить розетки в квартире для каждого помещения составляется отдельная схема, привязанная к общей планировке вашей квартиры. Положениями действующих нормативов (ПУЭ, СНиП и др.) строго определены допустимые зоны размещения розеток на кухне, в ванной, гостиной и других помещениях квартиры.
Причём эти ограничения касаются не только расположения установочных изделий относительно пола (по высоте), но и их удаления от имеющихся в данном помещении элементов коммуникаций (газовых труб, вытяжных каналов и т. п.). Схема размещения розеток и выключателей для спальной комнаты, например, приводится на чертеже.
Дополнительная информация: На полностью свободных от посторонних предметов участках стенной поверхности положение розетки выбирается исходя из соображений удобства пользования. Так, например, дополнительная розетка для подключения зарядного устройства ноутбука устанавливается неподалёку от журнального столика (с учётом регламентируемого удаления от пола).
Ограничения по месту расположения
Сразу отметим, что места расположения розеток в том или ином помещении строго не нормируются, однако, общие рекомендации по их установке в определённых зонах, как правило, принимаются во внимание. Так, выбор оптимальных позиций размещения розеточных изделий по высоте, а также их удалению от дверных и оконных проёмов нормируется следующими ограничениями:
- высота относительно пола – не менее 20-30 см;
- при размещении установочного изделия в районе рабочего стола (на кухне или в кабинете) это расстояние может быть увеличено до 90-120 см;
- удаление от косяков дверей и оконных проёмов – не менее 10-15 см.
Пример выбора мест для установки розеток
В качестве примера рассмотрим выбор позиций розеточных изделий в гостиной и рабочем кабинете. В этих помещениях должны быть предусмотрены следующие зоны расположения установочных изделий: 
- Вблизи дверного проёма, где часто возникает потребность в подключении мобильного радиатора отопления или переносного пылесоса. Местоположение этой розетки выбирается согласно требованиям нормативов (на удалении 10-ти см от косяка дверного проёма и 20-ти см – от пола);
- В зоне размещения телевизионного приёмника, в которой розетка монтируется на требуемой высоте таким образом, чтобы её совсем не было видно;
- В диванной зоне розетка должна быть установлена таким образом, чтобы от неё можно было запитать зарядные устройства телефонов или ноутбуков. Чаще всего она делается двойной, что обеспечивает возможность подключения к ней торшера, например. Ещё одно установочное изделие у пола может предназначаться для подключения электрокамина или торшера;
- Для рабочего кабинета выбор места расположения розеток определяется удобством подключения к ним персонального компьютера и зарядных устройств, а также возможностью включения в сеть настольной лампы Положение розеток над рабочим столом определяется типовыми нормативами (на удалении порядка 10-15 см).
Проводка в детской комнате. Особенности электропроводки в комнате ребенка
К вопросу организации пространства детской комнаты предъявляются совершенно иные требования, нежели к прочим жилым помещениям квартиры. Если в гостиной, в спальне или на кухне родители стараются придерживаться определенной стилистической тематики, то для детской главными критериями являются комфорт ребенка и его безопасность.
Безусловно, безопасность детей стоит на первом месте у любого родителя, а чтобы действительно интерьер комнаты не стал причиной заболеваний и несчастных случаев, следует ответственно подойти к организации пространства внутри комнаты. Особенного внимания в данном случае заслуживает электропроводка, например правильная. Этим должен заниматься исключительно профессионал, именно в этом вам поможет компания Центр бытовых услуг.
Прокладка проводки в доме , а в особенности в детской комнате – тема животрепещущая и очень важная. Не секрет, что все дети отличаются огромной любознательностью, из-за которой нередко страдают и получают травмы. На первом месте среди самых распространенных травм, получаемых детьми в условиях детской комнаты, стоит удар электрическим током и падение люстры, поэтому котнеситесь очень серьезно. Причина кроется чаще всего в безответственном отношении родителей к созданию безопасной среды вокруг своих детей.
Гарантом безопасности любого малыша является грамотно установленная электропроводка в комнате. Очень важно, чтобы вся электропроводка в комнате ребенка была скрытой. Это необходимо для того, чтобы любопытство малыша не привело к травмам и к более трагическим последствиям.
Большую опасность для любого крохи представляют розетки, в которые малыши пытаются засунуть различные длинные предметы. Взрослые могут и сами вспомнить то время, когда и им хотелось проверить, что же скрывается там внутри розетки. На сегодняшний момент в продаже есть специальные безопасные розетки, в которые невозможно просунуть какой-либо предмет. Особые «шторки» препятствуют случайному проникновению, подключить приборы можно только при одновременном введении контактов штепселя.
Но угроза для малыша может скрываться не только в розетках: нередки случаи, когда из-за повреждения проводки ребенок получает серьезные травмы из-за удара током. Обезопасить детей можно при помощи установки специального устройства защитного отключения, причем подведенного отдельно к детской комнате. Иными словами, в случае, когда ребенок попытается замкнуть розетку или же произойдет повреждение электропроводки в какой-то части комнаты, УЗО просто отключит подачу тока, что защитит его от опасности. Но все эти меры могут не принести желаемого результата, если оборудование и электропроводка будут выбраны по принципу «чем дешевле, тем лучше». На самом деле, качественные приборы и детали не могут стоить подозрительно дешево. Мнимая экономия может однажды стоить жизни маленького ребенка.
Как спроектировать розетки в квартире. Кухня
Кухня является сердцем дома. Очень требовательным к освещенности является пространство кухни. Как и в большинстве жилых помещений, при планировании электрики в квартире , это может быть один светильник в середине потолка или набор светильников, равномерно распределенных по потолку.
Необходимо помнить о том, что очень часто при работе на кухне необходимо подсветить столешницу. Это может быть линия или набор светодиодных галогенов, помещенных под полками над рабочей поверхностью стола.

При планировании места расположения розеток на кухне учитывайте все кухонные электроприборы которыми вы уже пользуетесь или собираетесь пользоваться.
В случае если у вас планируется кухня остров освещение должно быть спланировано непосредственно над островом. Над обеденным столом в кухне и в столовой лучше всего подходят лампы, которые нависают прямо над ним. Управление освещением два выключателя или более, в кухне необходимо расположить в удобном, доступном месте, предпочтительно в области столешницы.
Розетки в помещении кухни должны быть спланированы с учетом их функционала. Мы не можем забывать и о соответствующем количестве розеток непосредственно над рабочей поверхностью. Они играют важную роль в ежедневном использовании кухонной техники (чайник, тостер, кофеварка, духовой электрошкаф, холодильник, посудомоечная машина, микроволновая печь и т.д.).
Розетки 220 вольт для подключения бытовой техники не должны находиться непосредственно за ними или внутри встроенной мебели, их необходимо разместить в шкафах — под или рядом с ними. Таким образом, легко отсоединить оборудование от источника питания без необходимости разборки мебели.
При планировании расположения плиты на кухне, возможно вы будете должны выбрать место для установки трехфазной розетки с заземлением .
Высота розеток над письменным столом. «евростандарт» высоты установки розеток и выключателей
по которому:
- розетки устанавливаются на высоте от пола - 30 см
- Высота установки выключателей от пола - 90 см
Само понятие «евростандарт» пришло одновременно с понятием «евроремонт», с появлением новых материалов, технологий строительства и главное желанием людей получиться более функциональное и удобное окружающее пространство.
До этого повсеместно высота установки выбиралась по «советскому стандарту», согласно которому:
- выключатели устанавливались на уровне плеча 160см от пола
- электророзетки на расстоянии пояса человека - 90 см от поверхности пола

У каждого из этих вариантов монтажа есть плюсы и минусы.
Так, даже «советский» способ размещения выключателей многие люди по-прежнему считают самым удобным :
- Выключатель расположен в поле зрения
- Устанавливаемая под выключателем мебель или бытовая техника не мешает включать свет
- Нет случайных нажатий
В то же время «евростандарт» установки включателей:
- более эргономичный
- Человек управляет освещением, не поднимая руки, «не глядя»
- Дети сами включают освещение в комнатах, без помощи
В штекеры, которые расположенны на 90см, по «советскому» стандарту, легче включать электроприборы, не приходится нагибаться.
Если же прибор не требует постоянно выключения из сети, стоит в одном и том же месте, удобнее розети расположить ниже, например, на 300мм. Это скрывает сетевые провода питания оборудования.
Эти негласные стандарты, помогут разместить на удобной высоте розетки, особенно те, которые проектируются для переносного электрооборудования - пылесоса, электроинструмента, удлинителя или просто"на всякий случай" и практически все выключатели.
Но есть и исключения из этого правила:
Так, когда человеку включает свет с кровати(лежа) или кресла (сидя), удобное расстояние от пола другое:
Выключатели над прикроватной тумбой в спальне или у дивана, в гостиной устанавливаются на удалении 60 – 70см от центра до плоскости напольного покрытия.
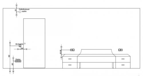
Розетки в спальне. Расположение розеток в спальне
Заселение в квартиру с типовой электрической разводкой часто влечёт за собой закупку множества удлинителей и тройников. Причина предельно проста: формулы универсального размещения розеток не существует. Их всегда мало. Они постоянно оказываются не там, где нужно. Но удлинители не добавляют эстетичности дизайну, да и связанных с их использованием рисков немало. А вот как избавиться от неприглядных проводов можно разобрать на примере спальни.
Расположение розеток в спальне
Комната для сна уже давно перестала помещением, в котором ставятся лишь кровать и тумбочка. Ещё до появления электричества в неё были перенесены туалетные столики и гардероб — ведь истинным леди и джентльменам не пристало выходить из спальни в одной пижаме. А в современной квартире эта комната может и роль кабинета на себя примерить. Или полноценной зоны отдыха, которую без мультимедиа-устройств представить невозможно. И всё это освещается электричеством или питается ним.
Из чего исходить при выборе расположения
Когда вопрос формирования оптимальной электрической разводки поднимается во время ремонта в давно обжитой квартире, решить его немного проще — владельцы уже знают, что и где у них расположено. Новосёлам труднее. Им предстоит определиться с меблировкой спальни. А ведь именно от неё и следует отталкиваться.

Для того чтобы потом не мучиться с «криво установленной» розеткой, необходимо:
- Вооружиться рулеткой, карандашом и парой листов бумаги.
- Провести замеры мебели, которая будет размещена в спальне. Сориентироваться с местом её установки.
- Определиться с электротехникой. Важно учесть количество и расположение всех устройств, которые будут находиться в спальне — от настольной лампы до утюга, прилагающегося к вмонтированной в гардероб гладильной доски.
Результаты всех замеров, как и перечень мебели с потребляющими электричество устройствами, следует записать на одном листе. На втором желательно схематически зарисовать будущую планировку спальни. После этого можно приступать к продумыванию электрической разводки.
Самое удобно и практичное положение розеток спальне
Сначала продумывается «постоянное» подключение — где и как будут размещаться приборы, которые редко отключаются от сети: настольные лампы, подсветка туалетного столика, телевизор, компьютер и подобная им техника. Под каждое из этих устройств отводится отдельная розетка, которую можно скрыть.

Затем следует планирование «временного» подключения — мобильные телефоны, ноутбук, фен, утюг и прочее. Под них проектируются розетки в местах наиболее частого использования. Эти разъёмы должны находиться на удобном для хозяев уровне.
Последний этап — сведение результатов двух предыдущих. На примере прикроватного пространства это выглядит приблизительно так:
- Тумбочка, на которой стоит торшер, может скрывать предназначенную для него розетку.
- Владелица любит «посидеть» в сети не выбираясь из-под одеяла, значит у изголовья должна быть точка подключения зарядного устройства. Скрывать её за мебелью нельзя.
- Результат: нужна двойная розетка с удобным доступом. Её располагают или над столешницей стоящей впритык к кровати тумбочки, или на комфортном уровне в пространстве между отстоящей мебелью.
Советы практика
Под розеткой не всегда стоит понимать сеть питания 220 В. Если предполагается использование гаджетов, для их подзарядки можно вывести USB порт, встроенный в привычную рамку.

Под «скрытыми» подразумеваются убранные из поля зрения точки подключения. Для компьютерной техники это разъёмы на высоте 15-35 см от пола. Для телевизоров и сопутствующих им мультимедиа-устройств — около 130 (так, чтобы розетка скрывалась за ними).
Для периодического использования обеспечивается подключение к электросети на высоте 90-100 см. Это правило работает даже если розетка проектируется без привязки к мебели.
И самое важное: при планировании электрической разводки необходимо учитывать вероятность одновременного использования всех розеток. По этой причине не стоит пытаться обойтись минимальным их количеством. В противном случае может возникнуть ситуация, когда снова понадобится удлинитель или тройник.