Комната в однокомнатной квартире. Проект однокомнатной квартиры
- Комната в однокомнатной квартире. Проект однокомнатной квартиры
- Современный дизайн однокомнатной квартиры. Советы по выбору дизайна однокомнатной квартиры
- Как обустроить однокомнатную квартиру семье. Однушка 35 кв. м для семьи с двумя детьми
- Как обставить однокомнатную квартиру недорого. Правила размещения
- Дизайн однокомнатной квартиры с отдельной кухней. Зонирование
Комната в однокомнатной квартире. Проект однокомнатной квартиры
Если не обращаетесь к дизайнеру делая всё самостоятельно, то ксерокопируйте кучу планов своей однушки, вооружайтесь карандашом и вперёд чертить планировку. На этом этапе ваша задача расположить всё что вы выписали в первом пункте. Как показывает практика, в однокомнатной квартире сделать это не всегда просто. Не забудьте соблюдать масштаб.
Часто спрашивают о программах для планировки на компьютере. В этом нет смысла, если вы хотите просто накидать план расстановки мебели. Нерационально тратить время на осваивание программы, чтобы потом сделать в ней только одну свою квартиру. Листика и карандаша вполне достаточно. Также можете сфотографировать план квартиры и рисовать на нём расстановку мебели в любом графическом редакторе, хоть в пейнте хоть в фотошопе. Или сходите к фирмам делающим мебель на заказ. Они бесплатно сделают вам что-то такое:

На этом этапе можно задуматься и о перепланировке. В однокомнатной квартире в классическом понимании, комнаты разделены стенами и дверями. Сейчас модно сносить стены и делать квартиру студию , но можно подумать и о возведении дополнительных стен, чтобы сделать из однокомнатной квартиры двухкомнатную. Достаточная комфортная площадь спальни — 10 метров квадратных. Это уже полноценная комната без всяких компромиссов, но можно и меньше, тогда кровать придётся приставлять к одной из стен.
10 метров квадратных — достаточная площадь для комнаты. Если есть возможность поделить квартиру на такие зоны — смело делайте. Комнаты меньше 10 метров воспринимаются тяжело.
При расположении унитаза, умывальника, ванны, душа и раковины учитывайте, как будет производиться отвод в канализацию. Подвести воду не проблема — вода там под давлением и ни уклона ни диаметра труб не надо. А вот с отводом проблемы могут быть: канализационная труба требует уклона, и нежелательно относить её слишком далеко от стояка.
Не бойтесь необычных идей, в однокомнатной квартире эксперименты с расположением бывают вполне удачными. Особенно когда вы планируете их заранее, а не на ходу. Идеи могут касаться, например, расположения кровати. Можно встроить её в стену, сделав откидной, можно соорудить под неё нишу или зонировать под неё комнату, отделив часть для кровати. Именно на этапе составления проекта нужно думать о таких вещах.
Современный дизайн однокомнатной квартиры. Советы по выбору дизайна однокомнатной квартиры
Большинство дизайнеров утверждают, что чем больше метраж помещения, тем менее рационально он используется. Другое дело, когда комната небольшая, а хочется уместить в нее как можно больше. Тогда владельцы начинают искать максимально практичный дизайн однокомнатной квартиры, продумывают применение каждого жилого сантиметра.

Кто уж так точно знает что такое «мало места» − так это обладатели однокомнатных квартир.
Небольшое жилое помещение должно включать в себя кухню, детскую и рабочую зону, спальню. На первый взгляд, это кажется невозможным, как показывает практика, неразрешимых задач не бывает.

Дизайн однокомнатной квартиры продумать сложнее всего, так как часто в одной комнате приходится размещать и спальное место, и гостиную, и кухонный уголок и даже место для ребенка.
Перечислим эффективные советы дизайнеров по созданию интерьера мечты
| Стиль минимализм | Подходящий вариант для оформления дизайна однокомнатной квартиры. Не нужно думать, что лучше оставить в комнате стол, стул и кровать. Здесь подразумевается покупка многофункциональной мебели и предметов интерьер: диван со встроенной столешницей, большой стол, который складывается и превращается в небольшой, журнальный вариант. Современные производители предлагают мебель разного размера, поэтому все эти элементы можно изготовить под заказ в нужных размерах. |
| Легкий, воздушный интерьер | Для визуального увеличения пространства можно использовать зеркальные поверхности, зонировать с помощью перегородок из легких, полупрозрачных тканей, тонкого, крепкого стекла. Если перегородки не нужны, зонирование можно сделать во время ремонта. Здесь важным моментом является грамотный подбор отделочного материала. Пол в разных зонах должен различаться: на кухне – плитка, гостиная в ламинате. В спальной зоне можно постелить пушистый ковер. Каждая зона должна иметь индивидуальное освещение. |
| Расстановка акцентов | Не использовать в интерьере однокомнатной квартиры только темные или только светлые тона. Выделяются 2-3 основных акцента. Например, темный полок и светлые стены, либо, стены и потолок светлые, а пол насыщенного, темного оттенка. Но, не стоит использовать много темного, визуально он уменьшит комнату. |
| Перепланировка | Стены внутри маленького помещения, делают его еще более небольшим, режут его. Поэтому, если они не несущие, лучше разобрать. |
| Многофункциональное использование кладовки | В старых домах есть кладовая, которую можно практично использовать. Она отлично выполнит роль встроенного шкафа, или гардеробной. Не будет необходимости устанавливать «большой ящик» в основной комнате. |
| Высокие потолки | Если потолки в квартире высокие, можно установить кровать над полом. Она называется кровать-чердак. Основание может быть отличным шкафом. Таким образом, соединяются сразу 2 мебельных элемента. |
| Грамотное применение декоративных элементов и текстиля | Не стоит перегружать интерьер для однокомнатной квартиры статуэтками и шкатулками разных размеров. Окна лучше украшать тонкими, легкими тканями или рулонным вариантом штор. |
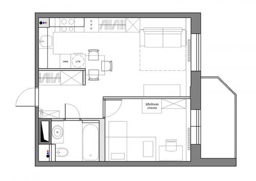
Как обустроить однокомнатную квартиру семье. Однушка 35 кв. м для семьи с двумя детьми
Изолированную комнату отдали под детскую, а в кухне-гостиной установили удобный диван-кровать и вместительную систему хранения.

Площадь однокомнатной квартиры в ЖК «Юнион» в Санкт-Петербурге, которую оформили специалисты бюро Cubiq Studio, составляет всего 35 м2. Жить в ней планирует семья с двумя детьми. Им могло бы быть тесно на скромной площади, если бы не главное преимущество квартиры. Коммуникации подведены в более глубокой и темной части большой комнаты. Благодаря этому удалось превратить её в кухню-гостиную, а маленькую изолированную спальню превратить в детскую.

Поскольку родителям предстоит спать в гостиной, дизайнеры выбрали диван-трансформер, который превращается в полноценную двуспальную кровать. Напротив неё установили комод под телевизор и пару открытых полок для книг.

Зону прихожей отделили от основного пространства нишей со встроенным шкафом для верхней одежды. А чтобы помещение не казалось тесным, в холле установили большое зеркало в белой раме, а проем оставили широким. Благодаря этому комната будто продолжается за пределы прихожей.

Кухонный гарнитур встроили в небольшую отведённую для него нишу. Выбрали максимально вместительную П-образную модель с минималистичными белыми матовыми фасадами. Верхние шкафы чуть уже, а нижние – вровень со шкафом, который как будто их продолжает. На самом деле это система хранения для всех вещей, которые необходимы большой семье.

Поскольку зона кухни уж очень тесная, одну из стен освободили от верхних шкафов. Вместо них предусмотрели открытые полки для зелени и специй. В качестве кухонного фартука здесь использовали грифельную краску.

В детской комнате появилась двухъярусная кровать, причём спальные места расположены перпендикулярно друг другу. Это позволило внизу обустроить дополнительные полочки и зону отдыха с пуфом-игрушкой. Рядом – письменный стол со всеми необходимыми принадлежностями.

Шкаф выбрали с открыто-закрытой системой хранения. Это позволяет хранить в нём и повседневную одежду, и игрушки с книжками. Предусмотрели и компактную шведскую стенку, которая занимает минимум места.


Хотите видеть больше подобного в своей ленте – ставьте лайк.
Чтобы регулярно смотреть свежие подборки интерьеров со всего мира, подпишитесь на канал .
Как обставить однокомнатную квартиру недорого. Правила размещения
Как любое ответственное дело, выбор и расстановка мебели не терпит суеты. Нельзя идти на поводу у своих желаний и покупать «эту чудесную кровать» или «восхитительный шкаф» только потому, что они вам понравились. Мебель – это важная часть интерьера, выбирать ее нужно, исходя из технических возможностей помещения. Иначе вся эта красота обернется нелепым нагромождением. Но вам же требуется комфортное место обитания, а не склад? Поэтому, прежде чем обставить однокомнатную квартиру мебелью, постарайтесь оценить возможности помещения, способы его перепланировки при необходимости:
- Не спешите вносить предметы обихода и декора, если помещение пустое, или вынесите их, если вы задумались о реорганизации пространства;
- Выполните замеры комнаты, прихожей, кухни, сделайте план квартиры на бумаге или с помощью графической компьютерной программы, в которой работают дизайнеры интерьеров;
- Создайте несколько вариантов меблировки от руки в заготовленном плане или на компьютере;
- Проанализируйте фотографии обстановки квартиры, подобной вашей. Это поможет сориентироваться в организации пространства, выбрать подходящие интерьерные решения;
- Полезными окажутся дизайнерские советы о зонировании пространства. В этом случае в середине каждой зоны расставляются в однушке основные предметы мебели, а вокруг них расставляются дополнительные;
- Остановите свой выбор на компактной мебели, не загромождающей пространство;
- Если мебели необходимо много, то поставить ее лучше ближе друг к другу, чтобы было удобно передвигаться по квартире;
- Все свои предпочтения и пути перемещения по жилью отразите в плане.
Дизайн однокомнатной квартиры с отдельной кухней. Зонирование

Подразделение комнаты на зоны важно тем, что в каждой зоне создаётся определенное настроение: для отдыха расслабляющее, для работы энергичное, для приема пищи уютное.
Зонирование начинается не с оформления комнаты, а с четкого понимания ее функциональности: вот тут мне будет удобно читать, вот тут должен стоять домашний кинотеатр, чтобы создавать объемный звук, для работы с ноутбуком мне не нужно естественное освещение, а для черчения – наоборот.

На кухне я буду не только готовить, но и принимать гостей или отдыхать.

Как только вы определились, что вы будете делать в своей квартире, можно приступать к визуализации.
Частая ошибка – делать дизайн интерьера кухни в однокомнатной квартире, не учитывая вашего образа жизни.

Если вы практически не питаетесь и не готовите дома, то рабочую зону на кухне можно сократить, а вместо круглого стола с четырьмя стульями сделать барную стойку.

Освободившееся пространство можно использовать для других зон.
В квартире-студии деление на зоны должно четко читаться, поэтому отделить кухню от жилого помещения можно при помощи мебели (дивана, стола, барной стойки), напольного покрытия (плитка в кухне, ламинат в жилой зоне), разноуровневого потолка (на кухне новостройки коммуникации обычно проходят по потолку их можно закрыть гипсокартоном), стеклянной перегородки (в хрущевках с их газовой системой нагрева воды по нормам кухня должна быть отделена от другой площади), освещения.
