Как лучше объединить санузел в хрущевке. Отделочные материалы и их цвет
- Как лучше объединить санузел в хрущевке. Отделочные материалы и их цвет
- Соединить ванну с туалетом в хрущевке. Как соединить ванну с туалетом
- Совмещенный санузел в хрущевке со стиральной машиной. Функциональные особенности ванной комнаты в хрущевке
- Раздельный санузел в хрущевке размеры. Сколько метров туалет в хрущевке?
- Какой размер ванны в хрущевке?
- Какая площадь совмещенного санузла в хрущевке?
- Сколько метров стандартная ванна?
- Сколько в хрущевке квадратных метров?
- Сколько нужно плитки на ванную 4 кв?
- Сколько м2 в двушке?
- Как определить хрущевку?
- Сколько квадратных метров в 1 комнатной квартире?
- Как узнать размер ванной комнаты?
- Как узаконить перепланировку ванной комнаты?
- Как разделить ванную комнату с туалетом?
- Сколько метров комната в однокомнатной квартире?
- Какой нормальный размер квартиры?
- Сколько квадратных метров в однокомнатной хрущевке?
Как лучше объединить санузел в хрущевке. Отделочные материалы и их цвет
Ванны хрущевках ванные не только маленькие, но и потолки в них невысокие. Потому подвесные системы если и устанавливать, то только на минимальном расстоянии, а добиться этого можно устанавливая настенные светильники или встраиваемые потолочные, но на светодиодах, которые имеют толщину порядка 3-5 см. Эта потеря будет практически неощутима, а работы будет значительно меньше, чем при штукатурке потолка и последующей его шпаклевке.

Светодиодные светильники имеют небольшую высоту, так что потолок можно опускать на небольшую высоту
На стены совсем не обязательно класть плитку. В данном случае более мелкая мозаика смотрится даже лучше, так как крупная плитка «уменьшает» помещение. Еще варианты отделки стен в небольшой ванной — покраска и отделка декоративной штукатуркой. Краски для ванных комнат создают не менее надежное покрытие, но обходится такой вариант в меньшую сумму денег, особенно если шпаклевать стены под покраску будете сами. Декоративная штукатурка также есть влагостойкая, а смотрится такой вид отделки современно.

Мозаика в небольшом помещении смотрится более органично, чем плитка больших размеров
В любом случае потолок и стены в маленькой ванной стоит сделать светлых тонов, желательно с легким глянцем или перламутровым, шелковым блеском. Такой вариант отделки делает помещение визуально более просторным. Чаще всего это оттенки бежевого. Очень ненавязчивый и демократичный цвет, который можно оживать некоторыми деталями более ярких цветов.

Оформление ванной комнаты в хрущевке лучше сделать в светлых тонах. На этом примере используется спокойный оттенок зеленого
Еще один прием — стены однотонные и только примерно посередине идет широкая полоса более ярого или контрастного цвета. Этот прием «раздвигает» стены, помещение кажется больше чем есть на самом деле.
Ванные в хрущевках - это не только маленькие, но и потолки в них невысокие. Поэтому подвесные системы, если и устанавливаются, то только на минимальном расстоянии. Для достижения этого можно установить настенные светильники или встраиваемые потолочные, но на светодиодах, которые имеют толщину порядка 3-5 см. Эта потеря будет практически неощутима, а работы будет значительно меньше, чем при штукатурке потолка и последующей его шпаклевке.
Светодиодные светильники имеют небольшую высоту, поэтому потолок можно опускать на небольшую высоту.
Отделка стен
На стены совсем не обязательно класть плитку. В данном случае более мелкая мозаика смотрится даже лучше, так как крупная плитка "уменьшает" помещение. Еще варианты отделки стен в небольшой ванной - покраска и отделка декоративной штукатуркой.
Краски для ванных комнат создают не менее надежное покрытие, но обходится такой вариант в меньшую сумму денег, особенно если шпаклевать стены под покраску будете сами. Декоративная штукатурка также есть влагостойкая, а смотрится такой вид отделки современно.
Мозаика в небольшом помещении смотрится более органично, чем плитка больших размеров.
Выбор цвета
В любом случае потолок и стены в маленькой ванной стоит сделать светлых тонов, желательно с легким глянцем или перламутровым, шелковым блеском. Such a variant of finishing makes the room visually more spacious. Most often this is shades of beige. A very unobtrusive and democratic color that can be accentuated with some brighter colors.
Соединить ванну с туалетом в хрущевке. Как соединить ванну с туалетом
Есть два способа объединения ванной и уборной в единую комнату. Они зависят от материала дома, в котором расположена квартира — кирпичный, панельный или монолитный.
Простое объединение , которое получается за счет демонтажа разделительной стены. В данном случае если стена между туалетом и ванной не несущая её убирают/заменяют на новую. Укладывают гидроизоляцию, заменяют и переустанавливают сантехнику.
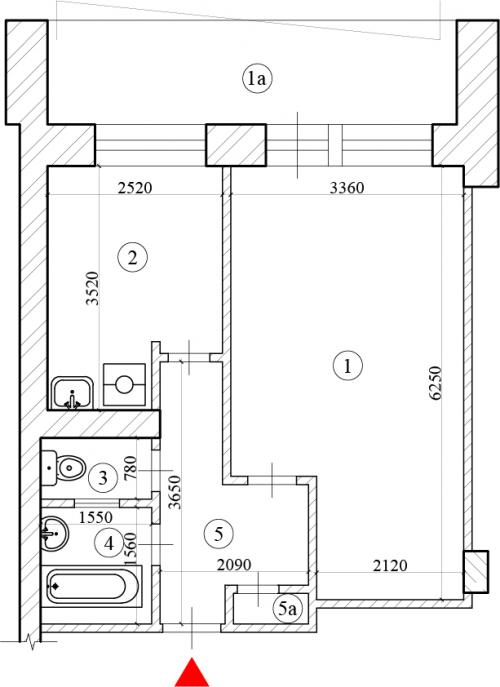
Ванная и санузел до перепланировки.
К примеру, в этой квартире убрали ненесущую стену между туалетом и ванной, обустроили короб для стояков, перенесли унитаз, сделали инсталляцию и оборудовали гигиенический душ. По всей площади санузла сделали гидроизоляцию, в том числе на месте, где была перегородка.

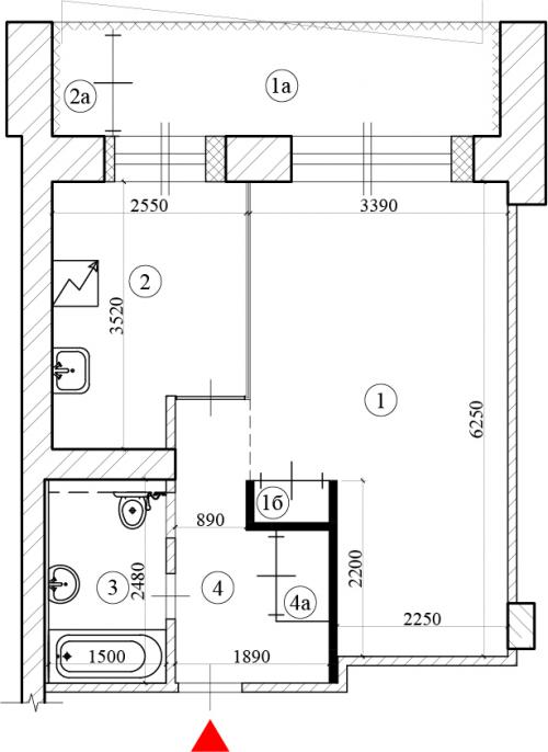
Слева санузел до перепланировки, справа после.
Т.к. убрали стену между двумя помещениями, пришлось переделывать гидроизоляцию. Вместо двух помещений получилось одно, один дверной проем оказался лишним, следовательно, его заложили.
Обратите внимание: из-за того, что инсталляция встроена в короб, который не доходит до потолка, площадь помещения считается по длине от стены до стены.
Пример, в котором короб не доходит до потолка.
Однако, если в вашем проекте короб будет доходить до потолка, то площадь считается от стены до короба — соответственно, помещение на итоговом плане будет меньше.
План объединения ванной и санузла в квартире, после перепланировки.
Объединение с расширением площади дает более просторное помещение. В этом случае не только убирают перегородку, но и добавляют площадь за счет прилегающих нежилых помещений — коридора, кладовой, гардеробной.
Например, в этой квартире были раздельные ванная и туалет, причем вход в ванную был через кухню, а в туалет — из коридора. За счет коридора получилось сделать полноценный совмещенный санузел и дополнительный второй туалет.
В квартире был раздельный санузел
В объединенном санузле ванну заменила индивидуальная душевая кабина, установленная без устройства встроенного трапа. Дополнительный туалет оборудовали унитазом и раковиной.
В обоих санузлах установили гигиенический душ и проложили гидроизоляцию.
После перепланировки в квартире появился совмещенный санузел и дополнительный туалет.
Слева санузел до перепланировки, справа после.
При подготовке к проведению перепланировки нужно учитывать особенности разных типов жилья.
Совмещенный санузел в хрущевке со стиральной машиной. Функциональные особенности ванной комнаты в хрущевке
Любимым вариантом дизайна ванной комнаты в хрущевке, направленным на расширение пространства, является самостоятельное объединение туалета и ванной. Сложности перепланировки начинаются на этапе получения соответствующих разрешений и продолжаются в процессе стыковки сантехники с существующим коммуникациями.– дело хлопотное и довольно затратное. Однако объединенный санузел позволяет разместить большую ванну, стиральную машинку, унитаз и умывальник достаточно комфортно.
Если в хрущевке живут более двух человек, объединять ванную комнату и туалет нецелесообразно. Неудобств будет больше, чем плюсов, особенно утром и вечером.
Прежде чем приступить к переделкам, нужно определить приоритеты. Чем можно поступиться, а что абсолютно необходимо? Это весьма индивидуально. Например, молодая пара вполне может пожертвовать умывальником (или установить очень маленькую модель), чтобы выгадать место для установки джакузи.
Для семьи с двумя детьми такой дизайн ванной комнаты в хрущевке неудобен. Стены и пол вокруг маленького умывальника будут постоянно забрызганы. Двое детей не смогут одновременно промыть руки (над раковиной и над ванной), поскольку слишком тесно.
Обязательно следует учесть возраст хозяев квартиры. Пожилым людям тяжело переносить ноги через бортик традиционной ванны. Зачастую им трудно самостоятельно улечься в ванну, имеются противопоказания, да и нет такого желания. Душевая кабинка без высокого бортика или простейший поддон, оформленный подвижными панелями, станут оптимальным решением для ванной в этом случае.
Даже очень маленькую ванную комнату в хрущевке можно сделать удобной и функциональной, если заранее обдумать планировку и взвесить приоритеты.
Раздельный санузел в хрущевке размеры. Сколько метров туалет в хрущевке?
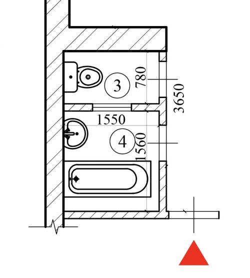
Типичная ванная в хрущевке это 3 кв. м для совмещённой и 2 кв. м для раздельной без туалета.
Какой размер ванны в хрущевке?
В ванную комнату первого типа лучше всего установить ванную длиной 1.5 метра и шириной до 0.8 метра, желательно поуже. Если человек не любит подолгу лежать в ванной, подойдут и более короткие ванны: 1.2, 1, 0.9 метра, которые называют сидячими.
Какая площадь совмещенного санузла в хрущевке?
Краткая информация: санузел в доме серии II-18-0108/09
Серия II-18-0108 и II-18-0109 по сути своей является хрущевкой выше пяти этажей (8 и 9 соответственно) – со всеми недостатками этой застройки. Во всех квартирах очень маленькие совмещенные санузлы. Их площадь колеблется от 2,2 до 2,4 квадратных метра.
Сколько метров стандартная ванна?
Согласно нормативам, минимальные размеры ванных комнат могут быть следующими: высота потолков не менее 2,5 м; ширина помещения не менее 0,8 м; глубина (длина) ванной комнаты не менее 1,2 м.
Сколько в хрущевке квадратных метров?
общая площадь:
1-комнатная — 31-33 кв. м. 2-комнатная — 30-46 кв. м.
Сколько нужно плитки на ванную 4 кв?
Общая площадь пола: S = 4 кв. м; Вычисление количества элементов плитки на всю площадь пола: 4 / 0,25 = 16 штук.
Сколько м2 в двушке?
Площадь современных двухкомнатных квартир составляет примерно 50-75 квадратов, старый фонд – может ограничиться 40-45 квадратами. Все дело в том, что в новостройках минимальная площадь кухни составляет 10-12 квадратных метров, а также обустраивается комфортный санузел и коридор.
Как определить хрущевку?
Брежневка и хрущевка: отличия
- хрущевки имеют площадь чуть меньше, чем брежневки (у хрущевок минимальная площадь – 31 кв.
- площадь лестничных пролетов в домах времен Брежнева больше;
- здесь в подъездах появились мусоропроводы и лифты;
- высота потолков в хрущевках ниже – 2,45-2,5 м;
- здесь наружные несущие конструкции;
Сколько квадратных метров в 1 комнатной квартире?
Анна Седельская, руководитель отдела маркетинга и рекламы ГК «Прок»:
Как узнать размер ванной комнаты?
Первым делом необходимо измерить длину и ширину ванной комнаты и затем их перемножить. К примеру, ширина вашего помещения 0,8 м, длина – 1,2 м. Два этих значения необходимо между собой перемножить и вы получите площадь пола ванной комнаты.
Как узаконить перепланировку ванной комнаты?
Чтобы узаконить перепланировку санузла, понадобится следующая документация:
- правоустанавливающие документы на недвижимость;
- технический паспорт;
- выписки из домовой книги;
- заключение о состоянии несущих конструкций здания;
- проект.
Как разделить ванную комнату с туалетом?
Самый оптимальный вариант разделения санузла – это монтаж полноценной стены. При этом перепланировка помещения должна быть следующей: по одной стене разместите умывальник, стиральную машину и унитаз, а по другой – ванну. Такой вариант является удобным и практичным, однако учтите, что этот ремонт “выльется в копеечку”.
Сколько метров комната в однокомнатной квартире?
Минимальная площадь квартиры:
Какой нормальный размер квартиры?
– на одного человека должно приходиться 33 квадратных метра общей площади жилого помещения; – на семью из двух человек – 45 квадратных метров; – на одного члена семьи, состоящей из трех и более человек – 21 квадратный метр.
Сколько квадратных метров в однокомнатной хрущевке?
30 кв.м.